EasyManua.ls Logo

Sony SA-VA15 - Page 7

Sony SA-VA15
21 pages
Print Icon
To Next Page IconTo Next Page
To Next Page IconTo Next Page
To Previous Page IconTo Previous Page
To Previous Page IconTo Previous Page
Loading...
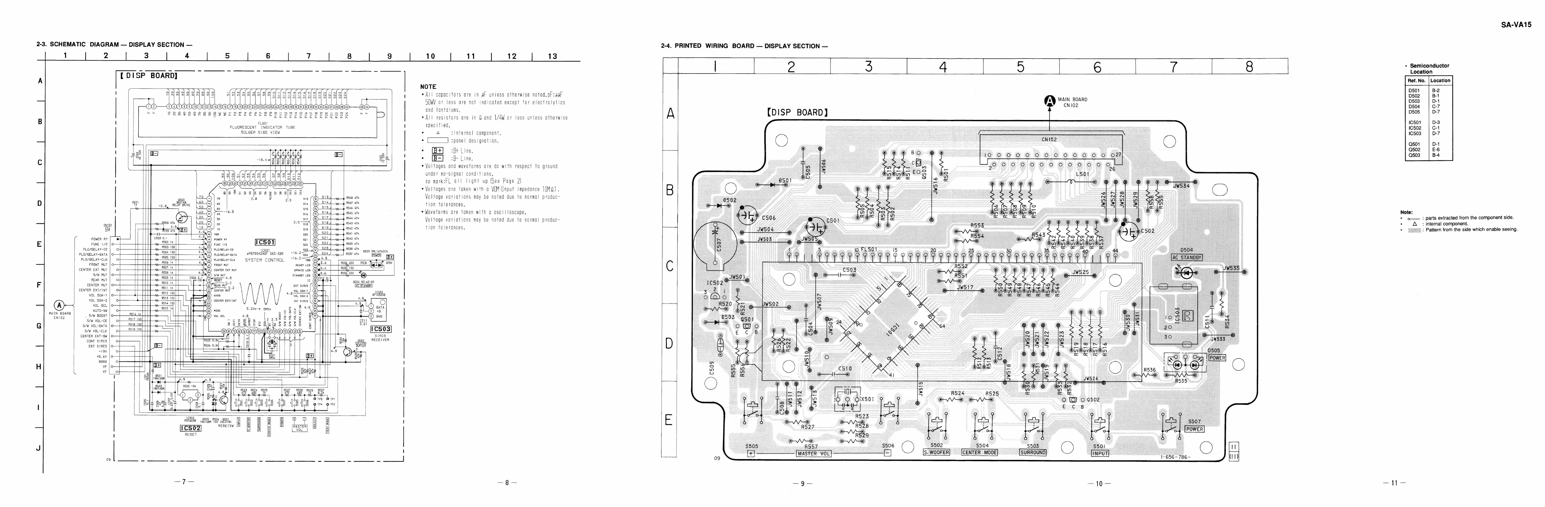
2-3.
SCHEMATIC.
DIAGRAM
DISPLAY
SECTION
NOTE
*
Ali
capacitors
are
in
BF
unless
otherwise
noted,
pF:
uur
SOW
or
less
are
not
indicated
except
for
electrolytics
and
fontaiums,
.
e
All
resistors
are
in
Q
and
|/4W
or
fess
unless
otherwise
Specified,
°
A
‘internal
component.
¢
[]
:panel
designation,
L50
FLUORESCENT
INDICATOR
TUBE
SOLDER
SIDE
VIEW
i
|
aotatetete
>
[B+]
:Bt
Line,
as
|
j
Bo
Tt
°
(BP
Line,
a]
*
Voltages
and
waveforms
are
dc
with
respect
to
ground
under
no-Signa!
conditions,
no
mark:FL
oll
light
up
(See
Page
2)
*
Voltages
are
taken
with
a
VOM(Input
impedance
1(MQ).
513
R548
47k
Voltage
variations
may
be
noted
due
to
normal
produc-
Reg!
aad
leader
tion
tolerances,
S15
J
R546
47k
5
S161
wy,
R5KS
47K
'
*
Waveforms
are
taken
with
a
oscilloscope,
eee
Ha
Voltage
variations
may
be
noted
due
to
normal
produc-
A
k
Hee
$19)
RS42
47k
tion
tolerances,
S204
R541
47k
‘a
POWER
RY
ot
-
neat
C507
rae
mae
R540
47k
Raeseal
pens
oof
[a
rep
nm
Rane
|
PLO/BELAY-CE
|
0
:
PLO/BELAY-CE
10501
(2)
823-4
ROSB
47K
505
SMLI4760CN
Soe
aa
te
poveeiay-oata
-APO7BOSZAGF
065-389
-16.2-2),
7
824
RS37
47k
PLO/BELAY-CLK
|
0
ee
“<N@)
Proeetavcie
=
SYSTEM
CONTROL
7!*"?
R534
220
RED
¥
GRN
FRONT
MUT
|O
.
READY
LES
N
tots
CENTER
EXT
MUT
O
OPRATE
LED
|
cin
6.8
mee
erode
pts
oe
|
REAR
MUT
O
RESET
ne
=)
r
9504
SEL42148
CENTER
MUT
|
©
EXT
SIRCS
Ong
AC
STANDBY
CENTER
EXT/INT
©
ug
NOL
SSBAT!
er
10503
VOL
SBA~1
|
VOL
SBA-2
Om
As
GP
1U52xB
VOL
SBA-2
|
0
wees
Cay
r9
o)
I
AUTO-SW
Of
Sadak
+B
MAIN
BOARD
ew
Boost
10
R516
1k
rae
(3)
GNA
orto
S/W
VOL-CE
|
oO
+-——Fs!7
100
aman
c51
224
6.01
S/W
VOL-BATA
|O—4
Rolec1
0G
8G
6
1C503
S/W
VOL-CLK
}
of——f819
100
|
=
SIRCS
ee
BSE
_osap_
RECEIVER
a“
2802785
EXT
SIRCS
AS)
sat
-19V
4.9
1
PGND
I
VF
LL
VF
4}
et
©
TP!
|
©
1P2
—l
1502
|
uu!
[a
[vt
PSTbO0R
NANon
“Vo
2st2785
EH
|
OB
5
aT
i
8
I
RESeTsw
El
gl
fg}
fe
&
ot
=
1C502
7
gE
;
|
RESET
ra
Q9g
Ba
at
ee
os
a
tere
te
ene
a
Le
ee
A
ee
2-4.
PRINTED
WIRING
BOARD
DISPLAY
SECTION
(
MAIN
BOARD
CN
102
([DISP
BOARD]
CNI52
10
@EGEGoe
6a eE
ES
Cer
@——_}|__@)
C505
Jw506é
oto
<4
2eeceqegecgocoee¢e
eh
|
=
my
S
=
2
eh
06.
ip
FO
1p
in
Lb
Of
#501
o
pe
|
:
|
:
ig
Wie
CO
Pk.
<
coer:
_
.
rem
R554
©.
we
oe
oe
aes
Intel
am
10
a
ca
Oe
es
ee
aig
TC
PPO
POQOVOD
P9ODODODODODOOOODOOOD
O
;
Yoox
=
%
—?
R552
r.
JW517
ola
64
R524
R525
eVW-e
6/4
ve
06
C)
=9502-
$504
S503
C)
——_—
C)
HH
|
fe]
ok
ee
i
¢
Semiconductor
Location
[et
o.[Locaton
Nh
ww
NN
a
@mo0
DOD
900
N
©
A@®+§
Note:
SA-VA15
*
o—
:
parts
extracted
from
the
component
side.
*
A:
internal
component.
“=:
Pattern
from
the
side
which
enable
seeing.

Other manuals for Sony SA-VA15

Related product manuals