EasyManua.ls Logo

Sony SA-WSF200 - Page 84

Sony SA-WSF200
130 pages
Print Icon
To Next Page IconTo Next Page
To Next Page IconTo Next Page
To Previous Page IconTo Previous Page
To Previous Page IconTo Previous Page
Loading...
HCD-F200/F500
HCD-F200/F500
3030
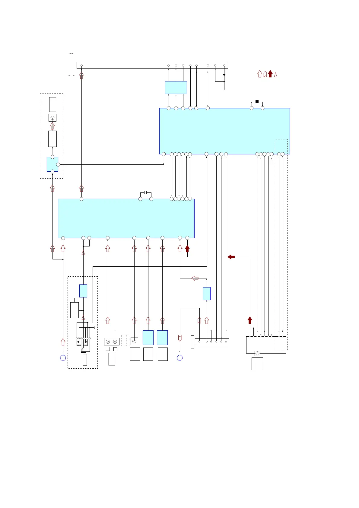
6-2. BLOCK DIAGRAM - MAIN Section -
R-CH
R-CH
IC101 (2/4)
SYSTEM CONTROLLER
J906(1/2)
CN3802
TUNER (FM)
DMPORT
(F500)
A+9V
(F200)
(F500)
VIDEO
DMVIDEO
L+(Lch)
R+(Rch)
DET
RXD
TXD
LOUT
ROUT
TUNED
DI
DO
CLK
CE
RDS_DATA
RDS_CLK
13
14
5
6
7
17
L
R
B
R-CH
RDS_CLK
75
FM 75
COAXIAL
ANTENNA
RDS_DAT
81
ST_CE
80
ST_CLK
78
ST_DO
79
ST_DI
77
TUNED
76
DMPORT_TX_OUT
31
12
100
97
1
2
38
92
CODEC_PDN
CODEC_DO
CODEC_CLK
CODEC_CS
CODEC_DI
CODEC_INT
MIC_SW
DMPORT_RX_IN
32
DMPORT_DET
27
R-ch is omitted due to same as L-ch.
(F200: AEP, UK/F500: Russian)
SPDIF
A
SIGNAL PATH
: AUDIO
: VIDEO
: TUNER (FM)
: MIC
RX0
2
PDN
25
CDTI
26
CDTO
27
CCLK
28CSN
9
INT
7
10
DOUT_MUTE
21
5
7
11
6
18
21
22
X201
12.288kHz
XTI
4
RX1
RX3
XTO
15
13
X101
10MHz
XIN
XOUT
J907
J903 (1/2)
SAT/CABLE
DIGITAL IN
COAXICAL
TV
AUDIO IN
DIGITAL OUT
COAXICAL
6
IC281
A
Y
B
RX2
MUTING
SAT/CABLE
DIGITAL IN
OPTICAL
TV
DIGITAL IN
OPTICAL
57
LIN4
51 LIN1
(F200)
J903 (2/2)
IC941
OPTICAL
RECEIVER
IC901
OPTICAL
RECEIVER
BUFFER
Q271
53
55
5
TX
23
2 4
1
J904
ECM-AC2
MIC CONTROL
Q901
CN107
SYS_RXD
SYS_TXD
SYS_BUSY
SYS_WAKEUP
4
5
7
6
8
1
10
9
CABLE_DETEC
T
TO
SA-WSF200/WSF500
SPDIF(DVD)
IC273
LEVEL
SHIFT
SYS_WAKEUP
SYS_CLK
SYS_RXD
SYS_TXD
SYS_BUSY
RESET
RESET
D301
SYS_CLK
3
EVER+4V
E+3.3V
LIN3
56
RIN3
LIN2
IC201
A/D CONVERTER,
D/A CONVERTER
IC902
MIC AMP
IC3801
LINE AMP
(Page 29)
(Page 31)

Table of Contents

Related product manuals