EasyManua.ls Logo

Sony SLV-E880EG - Page 14

Sony SLV-E880EG
18 pages
Print Icon
To Next Page IconTo Next Page
To Next Page IconTo Next Page
To Previous Page IconTo Previous Page
To Previous Page IconTo Previous Page
Loading...
SLV-E850B/E850UX/E880EG/F900B/F900NP/F900UX/F900VC/F990B/F990NP/F990UX/F990VC
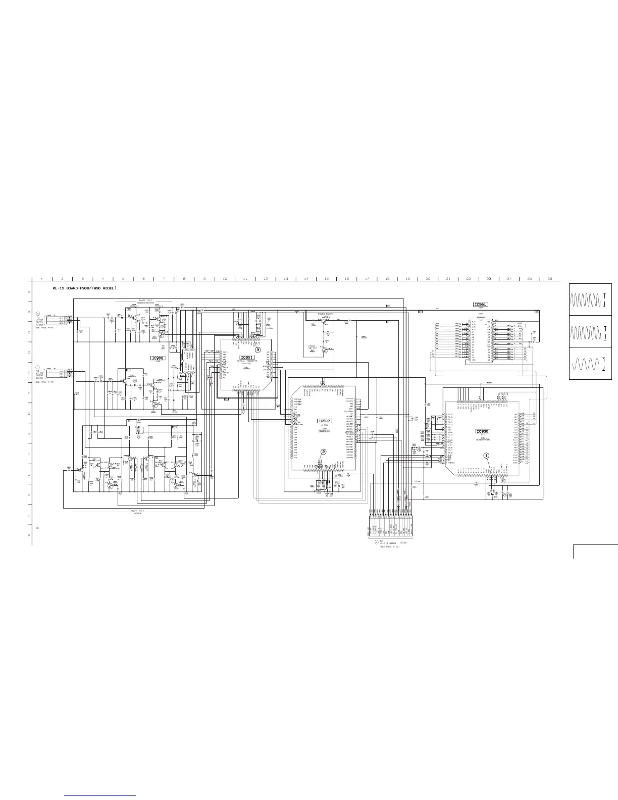
ML-15 (SERIAL TRANSFER) SCHEMATIC DIAGRAM
— Ref. No.: ML-15 Board; 6,000 Series —
4-45 4-46
4-47
SERIAL TRANSFER
ML-15
ML-15 BOARD
1 IC902 EXTAL
1.7 Vp-p
16MHz
3 IC901 EXTAL
2 IC950 ETAL2
3.8 Vp-p
18MHz
5.0 Vp-p
13.56MHz

Related product manuals