EasyManua.ls Logo

Sony ST-V702 - Page 9

Sony ST-V702
15 pages
Print Icon
To Next Page IconTo Next Page
To Next Page IconTo Next Page
To Previous Page IconTo Previous Page
To Previous Page IconTo Previous Page
Loading...
A
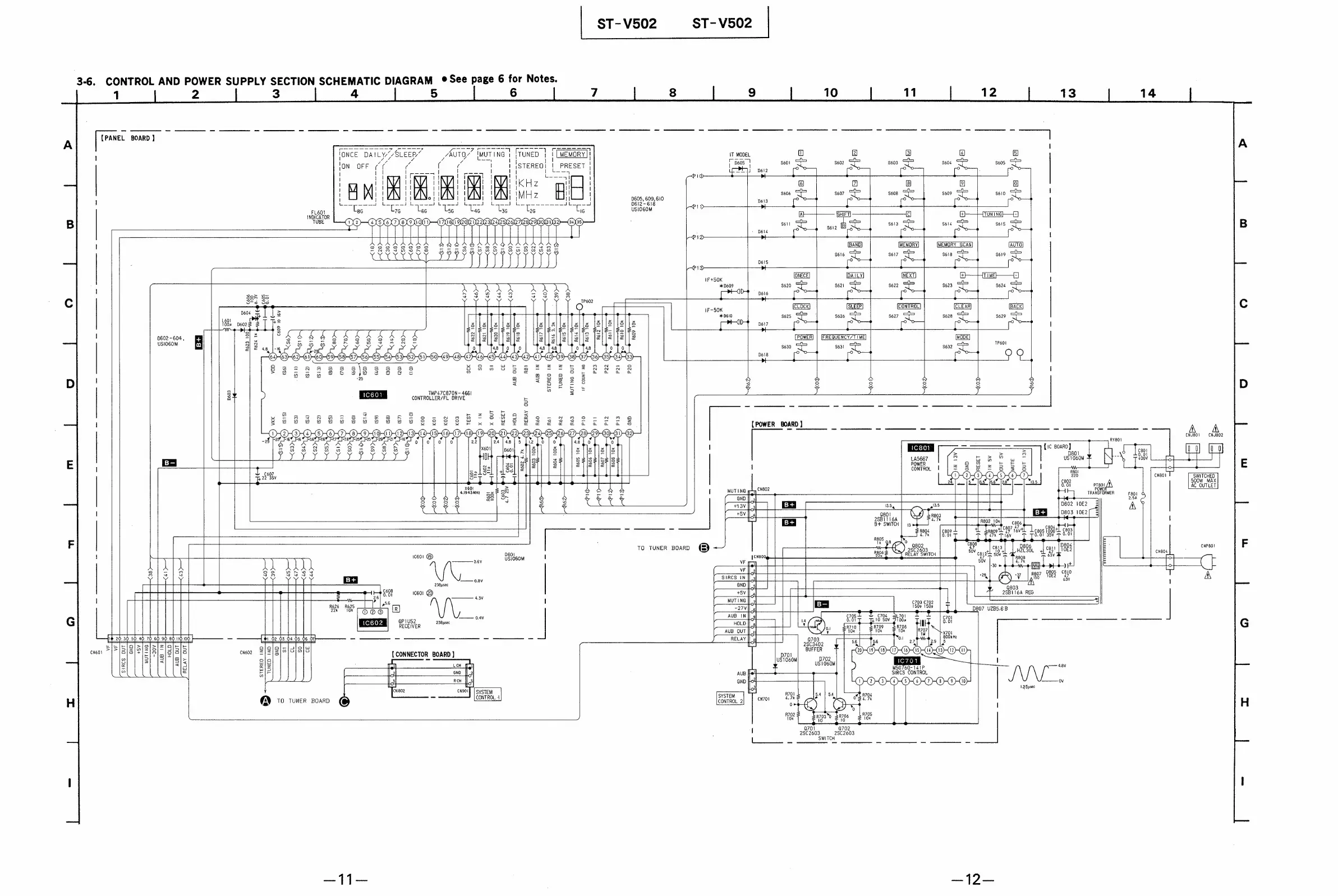
3-6.
CONTROL
AND
POWER
SUPPLY
SECTION
SCHEMATIC
DIAGRAM
®
See
page
6
for
Notes.
1
ON
OFF
[ONCE
DAILY/““SLEER”
I
77
sf
Tels
aan
cs
AUTO”
IMUT
ING
eal
7
r
“|
[TUNED
|
'
(MEMORY
|
ISTERED!
|
PRESET
|
=—4
|
L-——5j
HaHa
AL
|
piMHz
WL
|
=
medal.
0602
-604,
USIO6OM
+
a
$1
DA
>
88>~V
$1
$1
(8G)
(76)
610
&
($12)
D603
s
M
£9
0
TP602
R620
10k
oe
ge
FS
ao
Yo
R619
10k
Gy
©
TMP47C870N
~
4661
CONTROLLER/FL
DRIVE
TEST
ise)
oO
Mw
Cc
Sl
CE
R618
10k
Oj
AUB
OUT
AUB
IN
MUTING
OUT
iF
COUNT
NG
O
S|
1%)
[S]
LS]
1S
|
{|
1s)12|ls
ZS]
]
0}
}4))
3)
)2
2}/s]/2//
8]
/2
Pree
Me
pene
ge
HIRHSRHOD-CSHID
= N
°o
—_—
N N
oa
a
a
=
2
ST-V502
D605,
609,610
0612-618
USIO60M
ST-
V502
R6HI
10k
R610
10K
R609
10x
IT
MODEL
4)
fs
Bee
ae
Pe as
ae
a
D60S
$601
$602
$603
$604
$605
|!
J
D612
ees
ro
~—F
fo
ie
oO
NO-
1O—
=f
(6)
3
9)
3606
SO
$607
>
3608
SI
soo9
==
s610
D613
la ag T>
ot
11
p>}
e
o
[A
SHIFT]
————--—_—_{¢]
{4}
—{TUNING}—{=]
$611
=
sos.
SI
-
D6t4
a
j
BAND
MENORY
{MEMORY
SCAN]
AUTO
$616
=
S617
=
$618
as
$619
=
D615
[oes
ay
oem
com
|
a
aa
19-———_
ai
o—_--—
‘eee
DAILY
[4
TIME
{=]
*D609
3620
=P?
3621
3622
=
$623
3626
SO
eed
D616
ik
Bi
i
Pr
at
i
reek
SLEEP
CONTROL
BACK
*
0610
625
SO
$626
SO
sear
SS
sexe
SS
$629
>
ao-4
D617
Lr
ames
d
re
o—#
ce
~o—
(oot
pot
MODE
TP60i
$630
SS
$631
3632
D618
Mat)
in
come
aca
|
O
fe)
>t
r
P23
P2i
R62
R63
P10
©)
®)
R606
10k
Ca
:
®
ry
=
R604
100k
Og
R605
10k
ba
—<P19
Pi2
R607
10%
®
R608
10K
of
)
P13
Pll
)
end
1
<P
[1
[P13
1
[eI
ls
SIRCS
OUT
J
RELAY
OUT
]
IC601
1C60!
GP1US2
RECEIVER
3.6V
——
0.8V
238ysec
WG
4.3V
0.4v
238
psec
[$1
92
03
94.95
06
22/2
3
cneon2
2/213
o;a
luo
|
iu
eiz
uwi|>
i
n
a
@
to
tuner
Board
SYSTEM
CONTROL
|
0601
USIO6OM
|
or
0
(c)
2802603
Peg
Sy ti
i
LAS667
POWER
CONTROL
13.54
als
9801
e
2SBI
116A
\!
5
ers
B+
SWITCH
|
13
m
R804
4.7%
R80S
v
e)
Q802
a}
_
[I
HOLD
||
-a
Wl
(1?)
AUB
OUT
[|
NA
RELAY
log
2scsao2
BUFFER
D70
7
etna
usi0C0M
AUB
fled
GND
le
3
al
SYSTEM
CONTROL
2
CN701
C705
C704
~L701
0.01
G10
SOV
D100u
i
R710
R709 R708
10k
10k 10k
MS0760-141P
SIRCS
CONTROL
Had
ab&é
13
ee
14
CNJ8O1
CNU802
SWITCHED
5Q0W
MAX
AC
OUTLET
e-
ah
|
CNP801
CN804
:
|
_

Related product manuals