EasyManua.ls Logo

Sony TRINITRON BVM-9045D - Page 88

Sony TRINITRON BVM-9045D
108 pages
Print Icon
To Next Page IconTo Next Page
To Next Page IconTo Next Page
To Previous Page IconTo Previous Page
To Previous Page IconTo Previous Page
Loading...
2
3
4
5
AB C D E F G H
1
10-1010-10
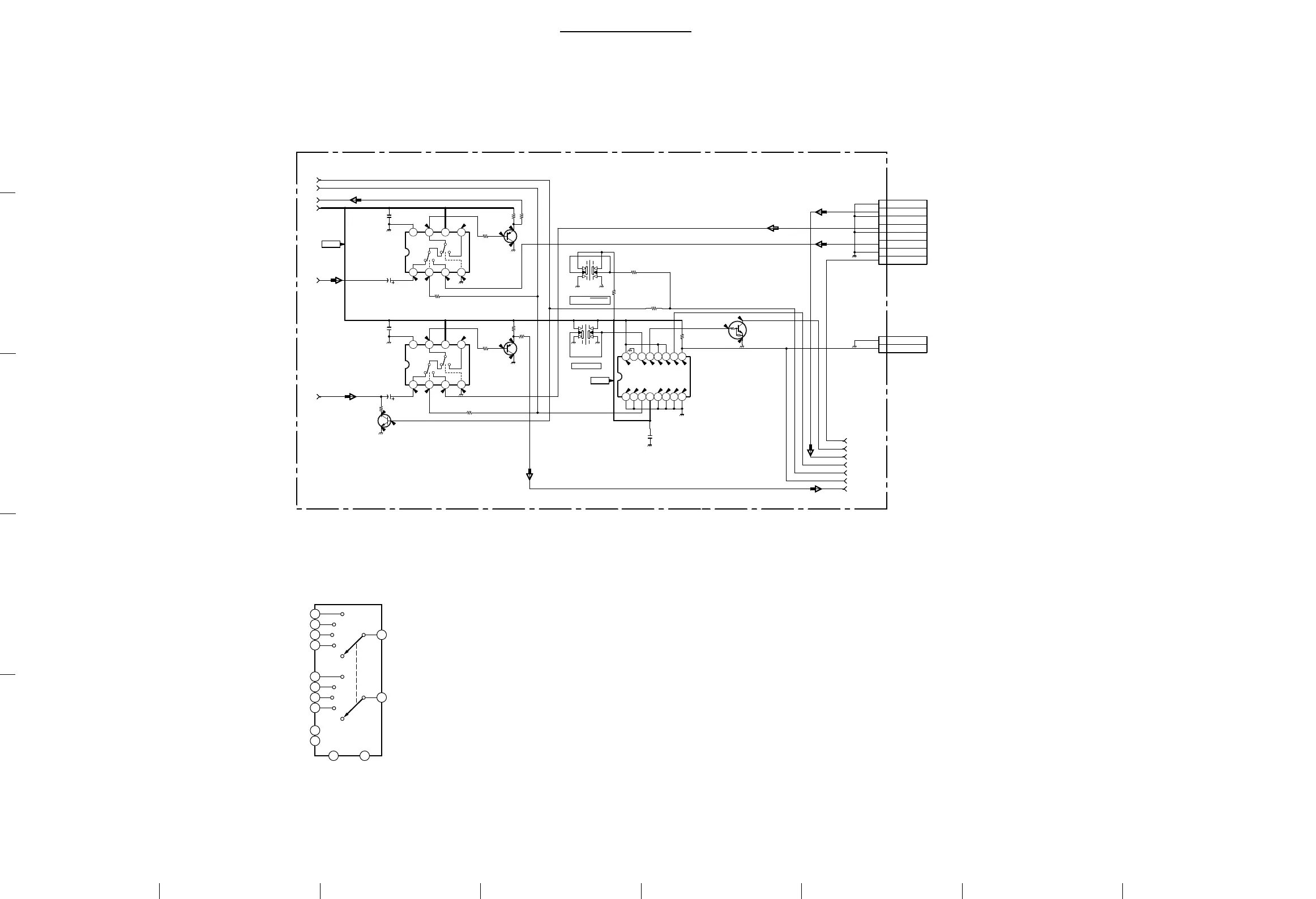
S MIC Chassis
12
14
15 13 XC
11
X0
X1
X2
X3
OPEN
1
5
2 3YC
4
Y0
Y1
10
9
6 7
EN V
EE
A
B
Y2
OPEN
QA (2/2) QA (2/2)
QA BOARD IC406 MC14052BF
+12V
0
0
10.3
0
0
0
0
0
0
0
0
0
0
11.9
11.9
11.9
11.9
0
0
6.6
5.9
5.9
0
0
6.6
6.6
0
6.6
5.9
0
0
5.9
0
6.7
6.7
0
0
4.5
+12V
SDI/R
SDI/R
SDI/Y
SDI/R
B/B-Y
G/G-Y
G-Y
B/B-Y
B/B-Y
1 2 3 4
5678
1 2 3 4
5678
1
2
3
4
5
6
7
8
1 2 3 4 5 6 7 8
910111213141516
1
2
C417
C419
R1415
R1416
R1414
R1419
R1420
R1418
CN402
C476
C477
S401
S402
R460
C479
CN405
R1413
R1421
R1422
Q1401
R1431
R1427
R1440
IC406
Q463
Q427
Q428
IC404
IC405
10
16V
10
16V
330
:CHIP
3.3k
:CHIP
39k
:CHIP
330
:CHIP
3.3k
:CHIP
39k
:CHIP
8P
WHT-L
:S-MICRO
0.01
F:CHIP
0.01
F:CHIP
2.2k
:CHIP
0.022
F:CHIP
2P
RED-L
:S-MICRO
1k
:CHIP
120
1/4W
120
:CHIP
2SC2412
3k
:RN-CP
10k
:CHIP
10k
:CHIP
MC14052BF
STATUS GEN.
DTC144
16:9 STATUS
2SA1037
BUFFER
2SA1037
BUFFER
MM1148XF
Y SW.
MM1148XF
B-Y SW.
C.SYNC
A
R
B
E
F
G
H
I
J
K
D
C
3
2
6
5
GND V+
LH
GND V+
LH
R
B
C.SYNC
E
E
E
E
AC SW
Y
E
SDI/COM
RGB/COMP
BETA/
SMPTE
Q
A
(INPUT SIGNAL SELECTOR)
(2/2)
VDD
X2
X1
XC
X0
X3
A
B
Y0
Y2
YC
Y3
Y1
EN
E
TO T BOARD CN3
TO GB BOARD CN2605
B-¥SV9614<U/C>-QA-2

Table of Contents

Other manuals for Sony TRINITRON BVM-9045D

Related product manuals