EasyManua.ls Logo

Sony TRINITRON KV-PG14P70 - Diagrams and Schematics

Sony TRINITRON KV-PG14P70
52 pages
Print Icon
To Next Page IconTo Next Page
To Next Page IconTo Next Page
To Previous Page IconTo Previous Page
To Previous Page IconTo Previous Page
Loading...
– 28 –– 27 –
KV-PG14M40/PG14M72/L/N
KV-PG14P42/G/L/N/PG14P70
RM-952
KV-PG14M40/PG14M72/L/N
KV-PG14P42/G/L/N/PG14P70
RM-952
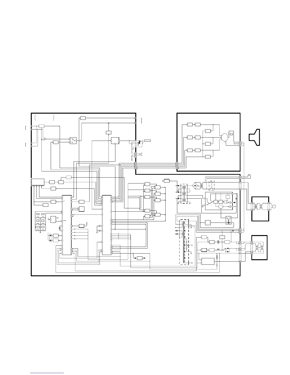
SECTION 5
DIAGRAMS
5-1. BLOCK DIAGRAM
59
60
38
41
40
36
35
34
3
6
56
54
12
L/H
U/V
VC
KEY1
KEY2
RESET
EXTAL
XTAL
TIMER
RESP/
IICLK0
IIDAT0
BLK
NICAM
VC AMP
Q105
Q106
VC FILTER
Q100
BUFFER
AGCTU U/V L/H
50
42
47
25
55
53
26
3
4
17
48
27
G
BRT ABL
HSYNC
HSYNC
IICLK1
IIDAT1
SIRCS
I
M
VPULSE
VSYNC
HDSW
IC001
Q315
G BUFFER
5
6
IC003 MEMORY
1 2
IC004 IR DET
+5V
S901
5
4
IC002 +5V REG
1
+9V
+5V
X101
Q001
LED
DRIVE
DRIVE
LED
Q002
+5V
TIMER
D901
NICAM
ST/BY
Q103, 104
FILTER
SWF100
Q102
IF BUFFER
IF
TU101 TUNER
L OUTL IN 75
IC203
AUDIO OUT
Q405
BUFFER
L MUTE
Q401
VIDEO
L (MONO)
J1201
CN251
SP
J251
EARPHONE
MONITOR
OUT
A
POWER SUPPLY, DEFLECTION,
AUDIO & VIDEO PROCESSING,
AUDIO/VIDEO INPUT/OUTPUT
AND MICROCOMPUTER
18
19
20
21
48
49
54
41
34
35
26
IF IN
IF IN
AGC
SSCP/FBT
3.58
4.43/3.58
BLK
SCL
7
8
SDA
30
29
38
39
31
32
22
50
B-Y
R-Y
CVBS OUT
BLK/STC
B-Y
R-Y
ABL
EHTX-RAY
IC301
Y/C JUNGLE
X443
4.43MHz
X358
3.58MHz
IF OUT
SIF IN
6
1
H PROT
Q004
Q800
H DRIVE
3 1
PIN CONTROL
IC850,851
Q802
PIN OUT
1
7
IC551 V OUT
5
Q801
H OUT
L802
DUMPER
D804, 851
S800
H SENT
FV
HV
+135V
13V
+15V
T503
Q500
X RAY
+135V
D561D591
H+
H+
H
H
V
V+
DY1
2
1
4
200V
1000V
H1
CN851
CN103 CN703
6
5
4
1
Q712
Q711
Q710
Q706
Q705
Q704
R DRIVE
G DRIVE
B DRIVE
R AMP
G AMP
B AMP
Q709
Q708
Q707
IK LIMIT
IK LIMIT
IK LIMIT
R
G
B
IK
12
11
10
5
J701
1
8
1
2
4
1000V
200V
H1
CN701
G2
RV701
C (RGB OUTPUT)
T601 SRT
+18V
+11V
+B
D60
S600 POWER
1
2
DRIVE LATCH
OVP
OSC
9
8
6
7
21
34
PH600 PHOTO COUPLER
12
IC602 ERROR AMP
IC601 REG SW
CN601
HDY
VDY
H+
H
V+
V
DY ASS'Y
IK
B
G
R
DSPMUTE
MOMUTE
11
40
45
46
47
HOR OUT
EAST/WEST
VERT POS
VERT NEG
R
G
B
IK
2
4
1
7
9
10
5
6
11
13
17
16
15
14
13
11
2
3
4
5
8
7
T600
1
2
T801
H2
CRT
A34LRG70X
6
5
7
Q407, 406
VIDEO
L (MONO)
IN 1
VIDEO
(FRONT)
(REAR)
VIDEO
IN 1
L (MONO)
VIDEO
11 CVBS IN EXT
3
5
7
IC400
IC402
17
LUMA IN
BUFFER
CLK
DAT
IN
OUT
RESET
55 DE
FILTER
SYNC
SYNC
FILTER
SYNC
FILTER
CT345,CF345
Q302
Q300
CT360,CF360
Q304
CT365,CF365
Q306, 308
Q307, 310
Q311, 313
DK SW
I SW
M SW
B/G SW
Q309, 312
Q301, 303
Q305
CT355,CF355
SYNC
FILTER
13CVBS IN INT
SYNC
FILTER
Q318, Q201
BUFFER
AUDIO SW
SYSTEM CONTROLLER
CN1602
T1602 T1601
F1601
AC IN
F (CISPR)
(KV-PG14M72/
PG14M72/L/N only)
1
2
CH + CH -
S902
VOL -
S904
VOL +
S903
TV/VIDEO
S905 S906
SEL
1
3
CN602
DGC
1
2
4
3
6
5
16
56 V PULSE
8
MUTE
AUDIO OUT15
D/K
B/G
2
1
LUMA IN 27
28
LUMA OUT
+9V
REG
+9V
IC604

Related product manuals