EasyManua.ls Logo

Sony TRINITRON PVM-14N5MDE - Page 75

Sony TRINITRON PVM-14N5MDE
82 pages
Print Icon
To Next Page IconTo Next Page
To Next Page IconTo Next Page
To Previous Page IconTo Previous Page
To Previous Page IconTo Previous Page
Loading...
2
3
4
5
A BCDEFGH
1
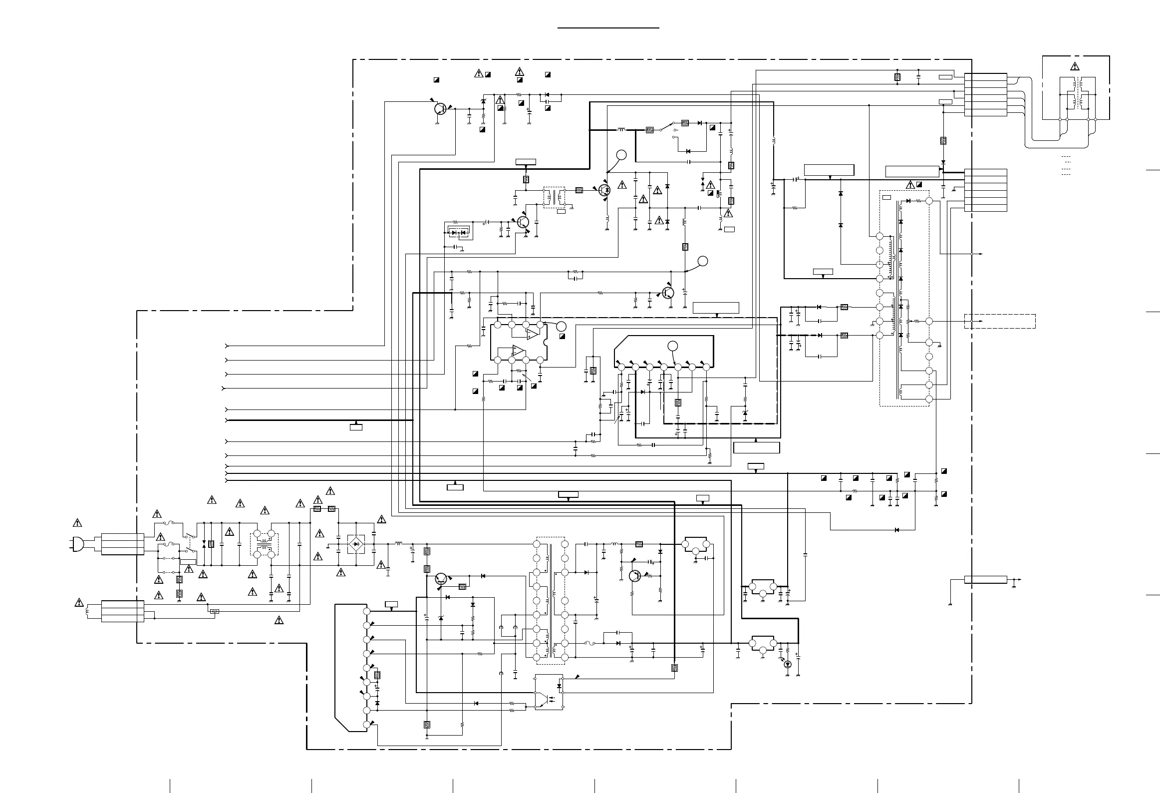
10-7 10-7
SIIA Chassis
A (2/2) A (2/2)
A BOARD (2/2)
+900V(14inch)
+1000V(20inch)
+180V(14inch)
+200V(20inch)
+115V
2
4
1.0
16.2(13.2)
16.5(13.0)
1.0
-16.3
(-13.3)
-14.7
(-12.4)
26.6
(31.0)
0.4
-12V(14inch)
-16V(20inch)
+9V
93.4
14.5
114.4
0
+115V
+15V
10.6
5.0
3
0
2.7
(3.6)
2.7
(3.6)
2.7
(3.6)16.1
(13.2)
-13.2
4.4
(5.5)
4.4
(5.5)
3.6
(5.2)
+5VD
+12V(14inch)
+16V(20inch)
+115V
1
0
0
-0.3
241.2
842.3
+9V
0
5.0
+7V
146.5
5.6
5.6
6.3
5.2
5.5
5.2
1
11
FV
10
9
8
7
HV
13
5
6
4
2
3
12
1 2 3 4 5 6 7 8 9
1
2
3
1 2
3
1
3
4
6
1 2
3
1 2
3
1
2
3
4
5
7
8
910
11
12
13
14
15
16
17
18
1
2
3
4
5
6
1
2
3
4
5
6
1 2 3 4 5 6 7
1234
5 6 7 8
1
2
3
1
2
43
5
6
1
H.DY H.DY V.DY V.DY
DY
R101
Q101
C101
D101
R106
C605
C606
C603
C604
C602
C671
C655
IC601
CN601
R601
C607
C610
C611
C612
C609
D653
IC651
R615
S601
R604
D601
C615
Q601
D609
IC652
IC654
C613
R614
T601
R623
C660
C664
C652
D610
D605
R602
R606
R607
R611
R610
D607
R608
R609
FB601
FB602
D651
C657
C653
C654
C601
R613
C658
THP601
R657
CN602
D606
R605
R622
C103
FB603
C1446
CN651
CN501
CN502
IC551
C517
C516
D506
C518
R551
T502
C102
SG501
L505
R552
L503
C508
R506
L551
C502
D501
C503
C504
C505
R504
C512
Q502
C511
R503
C553
Q551
R564
R560
C554
R561
C513
C514
R501
R562
R563
R565
D103
D508
C522
R513
C519
D507
C500
L504
R508
D503
D504
C510
R553
R324
R326
C332
R325
R559
R108
R107
D102
R558
R557
Q102
S501
R569
R570
L510
R110
C556
R328
R330
R394
C380
C335
R329
C331
C524
C525
C341
C385
C386
C387
C390
C1453
C1454
C1461
C1462
C1463
C1467
R554
C555
R393
C377
C379
C378
R571
C557
R1419
R1420
T501
C1486C389
C1488
C1471
C1481
C376
C1424
C333
C661
C662
C663
C1464
R556
D510
D502
C551
D302
Q501
D611
C1465
C507
C501
C506
C388
R510
R511
C552
C559
R327
R103
C616
C617
T603
D509
R514
L501
C509
L502
D511
R502
IC552
D552
L101
R102
R104
D656
F651
C651
PH601
C619
L601
C618
R616
R612
F601
C1601
F602
JW601
JW602
R105
C334
R507
C523
C1466
D551
C1468
2SA1091
OCP DRIVE
22
50V
:HT
DAN202K-T-146
PROTECTOR
100k
:CHIP
4700p
250V
:E
4700p
250V
:E
4700p
250V
:E
4700p
250V
:E
0.22
300V
10
50V
:AL
10
50V
STR-S6708
REG.OSC.
3P
WHT
:VH
1M
1/2W
:RC
470
400V
330
50V
2200p
B:CHIP
220
:HT
0.002
2kV
FML-G12S
15V RECT
SE115N
115V DETC
3.3M
1/2W
:RC
22k
1W
GBU4JL
AC RECT
0.22
300V
2SC3852A
7V REG
RGP10GPKG23
7V RECT
MC7805CT
5V REG-DIGITAL
MC7809CT
9V REG
0.47
630V
:MPS
3.3M
1/2W
:RC
SRT
39k
3W
:RS
0.01
B:CHIP
0.01
B:CHIP
1000
25V
RGP10GPKG23
PROTECTOR
RGP10GPKG23
PROTECTOR
39k
3W
:RS
2.2k
1k
1k
27
3W
:RS
RGP10G
PROTECTOR
0.22
3W
100
0.45UH
0.45UH
RU4AM-T3
115V RECT
100p
CH:CHIP
3300
25V
0.01
200V
0.22
300V
5.6k
220p
2kV
1k
3P
WHT
:MINI
MTZJ-T-77-7.5B
7V REF
1k
1W
:RS
3.9k
0.01
500V
E
0.45UH
0.01
B:CHIP
:TAB
6P
WHT
:DY
6P
WHT
:MINI
STV9379
V.OUT
100p
500V
470
25V
RGP10GPKG23
13V-RECT
470
25V
270
1W
:RS
:HDT
4.7
160V
:AL
1
1W
:RS
3.3mH
:LHL08
470p
500V
B
680
1/2W
:FPRD
ERC06-15S
H.DUMP-1
680p
2kV
B
680p
2kV
B
0.033
50V
:PT
JW(10.0)
470p
500V
B
2SC3209LK-TP
H.DRIVE
0.015
200V
4.7
2SD2394-EF
PIN OUT
3.3k
:CHIP
1000p
B:CHIP
22p
CH:CHIP
0.47
50V
3.9k
:CHIP
10k
:RN-CP
1k
:CHIP
EL1Z-V1
H.PROT-RECT
RGP10GPKG23
200V-RECT
33
160V
220k
1/4W
100p
500V
RGP10GPKG23
13V-RECT
33
160V
:HR
10mH
GP08D
H.CENT RECT-1
GP08D
H.CENT RECT-2
10k
:RN-CP
4.7k
1/2W
:RC
1
100k
:CHIP
MTZJ-T-77-36B
PROTECTOR
10k
:RN-CP
2SC2412K-T-146-Q
PROTECTOR DRIVE
H-CENTER
220k
:CHIP
0.7µH
10
50V
:AL
10k
:CHIP
100
:CHIP
10
:CHIP
100p
CH:CHIP
100p
CH:CHIP
10
:CHIP
100p
500V
0.01
B:CHIP
0.01
B:CHIP
0.01
B:CHIP
1000p
B:CHIP
1000p
B:CHIP
1000p
B:CHIP
0.001
B:CHIP
100p
500V
:SL
100p
500V
:SL
220p
CH:CHIP
100p
CH:CHIP
100p
CH:CHIP
0.01
B:CHIP
10
50V
:AL
10
:CHIP
100p
CH:CHIP
0.01
B:CHIP
0.01
B:CHIP
1k
:CHIP
1000p
B:CHIP
100
:CHIP
100
:CHIP
100p
CH:CHIP
100p
CH:CHIP
22p
CH:CHIP
0.001
B:CHIP
0.001
B:CHIP
100p
CH
0.01
B
0.1
B:CHIP
0.1
B:CHIP
0.1
B:CHIP
0.1
B:CHIP
0.1 B:CHIP
1.5
1/2W
:RS
0.47
1/4W
:FPRD
RGP15J-6040G23
H.DUMP-2
100
50V
:HT
RGP10GPKG23
PROTECTOR ABL
1SS133T-77
FEEDBACK
0.1
B:CHIP
2
200V
0.015
1.2kV
1.5
200V
0.047
25V
B:CHIP
JW
10MM
JW
10MM
0.22
100V
:PT
0.1
25V
B:CHIP
100k
:CHIP
560k
:CHIP
2200p
125V
E
2200p
125V
E
LFT
RGP02
G2-RECT
1.5k
1/4W
:FPRD
68µH
10
160V
2.7µH
DAN202K
H.DRIVE LIMITER
8.2k
:CHIP
BA4558
PIN-AMP
MTZJ-T-77-5.1B
V PULSE LIMITER
68µH
4.7k
:RN-CP
120k
:RN-CP
SLR-56MC3F
POWER INDICATOR
3.15A
125V
1000
160V
PC111YS
ISOLATOR
2200p
125V
E
7.2µH
2200p
125V
E
4A
250V
TNR10V431K660
150k
:RN-CP
0.01
25V
B:CHIP
27
1W
:RS
0.0047
2kV
E
0.1
B:CHIP
GP08DPKG23
BOOST UP
100p 500V :SL
HD
ABL-IN
EW
VD-
VD+
5V
9V
H PULSE
V PULSE
13V
ST-PROTECTOR
1
2
3
41
23
41
12
43
3
2
1
2
4
2
1
4
3
*
*
*
*
*
*
*
*
*
*
*
*
*
*
*
*
*
*
*
H OUT
*
*
*
*
*
AC IN
NC
AC IN
C
GND
B
SINK
DRIVE
OCP
F/B
INH
VIN
DGC
DGC
GND
H OUT
FBT
HDT
PMC
COLLECTOR
VIDEO
+B
-13V
GND
+13V
ABL
HEATER1
HEATER2
H DY +
H DY +
H DY -
H DY -
V DY -
V DY +
E
NC
H1
H2
-IN
+VCC
-VEE
OUT
+IN
V OUT
BOOST
VBOOST
GND
A
B-%SV9626<U/C>-A..-P2
POWER
AC IN
DGC
TO PICTURE TUBE(HV)
TO CB BOARD G4
(CHASSIS)
20 Inch ONLY
(2/2)
*1
*2
TO CA BOARD CN701(14inch)
TO CB BOARD CN701(20inch)
(H/V OUT,DEFLECTION,PIN AMP,POWER)
*1=900V 14inch
*2=180V 14inch
200V 20inch
1000V 20inch

Related product manuals