EasyManua.ls Logo

Sony VPL-EW295 - Page 84

Sony VPL-EW295
94 pages
Print Icon
To Next Page IconTo Next Page
To Next Page IconTo Next Page
To Previous Page IconTo Previous Page
To Previous Page IconTo Previous Page
Loading...
84
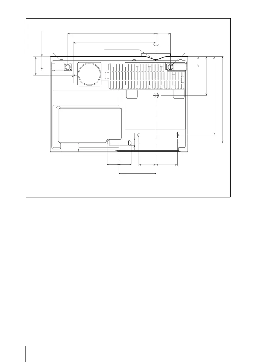
Dimensions
Bottom (VPL-EW255/EX295/EX290/EX255)
Unit: mm (inches)
233.5 (9
3
/16)
38.5 (1
17
/32)
97.5 (3
27
/32)
14 (
9
/16)
13.5 (
17
/32)
31.8
(1
1
/4)
31.8
(1
1
/4)
57.4
(2
1
/4)
45.3
(1
25
/32)
Center of Lens
14 (
9
/16)
228 (8
31
/32)
207 (8
5
/32)
102.5 (4
1
/32)
27.5 (1
3
/32)
27.5 (1
3
/32)
221.6 (8
23
/32)
46.3 (1
13
/16)
0.8
(
1
/32)

Table of Contents

Other manuals for Sony VPL-EW295

Related product manuals