EasyManua.ls Logo

Space-Ray CB20-N5 - Page 20

Space-Ray CB20-N5
52 pages
Print Icon
To Next Page IconTo Next Page
To Next Page IconTo Next Page
To Previous Page IconTo Previous Page
To Previous Page IconTo Previous Page
Loading...
Form 43471000
May 2021 -19-
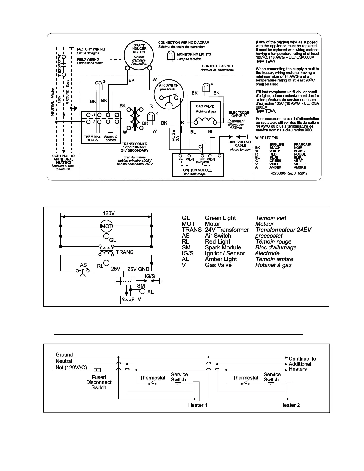
SINGLE STAGE CONTROLS - INTERNAL CONNECTION WIRING DIAGRAM
SINGLE STAGE CONTROLS - SCHEMATIC WIRING DIAGRAM
SINGLE STAGE CONTROLS - THERMOSTAT WIRING DIAGRAMS
A. LINE VOLTAGE (120V) THERMOSTAT CONNECTIONS SINGLE HEATER PER THERMOSTAT

Other manuals for Space-Ray CB20-N5

Related product manuals