EasyManua.ls Logo

Stanley CL2XTi - Page 73

Stanley CL2XTi
166 pages
Print Icon
To Next Page IconTo Next Page
To Next Page IconTo Next Page
To Previous Page IconTo Previous Page
To Previous Page IconTo Previous Page
Loading...
73
77-121
Precisione del raggio verticale
P
1
D
1
P
2
P
3
D
1
2 x D
1
P
4
D
1
P
2
P
3
D
1
2 x D
1
P
1
P
1
D
2
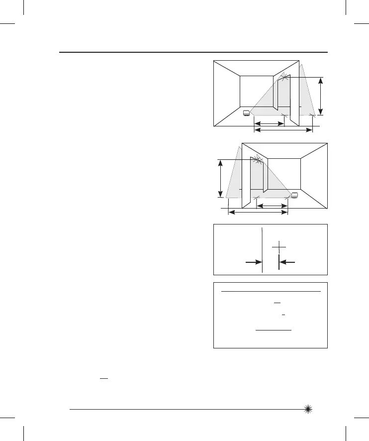
1. Misurare l'altezza dello stipite di una porta
o un punto di riferimento per ottenere la
distanza D
1
. Posizionare l'unità laser come
mostrato con il laser acceso. Puntare il
raggio verticale verso lo stipite della porta
o il punto di riferimento. Segnare i punti
P
1
, P
2
, e P
3
come mostrato.
2. Spostare l'unità laser verso il lato opposto
dello stipite della porta o del punto di
riferimento e allineare il raggio verticale
con P
2
e P
3
.
3. Misurare le distanze orizzontali tra P
1
e il
raggio verticale dalla seconda posizione.
4. Calcolare la distanza di scostamento
massima e confrontarla con D
2
. Se D
2
non è minore o uguale alla distanza di
scostamento massima calcolata, l'unità
deve essere restituita al distributore
Stanley.
Esempio: D
1
= 2 m, D
2
= 0,5 mm
0,6 x 2 m = 1,2 mm (distanza di scostamento massima)
0,5 mm ≤ 1,2 mm (CORRETTO, i valori dell'unità sono compresi tra quelli della
calibrazione)
mm
m
Confrontare:
D
2
Max
Distanza di scostamento massima:
Max
in
ft
= 0,0072 x D
1
ft
mm
m
= 0,6 x D
1
m

Related product manuals