EasyManua.ls Logo

Stealth PINNACLE - Page 16

Stealth PINNACLE
105 pages
Print Icon
To Next Page IconTo Next Page
To Next Page IconTo Next Page
To Previous Page IconTo Previous Page
To Previous Page IconTo Previous Page
Loading...
17
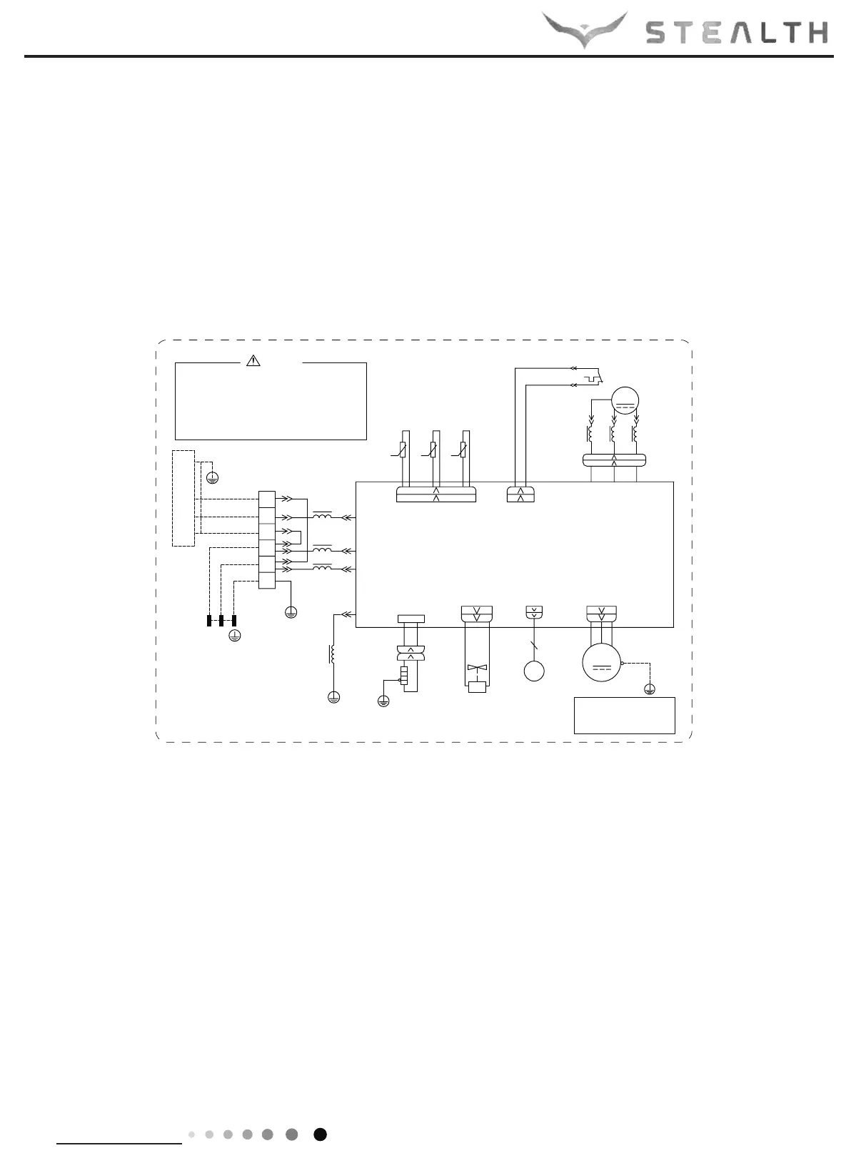
Technical Information
Service Manual
The above data is subject to change without notice. Please refer to the nameplate of the unit.
600007062741
9$/9(
(;3$16,21
<(*1
(/(&7521,&
)$
(.9
:$<
%/2&.
7(50,1$/
7(036(1625
(;+$867
7(036(1625
2875220
28778%(
7(036(1625
%.:+
%8 <(
&203
;
<9
&203
6$7
:+ :+
29&&203
5'
:$<
57
&20,11(5
:
9
8
8%8 9<( :5'
1
$&/
76(1625
%8
%1
%.
;7
1
/
/
*
32:(5
,1'22581,7
29(5/2$' 3527(&725
*
/ /
3OHDVHGRQWWRXFKDQ\HOHFWURQLF
FRPSRQHQWRUWHUPLQDOZKHQWKH
PDFKLQHLVUXQQLQJVWRSSLQJRU
KDVEHHQSRZHUHGRIIIRUOHVVWKDQ
PLQXWHVWRSUHYHQWWKHULVNRI
HOHFWULFVKRFN
:$51,1*
9$/9(
/
/
0$*1(7,&
5,1*
0$*1(7,&
5,1*
//
97 97
57 57
*
/
/
*1<(*1
*
'58%(<
35,17('&,5&8,7%2$5'
$3
/
&211(&725
:+%8
%.
5'%1
%.%1
:+%8
*1<(*1
  
+($7%
5'
5'
(+
+($7(5
(/(&75,&
%27720
*
0
2)$1
)$102725
<(*1
*
LURQVKHOOPRWRU
RQO\DSSOLHVWRWKH
1RWH0RWRUJURXQG
3(
0$*1(7,&
5,1*
<(*1
*
%8
%1
<(*1
SC-36ZPL-HP230/SC-36WPL-HP230

Related product manuals