EasyManua.ls Logo

Stone 125CM - Page 15

Default Icon
18 pages
Print Icon
To Next Page IconTo Next Page
To Next Page IconTo Next Page
To Previous Page IconTo Previous Page
To Previous Page IconTo Previous Page
Loading...
- 15 -
OPERATION
125CM
the engine starts, adjust the throttle. Always operate
the engine at full throttle when under load. Adjust
engine speed so drum is turning between 16 - 20 RPM.
NOTE: These starting instructions are general
guidelines only. Since many engine options are
available on the manufacturer's CM mixers, consult the
ENGINE MANUAL included with this unit for specific
instructions.
ELECTRIC MOTORS - Use the proper size (3) wire
(grounded) extension cord, conforming to the National
Electric Code and Local Ordinances. DO NOT use (2)
wire extension cord. Check any extension cord which
you plan on using carefully for broken connectors, bare
wires and damaged insulation. DO NOT use any cord
found to be in poor condition. Make sure the extension
cord is not routed through standing water and that all
the connections are tight. Use the shortest extension
cord possible. Turn motor on.
TO STOP THE ENGINE / MOTOR
GASOLINE ENGINES - Depress grounding switch
located on stationary cowl half and hold down until
engine stops completely. Consult the ENGINE
MANUAL included with this unit for specific
instructions. If the mixer is to be left unattended for
any length of time, close the fuel valve under the gas
tank.
ELECTRIC MOTORS - Turn the motor off. If the
mixer is to be left unattended for any length of time,
disconnect the power cord.
OPERATION
Start the engine / motor as previously instructed and
allow gasoline engines to reach operating temperatures.
Close the engine cowl. NEVER operate the mixer with
cowl open.
With drum operating between 16 - 20 RPM's the mixer
is now ready for the addition of the concrete mix. For
best results proceed as follows:
1. Pour the required amount of water into
drum.
2. Add the required amount of gravel.
3. Add the required amount of cement.
4. Add the required amount of sand. By
adding the water and gravel first the
drum will be kept clean and a good
tumbling action will be maintained when
cement and sand will be added.
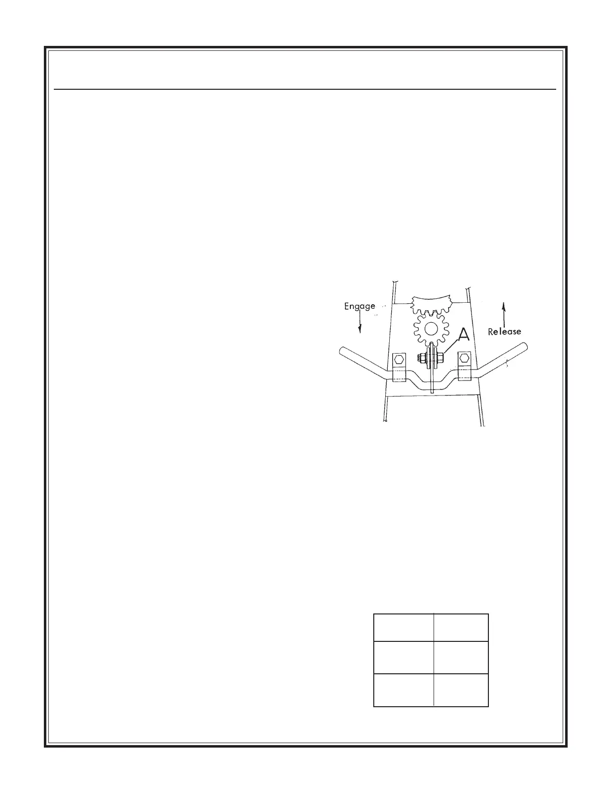
To discharge concrete, grasp handwheel firmly with
one hand and release tilt brake by pushing up on the tilt
handle with the other. See diagram below.
To prevent accidental discharge, never release brake
without holding the handwheel firmly. Do not attempt
to grab the handwheel to stop an accidental discharge,
serious injury could result. Always make sure that the
brake is fully engaged after discharge of concrete and
before reloading the drum.
NOTE: When servicing brake mechanism, bolt A
should be tightened so that approximately 17 - 18
pounds of force is required to release the brake. This
will prevent accidental discharge due to vibration.
CAPACITIES
* Maximum batch size depends on mix and type of
aggregate used.
125CM
2 Bag
Total Drum 20 cu. ft.
Volume
Max Batch 12 cu. ft.
Size*

Related product manuals