EasyManua.ls Logo

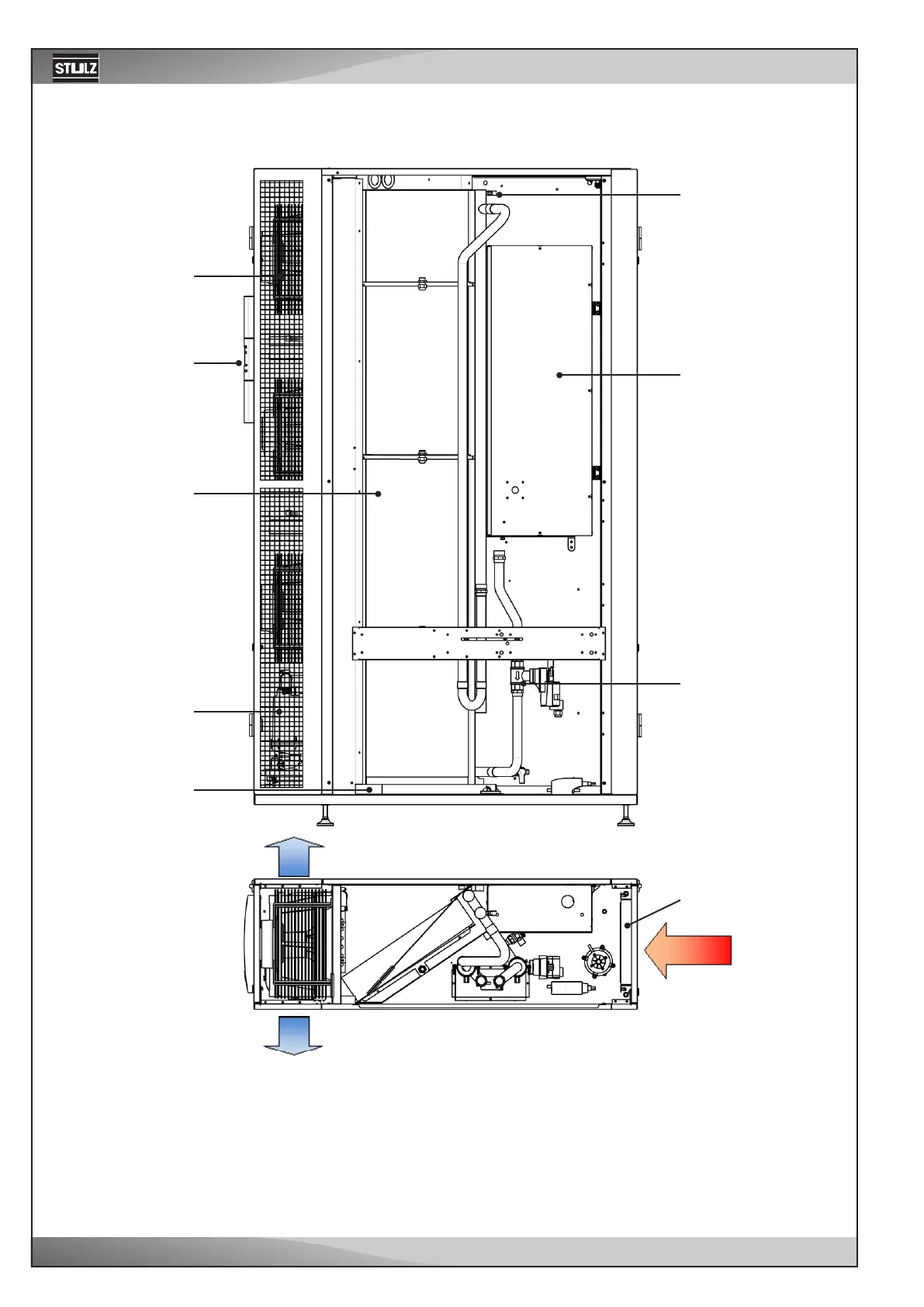
Stulz CRS 361 A - 4.3 Component Layout (CW Unit, Size 1)

Stulz CRS 361 A
86 pages
Print Icon
To Next Page IconTo Next Page
To Next Page IconTo Next Page
To Previous Page IconTo Previous Page
To Previous Page IconTo Previous Page
Loading...
16
/04.2016/G35EN
Air filter
E-box
Vent valve
2-way valve
Fan
Controller
Chilled water coil
Steam humidifier
(option)
Condensate drip
tray
Internal layout of CW unit, size 1

Related product manuals