EasyManua.ls Logo

Stulz CRS 361 A - Page 35

Stulz CRS 361 A
86 pages
Print Icon
To Next Page IconTo Next Page
To Next Page IconTo Next Page
To Previous Page IconTo Previous Page
To Previous Page IconTo Previous Page
Loading...
35
/04.2016/G35
90
66
A220
90
B
300220
90155
220
30
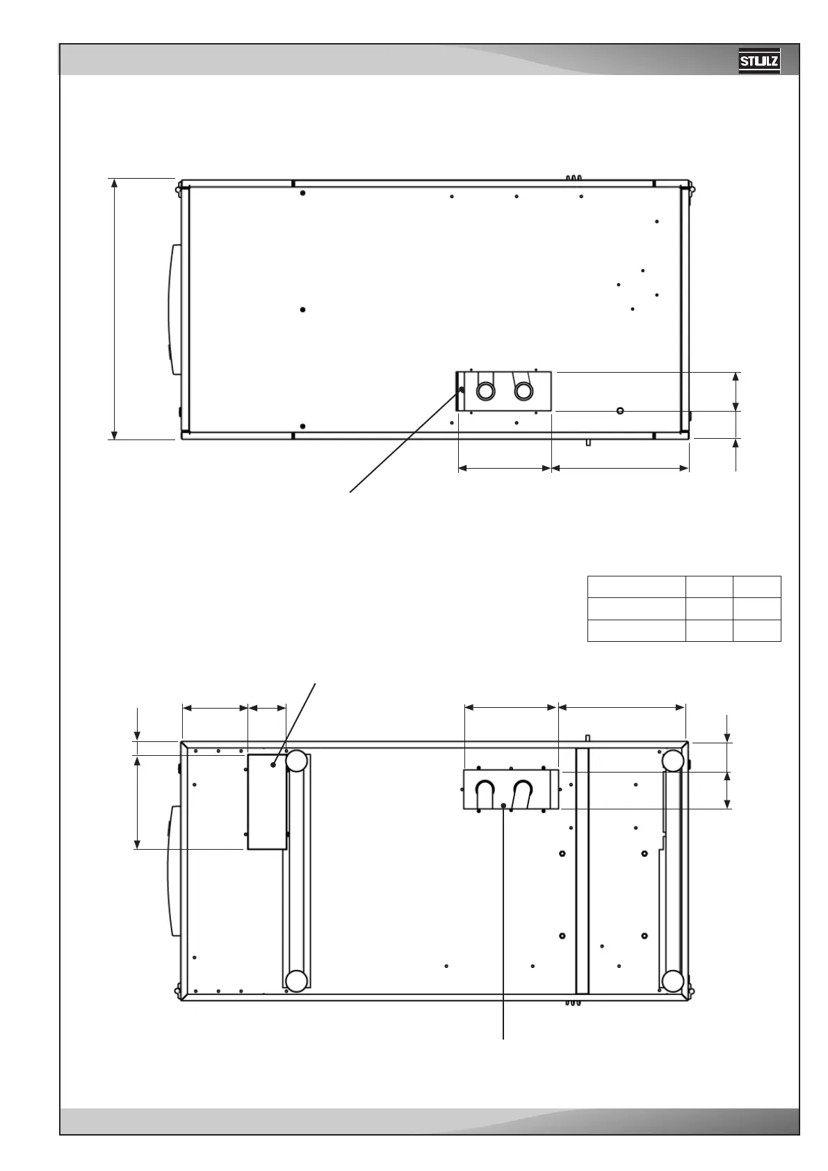
CRS 361 A/AS/GS/GES, 560 CW
600
A B
A/AS/GS/CW
398,5 100
GES
320 66
EN
Inlet/outlet of humidifier (if present)
Top view
Bottom view
Size 2
IN/OUT refrigerant/water pipes, con-
densate discharge, electric cables
IN/OUT refrigerant/water pipes,
condensate discharge (condensate
pump is required), electric cables
Standard: connection from top
Option: connection from bottom

Related product manuals