EasyManua.ls Logo

Stuv 16-CUBE - Dimensions & Clearances; Dimensions et Dégagements

Stuv 16-CUBE
20 pages
Print Icon
To Next Page IconTo Next Page
To Next Page IconTo Next Page
To Previous Page IconTo Previous Page
To Previous Page IconTo Previous Page
Loading...
8
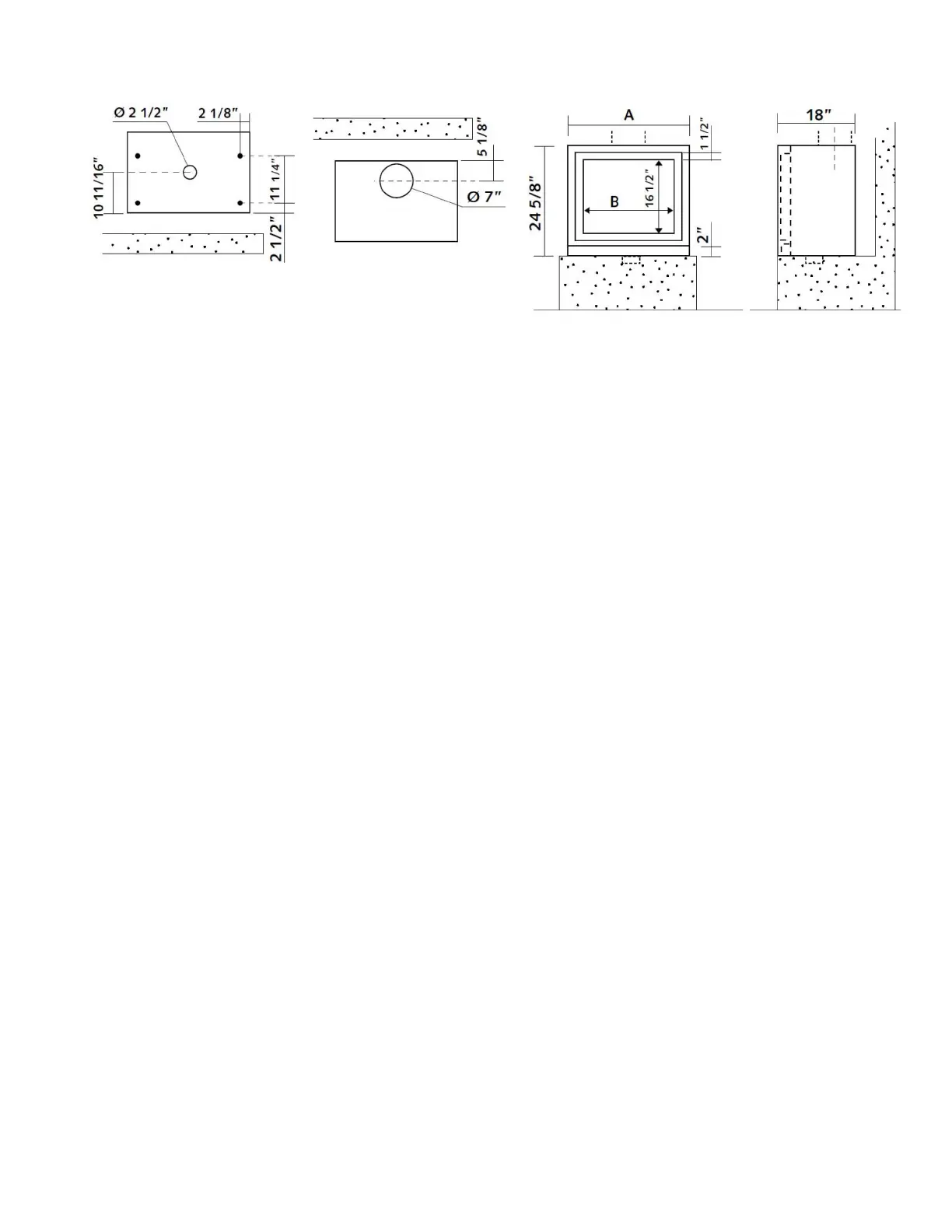
2.2 Dimensions & clearances 2.2 Dimensions et dégagements
The clearances are indicated for all types of
combustible materials (e.g.: wood, gypusm, etc.)
+ Front clearance: 48”
+ Rear clearance: 7”
+ Side clearance: 12”
+ Back corners clearance: 2’’
+ Above clearance: 24-1/2”
A flameproof protective material must be laid on the
ground in front of the fireplace over a length of 18” for
Canada or 16’’ for the U.S. in front of the glass, and 6” on
each side of the glass.
Clearance from the bottom of the glass to the floor:
>see next page
CLEARANCES MAY ONLY BE REDUCED BY MEANS
APPROVED BY THE REGULATORY AUTHORITY.
We recommend to store solid fuel (wood logs) in a clean
and dry environment. Caution: do not place such fuel
within space heater installation clearanes or within the
space required for charging and ash removal.
Attemps to achieve heat output rates that exceed heater
design specifications can result in permanent damage to
the heater.
Les dégagements indiqués sont pour tout matériaux
combustible (ex.: Bois, Gypse, etc.).
+ Dégagement avant : 48”
+ Dégagement arrière : 7”
+ Dégagement des côtés : 12”
+ Dégagement coins arrières : 2’’
+ Dégagement au dessus : 24-1/2”
Un matériau de protection incombustible doit être placé
au sol à l’avant de l’appareil sur une longueur de 18” au
Canada ou 16’’ aux USA devant la vitre, et 6” de chaque
côté de la vitre.
Dégagement entre le sol et le bas de la vitre :
>voir page suivante
LES DÉGAGEMENTS PRESCRITS NE PEUVENT ÊTRES
RÉDUITS QUE PAR DES MOYENS APPROUVÉS PAR
UNE AUTORITÉ DE RÉGULATION.
Nous vous recommandons de ranger le combustible
solide (bois de corde) dans un environnement propre et
sec. Attention : Ne placez pas ce genre de combustible
dans l’espace de dégagement d’instalation du poêle
d’ambianceou dans l’espace de chargement ou de
décendrage.
Tenter d’atteindre des niveaux de puissance supérieurs
à ceux prescrits pour cet insert peut endommager
définitivement celui-ci.

Related product manuals