EasyManua.ls Logo

Sub-Zero 427G - Page 35

Sub-Zero 427G
56 pages
Print Icon
To Next Page IconTo Next Page
To Next Page IconTo Next Page
To Previous Page IconTo Previous Page
To Previous Page IconTo Previous Page
Loading...
Model WS-30 Installation 35
subzero.com
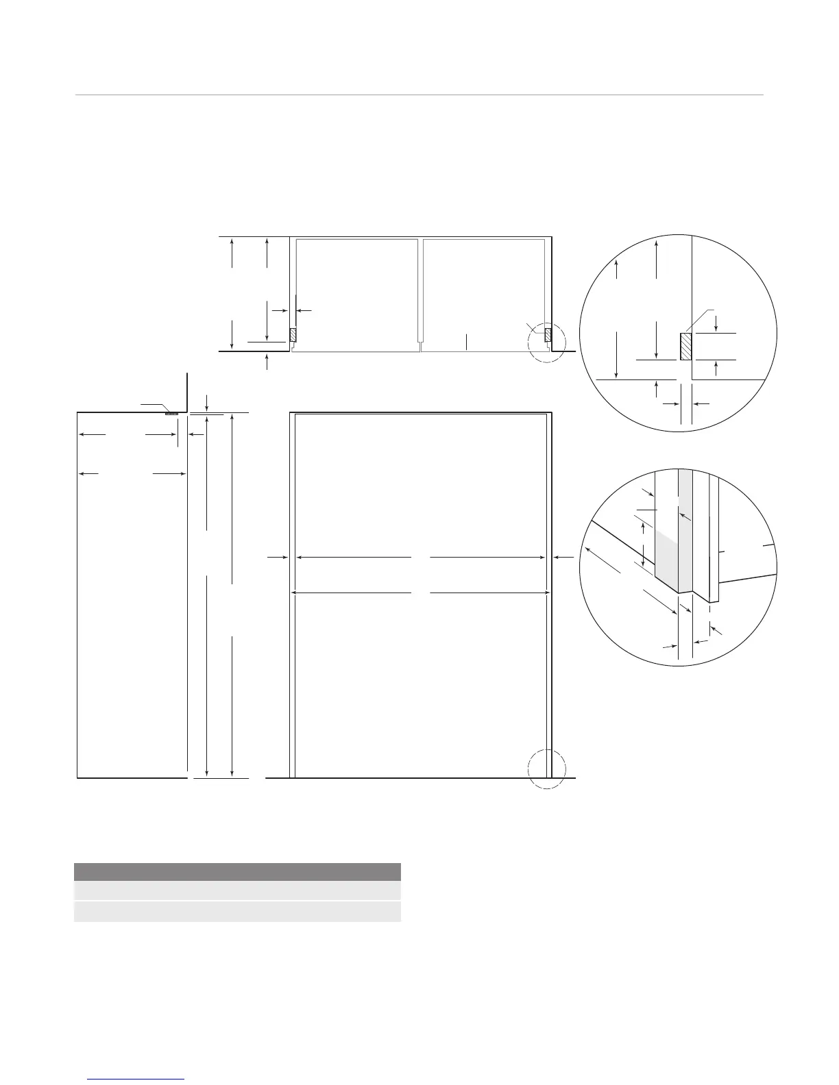
Opening Widths AB
Two 30" (762) Models 59
3
/4" (1518) 62
1
/4" (1581)
Model WS-30 and a 36" (914) Model 65
3
/4" (1670) 68
1
/2" (1740)
IMPORTANT NOTE: Dimensions assume a
3
/4" (19) panel
thickness. A dual installation kit will be required for this instal-
lation.
Dual Flush Inset Installation Opening Dimensions
24" (610)
DEPTH
T
O CLEAT
26
3
/1
6
"
(665)
FLUSH
I
NSET
DEPTH
FRONT VIEW
TOP VIEW
2
3
/16"
(56)
A
WIDTH TO CLEAT
B
FLUSH INSET WIDTH
1
1
/4"
(32)
1
1
/4"
(32)
SIDE VIEW
84"
(2134)
FLUSH
INSET
HEIGHT
1
/4"
(
6)
24" (610)
D
EPTH TO CLEAT
26
3
/1
6
" (
665)
FLUSH INSET DEPTH
2
3
/16"
(56)
83
3
/4"
(2127)
HEIGHT
T
O CLEAT
C
LEAT
T
WO UNITS WITH
3
/4" (19) PANEL
DETAIL A
DETAIL B
1
1
/4"
(32)
CLEAT
Detail A
Detail B
1
1
/4"
(32)
24" (610)
O
PENING
DEPTH
T
O CLEAT
CLEAT
TOP VIEW
26
3
/16"
(
665)
FLUSH
I
NSET
DEPTH
2
3
/1
6
" (
56)
3" (76)
typical
24" (610)
OPENING
DEPTH TO
CLEAT
1
1
/4"
(32)
2
3
/16" (56)
CLEAT
SHADED
AREA
M
UST BE
F
INISHED
3" typical
(76)
4" (102)
3

Other manuals for Sub-Zero 427G

Related product manuals