EasyManua.ls Logo

Sub-Zero 601F - Page 17

Sub-Zero 601F
76 pages
Print Icon
To Next Page IconTo Next Page
To Next Page IconTo Next Page
To Previous Page IconTo Previous Page
To Previous Page IconTo Previous Page
Loading...
17
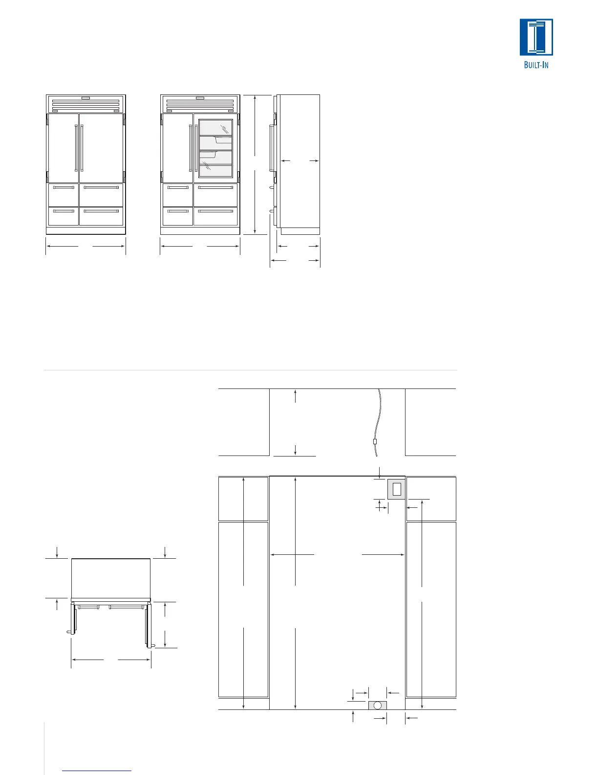
Dimensions in parentheses are in
millimeters unless otherwise specified.
INSTALLATION
Refer to the
installation instruc-
tions shipped with
each Sub-Zero
product for detailed
specifications.
48"
(1219)
7"
(178)
6"
(152)
ROUGH
OPENING DEPTH
24" (610)
STANDARD
26" (660)
FLUSH
ROUGH
OPENING WIDTH
47
1
/2" (1206) STANDARD
48" (1219) FLUSH
E
3" (76)
6"
(152)
W
LOCATE WATER SUPPLY
WITHIN SHADED AREA
LOCATE ELECTRICAL
WITHIN SHADED AREA
5
3
/16"
(132)
SHUT-OFF
VALVE
MIN 48" (1219)
1/4" COPPER
WATER LINE
FRONT VIEW
TOP VIEW
83
3
/4" (2127)
ROUGH
OPENING
HEIGHT TO
FINISHED
FLOORING
83
1
/2" (2121)
MIN HEIGHT
REQUIRED TO
FINISHED
FLOORING
(LEVELERS IN)
75
1
/2"
(1918)
INSTALLATION SPECIFICATIONS
Models 648PRO and 648PROG
Free-Standing or Built-In
Models 648PRO and 648PROG can be
used free-standing or installed as a standard
or flush built-in application. For standard
built-in installations, the face frame of the
unit will extend 2" (51) beyond cabinetry.
In flush built-in installations, the front of the
face frame will be flush with surrounding
cabinetry.
Dimensions are for finished rough openings.
OVERALL DIMENSIONS
Models 648PRO and 648PROG
SIDE-BY-SIDE
Free-Standing or
Built-In
Model 648PRO
Model 648PROG
with Glass Door
Model 648PRO
Width 48" (1219)
Height 84" (2134)
Depth 23
7
/8" (606)*
25
7
/8" (657)**
Model 648PROG
with Glass Door
Width 48" (1219)
Height 84" (2134)
Depth 23
7
/8" (606)*
25
7
/8" (657)**
48"
(1219)
84"
(2134)
25
7
/8"
(657)
30
5
/32"
(766)
23
7
/8"
(606)
23
7
/8"
(606)
BEHIND
FACE
FRAME
25
7
/8"
(657)
TO FRONT
OF FACE
FRAME
28
3
/4"
(730)
48"
(1219)
*Depth from behind face frame to back of unit for standard installation.
**Depth from front of face frame to back of unit for flush installation.

Other manuals for Sub-Zero 601F

Related product manuals