EasyManua.ls Logo

Sub-Zero 601F - Page 39

Sub-Zero 601F
76 pages
Print Icon
To Next Page IconTo Next Page
To Next Page IconTo Next Page
To Previous Page IconTo Previous Page
To Previous Page IconTo Previous Page
Loading...
39
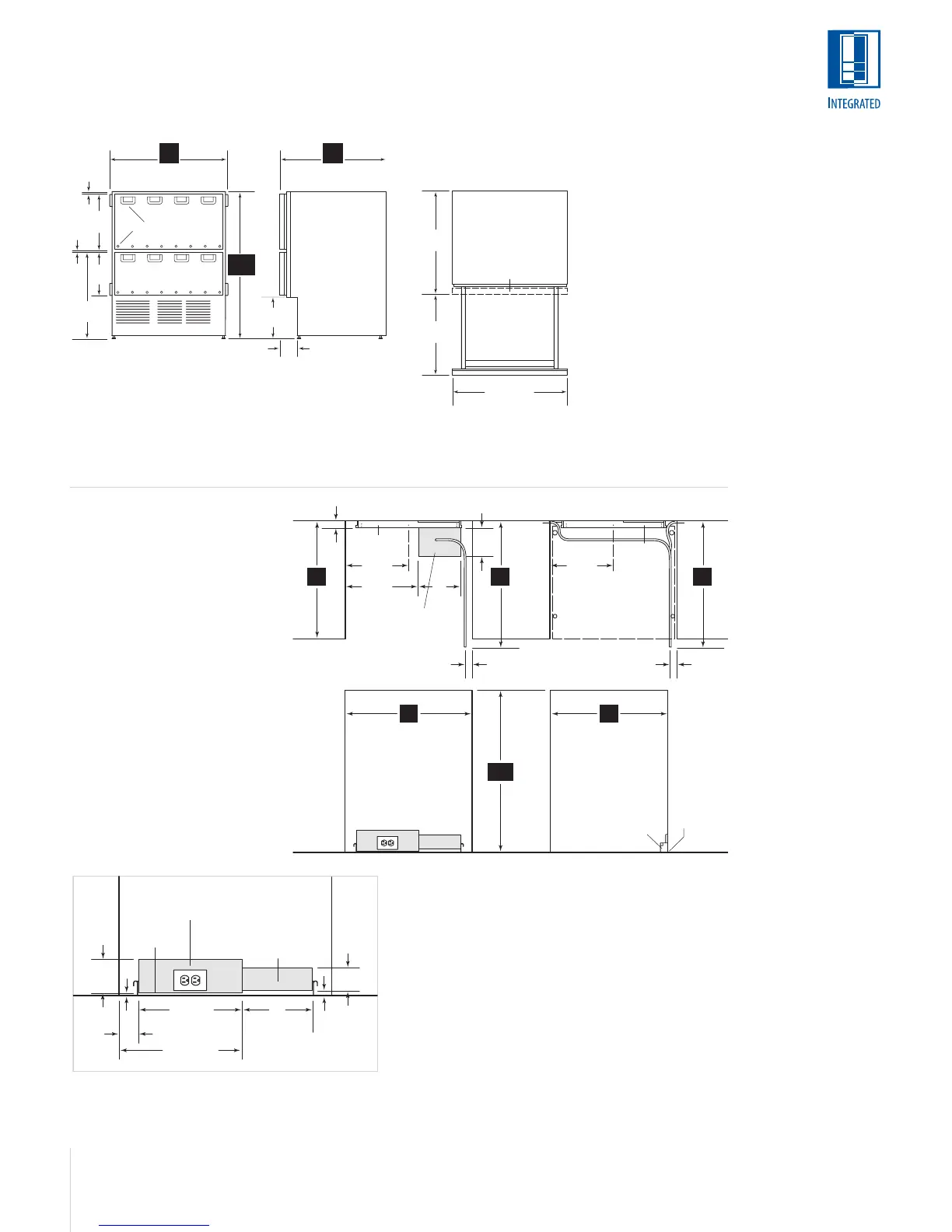
Dimensions in parentheses are in
millimeters unless otherwise specified.
DRAWER
MOUNTING DETAIL
34
1
/2"*
(876)
9
3
/4"
(248)
4"
(102)
FRONT VIEW SIDE VIEW
3
/8"
(10)
13
1
/4"
(337)
1
/2"
(13)
10
1
/4"
(260)
20
3
/8"
(518)
27"
(686)
24"
(610)
(UNIT DIMENSION) (UNIT DIMENSION)
*
1
/2" (13)
+
_
ADJUSTMENT IN LEVELING LEGS
*
DRAWER PANEL THICKNESS NOT INCLUDED
DRAWER CLOSED
19
1
/2"*
(495)
24"
(610)
25
7
/8" (657)
TOP VIEW
25"
(635)
27"
(686)
34
1
/2"
(876)
27"
(686)
25"
(635)
C
L
ANTI-TIP
BRACKET
WATER LINE
BOTTOM ENTRY
LOCATION
WATER LINE
SIDE ENTRY
LOCATIONS
1
1
/2"
(38)
1
1
/2"
(38)
27"
(686)
1
1
/2"
(38)
15
1
/2"
(394)
9"
(229)
13
1
/2"
(343)
C
L
13
1
/2"
(343)
ANTI-TIP
BRACKET
6"
(152)
TOP VIEW TOP VIEW
SIDE VIEWFRONT VIEW
WATER LINE
SIDE ENTRY
LOCATION
ANTI-TIP
BRACKET
NOTE: ANTI-TIP BRACKET MUST BE INSTALLED TO
PREVENT UNIT FROM TIPPING FORWARD
4
1
/2"
(114)
2
1
/2" (64)
15
1
/2" (394)
3
/4"
(19)
3"
(76)
1
/4"
(6)
13" (330) 9"
(229)
ANTI-TIP
BRACKET
LOCATE WATER LINE
(REAR ENTRY) WITHIN
SHADED AREA
LOCATE ELECTRICAL WITHIN
SHADED AREA – ORIENT GROUND
PRONG TO RIGHT AS SHOWN
INSTALLATION
SPECIFICATIONS
Models 700BR and 700BF(I)
Models without an ice maker
will not require the water line
connection.
OVERALL DIMENSIONS
Models 700BR and 700BF(I)
DRAWERS
Model 700BR
All Refrigerator
Model 700BF
All Freezer
Model 700BFI
All Freezer
with Ice Maker
MODEL 700BR
MODEL 700BF(I)
Overall Dimensions
Width 27" (686)
Height 34
1
/2" (876)
Depth 24" (610)
Finished Opening
Width 27" (686)
Height 34
1
/2" (876)
Depth 25" (635)*
*The depth of the unit
is 24" (610) from the
front of the unit to its
back. Your design may
necessitate moving the
unit back or cabinets
forward to achieve a
flush fit. This will
require a minimum
rough opening depth of
25" (635).
INSTALLATION
Refer to the
installation instruc-
tions shipped with
each Sub-Zero
product for detailed
specifications.

Other manuals for Sub-Zero 601F

Related product manuals