EasyManua.ls Logo

Sub-Zero 601R - Page 55

Sub-Zero 601R
76 pages
Print Icon
To Next Page IconTo Next Page
To Next Page IconTo Next Page
To Previous Page IconTo Previous Page
To Previous Page IconTo Previous Page
Loading...
55
INSTALLATION SPECIFICATIONS
Undercounter Models
Model 315W
A) Rough Opening Width 15
1
/4" (387)
B) Rough Opening Height 34
1
/2" (876)
C) Min Door Clearance 16
5
/8" (422)
D) Min Clearance at 90˚ 17
1
/4" (438)
E) Max Door Swing 145˚
F) Min Clearance at (E) 26
1
/8" (664)
Model 424
A) Rough Opening Width 24" (610)
B) Rough Opening Height 34
1
/2" (876)
C) Min Door Clearance 25
3
/8" (644)
D) Min Clearance at 90˚ 26" (660)
E) Max Door Swing 145˚
F) Min Clearance at (E) 44" (1118)
Model 424FS*
C) Min Door Clearance 25
3
/8" (644)
D) Min Clearance at 90˚ 26" (660)
E) Max Door Swing 145˚
F) Min Clearance at (E) 44" (1118)
*Free-standing Model 424FS requires no
surrounding cabinetry.
Dimensions are for finished rough openings.
Door swing clearances are based on
stainless steel door and handle dimensions.
C
90˚
D
C
F
E
A
ROUGH OPENING
WIDTH
15
1
/2"
(394)
MODELS 424 | 424FS
LOCATE ELECTRICAL
WITHIN SHADED AREA
MODEL 315W
LOCATE ELECTRICAL
ANYWHERE ON
BACK WALL
E
4
1
/2"
(
114
)
2
1
/2"
(64)
B
ROUGH
OPENING
HEIGHT TO
FINISHED
FLOORING
24"
(610)
ROUGH
OPENING
DEPTH
TOP VIEW
FRONT VIEW
* INCH (13) ADJUSTMENT IN LEVELING LEGS
FRONT VIEW SIDE VIEW
(CABINET DIMENSION)
TOE KICK
24
1
4
(616)
4
(102)
(625)
5
8
24
1
2
*34
3
16
(868)
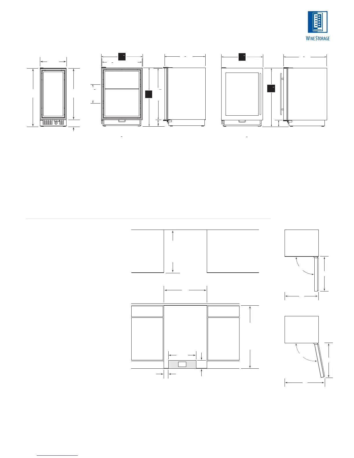
OVERALL DIMENSIONS
Undercounter Wine Storage
UNDERCOUNTER
Model 315W
Built-In
Model 424
Built-In
Model 424FS
Free-Standing
MODEL 315W
Built-In
Width 15
1
/4" (387)
Height 34
1
/16" (865)
Depth 24" (610)
MODEL 424
Built-In
Width 23
7
/8" (606)
Height 34" (864)
Depth 24" (610)
Note the location of pre-drilled
holes for optional handle hardware.
MODEL 424FS
Free-Standing
Width 24
1
/4" (616)
Height 34
3
/16" (868)
Depth 24
5
/8" (625)
* INCH (13) ADJUSTMENT IN LEVELING LEGS
1
2
FRONT VIEW SIDE VIEW
(CABINET DIMENSION)
4
(102)
3
4
(273)
10
CENTERED
VERTICALLY
DOOR FRAME
(597)
1
2
23
30
(767)
DOOR
FRAME
*34
(864)
(587)
1
8
23
3
16
23
7
8
(606)
15
1
/4"
(387)
FRONT VIEW
34
1
/16"
(865)
30
1
/16"
(764)
4" (102)

Other manuals for Sub-Zero 601R

Related product manuals