EasyManua.ls Logo

Sub-Zero 632 - Page 65

Sub-Zero 632
76 pages
Print Icon
To Next Page IconTo Next Page
To Next Page IconTo Next Page
To Previous Page IconTo Previous Page
To Previous Page IconTo Previous Page
Loading...
65
Dimensions in parentheses are in
millimeters unless otherwise specified.
FULL-SCALE
TEMPLATES
The full-scale illus-
trations on the
following pages
enable you to under-
stand some of the
unique situations
you may face as you
plan for the installa-
tion of the Wine
Storage units. Use
these illustrations as
templates.
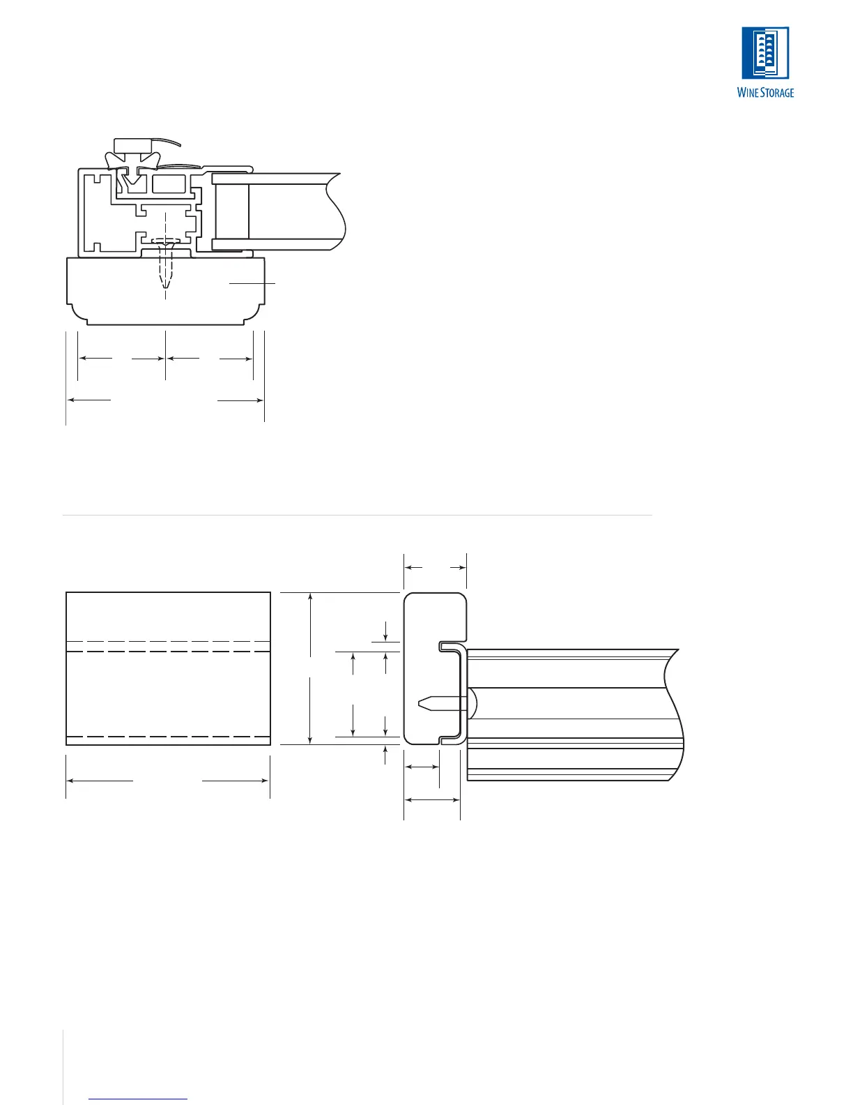
DOOR FRAME PROFILE
A
2
1
/4" (57) Rail/Stile
Glass
A
C
L
Cabinet Door
Profile
WINE SHELF WOOD FACING
A (WIDTH)
Maximum Thickness
FRONT VIEW
SIDE VIEW
1
1
/2" (38)
5
/8"
(16)
7
/64"
(3)
5
/64"
(2)
23
/64"
(9)
9
/16" (14)
27
/32"
(21)
This full-scale illustration is typical of the
Model 424 door frame profile; details of
the other Wine Storage door frames will
vary slightly.
This full-scale illustration provides the
dimensions you will need should you
choose to replace the natural cherry wood
facing of each wine shelf with wood more
complementary to your design and
surrounding cabinetry.
DOOR FRAME HANDLE OFFSET
Wine Storage Models
Dimension A
Model 315W 1" (25)
Model 424 1" (25)
Model 427
7
/8" (22)
Model 427R
7
/8" (22)
Model 430
15
/16" (24)
IMPORTANT NOTE: Rails and stiles must be
a minimum of 2
1
/4" (57) wide (except for the
rails of Models 427 and 427R, which must
be wide enough to cover the door hinges).
The back sides of rails and stiles that will be
visible through the glass door will need to be
finished.
WINE SHELF WOOD FACING
Wine Storage Models
Dimension A
Model 424 19
1
/2" (495)
Model 424FS 19
1
/2" (495)
Model 427 20
15
/16" (532)
Model 427R 20
15
/16" (532)
Model 430 24
9
/16" (624)
Dimensions do not apply to Model 315W.

Other manuals for Sub-Zero 632

Related product manuals