EasyManua.ls Logo

Sub-Zero 650 - Page 37

Sub-Zero 650
76 pages
Print Icon
To Next Page IconTo Next Page
To Next Page IconTo Next Page
To Previous Page IconTo Previous Page
To Previous Page IconTo Previous Page
Loading...
37
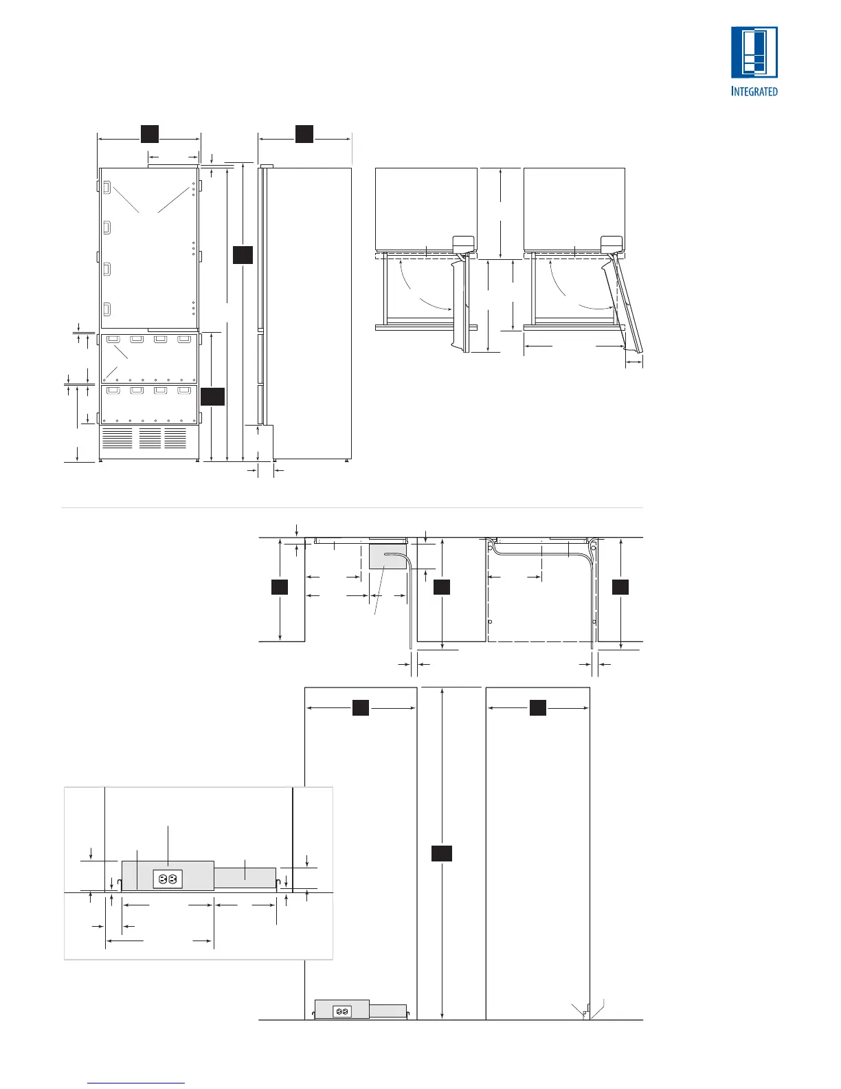
TOP OF
ROUGH
OPENING
78
9
/16"*
(1995)
34
1
/2"*
(876)
14"(356)
13
/16"
(21)
9
3
/4"
(248)
4"
(102)
80"*
(2032)
27"
(686)
24"
(610)
*
1
/2" (13)
+
_
ADJUSTMENT IN LEVELING LEGS
FRONT VIEW SIDE VIEW
(UNIT DIMENSION) (UNIT DIMENSION)
3
/8"
(10)
13
1
/4"
(337)
1
/2"
(13)
10
1
/4"
(260)
20
3
/8"
(518)
DOOR
MOUNTING
DETAIL
DRAWER
MOUNTING DETAIL
105˚
90˚
90˚ DOOR OPENING
DOOR/DRAWER
CLOSED
MAXIMUM DOOR OPENING
*
DOOR/DRAWER PANEL THICKNESS NOT INCLUDED – DIMENSION WILL VARY WITH INSTALLATION
DOOR/DRAWER
CLOSED
19
1
/2"*
(495)25
1
/2"*
(648)
24"
(610)
25
7
/8" (657)
4
5
/8"*(117)
TOP VIEW
25"
(635)
27"
(686)
80"
(2032)
27"
(686)
25"
(635)
C
L
ANTI-TIP
BRACKET
WATER LINE
BOTTOM ENTRY
LOCATION
WATER LINE
SIDE ENTRY
LOCATIONS
1
1
/2"
(38)
1
1
/2"
(38)
27"
(686)
1
1
/2"
(38)
15
1
/2"
(394)
9"
(229)
13
1
/2"
(343)
C
L
13
1
/2"
(343)
ANTI-TIP
BRACKET
6"
(152)
TOP VIEW TOP VIEW
SIDE VIEWFRONT VIEW
WATER LINE
SIDE ENTRY
LOCATION
ANTI-TIP
BRACKET
4
1
/2"
(114)
2
1
/2" (64)
15
1
/2" (394)
3
/4"
(19)
3"
(76)
1
/4"
(6)
13" (330) 9"
(229)
ANTI-TIP
BRACKET
LOCATE WATER LINE
(REAR ENTRY) WITHIN
SHADED AREA
LOCATE ELECTRICAL WITHIN
SHADED AREA – ORIENT GROUND
PRONG TO RIGHT AS SHOWN
NOTE: ANTI-TIP BRACKET MUST BE INSTALLED TO
PREVENT UNIT FROM TIPPING FORWARD
INSTALLATION
SPECIFICATIONS
Models 700TR, 700TF(I) and 700TC(I)
Models without an ice maker will not
require the water line connection.
OVERALL DIMENSIONS
Models 700TR, 700TF(I) and 700TC(I)
ALL REFRIGERATOR
ALL FREEZER
Model 700TR
All Refrigerator
Model 700TF
All Freezer
Model 700TFI
All Freezer
with Ice Maker
MODEL 700TR
MODEL 700TF(I)
MODEL 700TC(I)
Overall Dimensions
Width 27" (686)
Height 80" (2032)
Depth 24" (610)
Finished Opening
Width 27" (686)
Height 80" (2032)
Depth 25" (635)*
*The depth of the unit
is 24" (610) from the
front of the unit to its
back. Your design may
necessitate moving the
unit back or cabinets
forward to achieve a
flush fit. This will
require a minimum
rough opening depth
of 25" (635).
OVER-AND-UNDER
Model 700TC
Model 700TCI
with Ice Maker

Other manuals for Sub-Zero 650

Related product manuals