EasyManua.ls Logo

Sub-Zero 650 - Page 42

Sub-Zero 650
76 pages
Print Icon
To Next Page IconTo Next Page
To Next Page IconTo Next Page
To Previous Page IconTo Previous Page
To Previous Page IconTo Previous Page
Loading...
Dimensions in parentheses are in
millimeters unless otherwise specified.
42
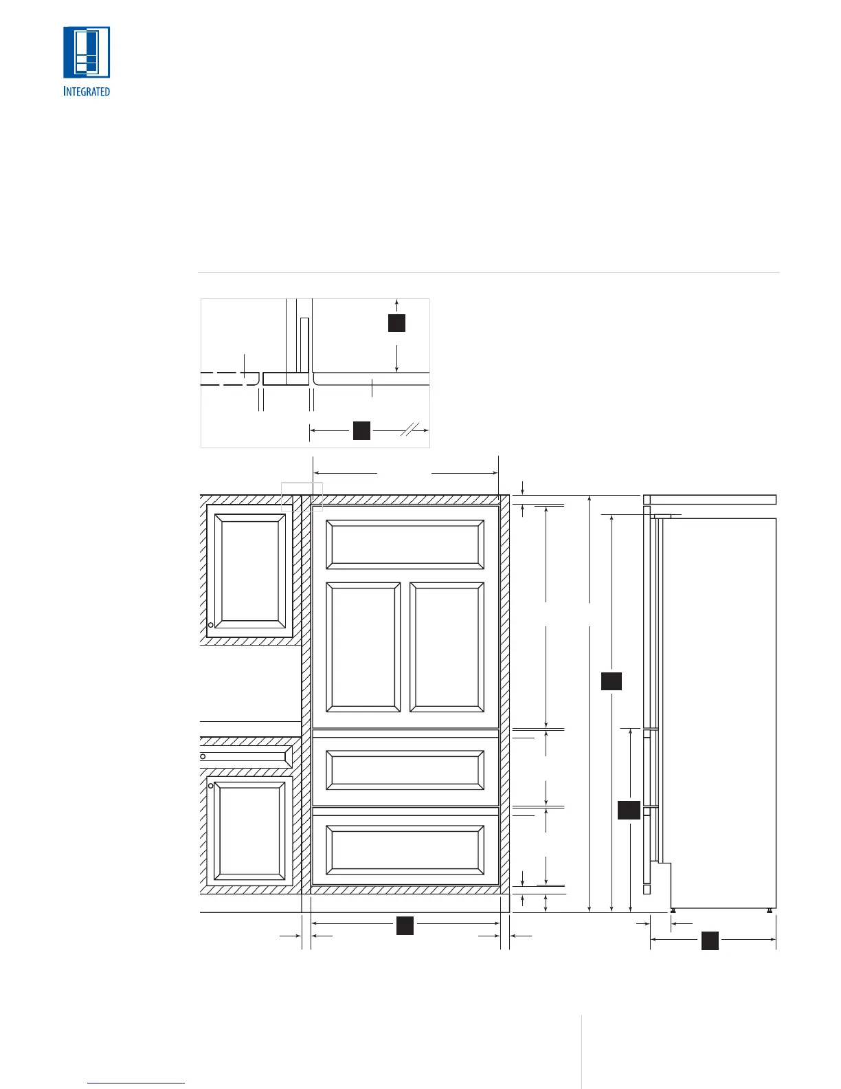
FRAMED CABINETRY –
BEADED INSET APPLICATION
The illustration below shows a Model 736TC(I)
installed within a framed cabinetry beaded inset
application. Review, giving particular attention to
the overall panel specifications. Also refer to the
full-scale illustrations at the end of this section
for specifics on door openings.
MODEL 736TC(I)
Installation of the
Model 736TC(I)
Integrated tall unit
within framed
cabinetry.
*Dimensions may vary.
Dimensions are based
on a
1
/8" (3) reveal. A
reveal of up to
1
/4" (6)
is possible, but panel
dimensions need to be
adjusted accordingly.
INSTALLATION
To install integrated
panels, see the
detailed procedures
outlined in the
Sub-Zero Integrated
Installation Guide.
A) ALL REVEALS ARE 1/8" (3)
B) DRAWER RAILS ARE ATTACHED TO DRAWER FRONTS
C) BOTTOM RAIL MUST BE REMOVABLE
*DIMENSIONS MAY VARY
C
A
A
A
B
B
TOP VIEW
A A
DOOR PANEL
CABINET DOOR
TO WALL
SUB-ZERO
UNIT
PANEL WIDTH
1
1
/2"
(38)
1
1
/2"
(38)
47
7
/8"
(1216)
FRONT VIEW SIDE VIEW
35
3
/4" (908)
13
9
/16"
(345)
15
1
/16"
(383)
84"
(2624)
1
1
/2"
(38)
1
1
/2"
(38)
4"*
(102)
4" (102)
80"*
(2032)
24"
(610)
36"
(914)
SHADED AREA
INDICATES STATIONARY
STYLES AND RAILS
36"
(914)
24"
(610)
34
1
/
2
"
(876)
*

Other manuals for Sub-Zero 650

Related product manuals