56
INTEGRATED
Model 427
All Wine Storage
Model 427R
Wine Storage with
Refrigerator Drawers
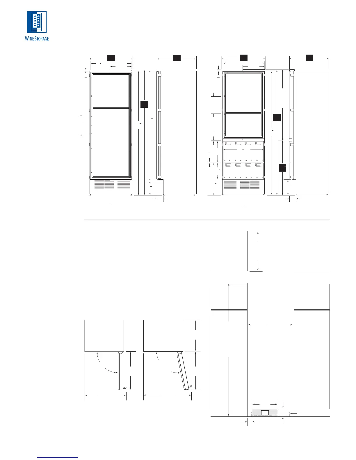
OVERALL
DIMENSIONS
Model 427 | 427R
Width 27" (686)
Height 80" (2032)
Depth 24" (610)
Note the location of
pre-drilled holes for
optional handle
hardware.
INSTALLATION SPECIFICATIONS
Models 427 | 427R
Dimensions are for finished rough openings.
Door swing clearances are based on
stainless steel door and handle dimensions.
IMPORTANT NOTE: The depth of Models
427 and 427R is 24" (610) from the front of
the unit to its back. Your design may neces-
sitate moving the unit back or cabinets
forward to achieve a flush fit. This will
require a minimum rough opening depth of
25" (635).
27"
(686)
ROUGH OPENING WIDTH
25"
(635)
ROUGH
OPENING
DEPTH
15
1
/2"
(394)
LOCATE ELECTRICAL
WITHIN SHADED AREA
E
4
1
/2"
(
114
)
2
1
/2"
(64)
ANTI-TIP BRACKET
FRONT VIEW
TOP VIEW
80" (2032)
ROUGH OPENING
HEIGHT
TO FINISHED
FLOORING
79
1
/2" (2019)
MIN HEIGHT
REQUIRED
OVERALL DIMENSIONS
All Wine Storage – Model 427
* INCH (13) ADJUSTMENT IN LEVELING LEGS
1
2
14
FRONT VIEW SIDE VIEW
(356)
(UNIT DIMENSION)
13
16
(20)
*78
5
8
(1997)
8
15
16
(227)
4
(102)
27
(686)
24
(610)
3
4
(273)
10
CENTERED
ERTICALLY
DOOR FRAME
(664)
1
8
26
70
7
16
(1789)
DOOR
FRAME
WITH
HINGES
80
(2032)
Wine Storage with Refrigerator Drawers – Model 427R
* INCH (13) ADJUSTMENT IN LEVELING LEGS
14
DRAWER FRONT
FRONT VIEW SIDE VIEW
(356)
20
3
8
(517)
1
2
(13)
10
1
4
(260)
13
1
4
(337)
3
8
(9)
(UNIT DIMENSION)
13
16
(20)
*78
5
8
(1997)
9
3
4
(248)
4
(102)
27
(686)
24
(610)
3
4
(273)
10
CENTERED
VERTICALLY
(650)
9
16
25
DOOR FRAME
(664)
1
8
26
*34
1
2
(877)
44
7
8
(1139)
DOOR
FRAME
WITH
HINGES
1
2
80
(2032)
23
7
/8"
(606)
90˚
105˚
MAXIMUM
DOOR SWING
35" (889)
DOOR CLEARANCE
28" (711)
DOOR CLEARANCE
25
1
/2"
(648)
25
1
/2"
(648)