EasyManua.ls Logo

Sub-Zero 695 - Integrated Framed Cabinetry - Beaded Inset

Sub-Zero 695
76 pages
Print Icon
To Next Page IconTo Next Page
To Next Page IconTo Next Page
To Previous Page IconTo Previous Page
To Previous Page IconTo Previous Page
Loading...
41
Dimensions in parentheses are in
millimeters unless otherwise specified.
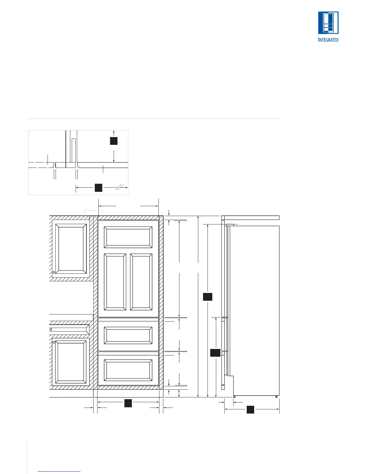
FRAMED CABINETRY –
BEADED INSET APPLICATION
The illustration below shows a 27" (686) wide
Integrated base or tall unit installed within a
framed cabinetry beaded inset application.
Review, giving particular attention to the overall
panel specifications. Also refer to the full-scale
illustrations at the end of this section for
specifics on door openings.
A) ALL REVEALS ARE 1/8" (3)
B) DRAWER RAILS ARE ATTACHED TO DRAWER FRONTS
C) BOTTOM RAIL MUST BE REMOVABLE
*DIMENSIONS MAY VARY
C
A
A
A
B
B
TOP VIEW
A A
DOOR PANEL
CABINET DOOR
TO WALL
SUB-ZERO
UNIT
PANEL WIDTH
1
1
/2"
(38)
1
1
/2"
(38)
47
7
/8"
(1216)
FRONT VIEW SIDE VIEW
26
3
/4" (679)
13
9
/16"
(345)
15
1
/16"
(383)
84"
(2624)
1
1
/2"
(38)
1
1
/2"
(38)
4"*
(102)
4" (102)
80"*
(2032)
34
1
/
2
"
(876)
*
24"
(610)
27"
(686)
SHADED AREA
INDICATES STATIONARY
STYLES AND RAILS
27"
(686)
24"
(610)
27" (686)
WIDE MODELS
Installation of a
27" (686) wide
Integrated base or
tall unit within
framed cabinetry.
*Dimensions may vary.
Dimensions are based
on a
1
/8" (3) reveal. A
reveal of up to
1
/4"(6)
is possible, but panel
dimensions need to be
adjusted accordingly.
INSTALLATION
To install integrated
panels, see the
detailed procedures
outlined in the
Sub-Zero Integrated
Installation Guide.

Other manuals for Sub-Zero 695

Related product manuals