EasyManua.ls Logo

Sub-Zero ICBBI-48S - Page 50

Sub-Zero ICBBI-48S
78 pages
Print Icon
To Next Page IconTo Next Page
To Next Page IconTo Next Page
To Previous Page IconTo Previous Page
To Previous Page IconTo Previous Page
Loading...
50
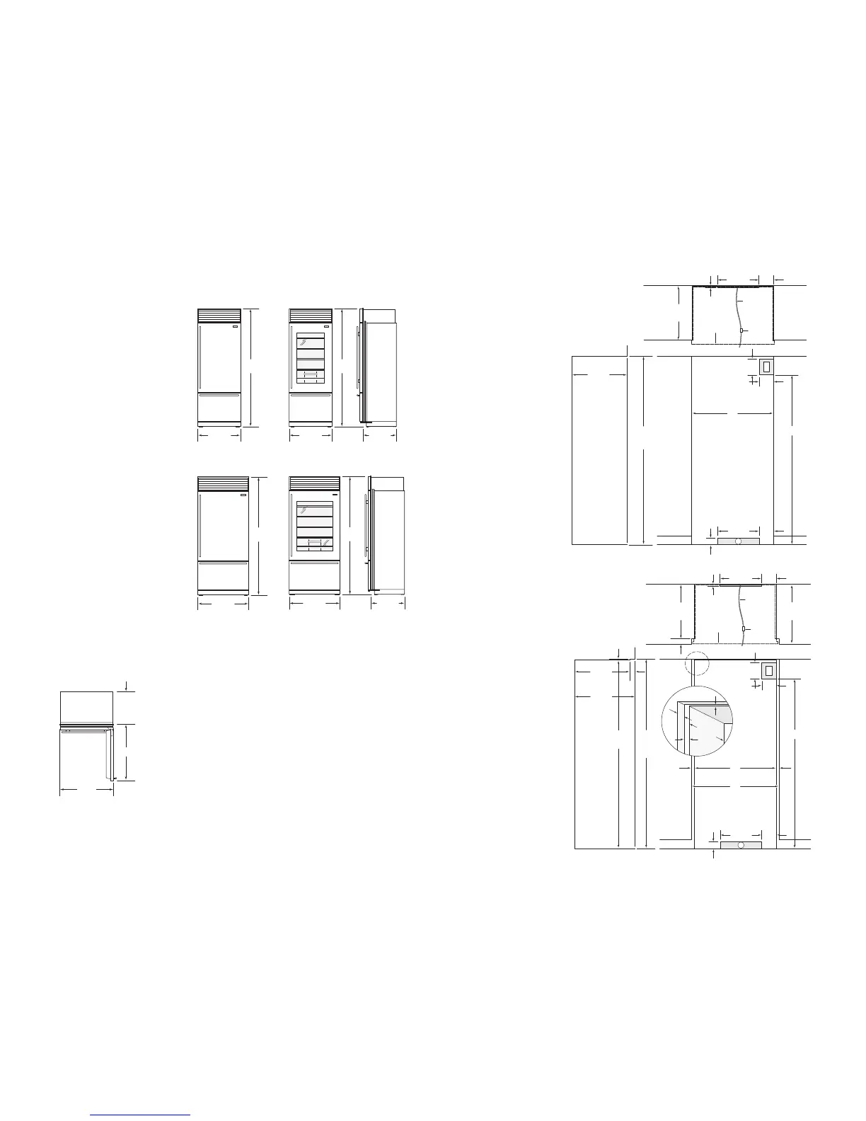
SPECIFICHE PER L’INSTALLAZIONE DA INCASSO
SPAZIO PORTA
Modelli frigorifero sopra / freezer sotto
A
Modello ICBBI-30U 794 mm
806 mm
inserto a filo
Modello ICBBI-30UG 794 mm
806 mm
inserto a filo
Modello ICBBI-36U 946 mm
959 mm
inserto a filo
Modello ICBBI-36UG 946 mm
959 mm
inserto a filo
Gli ingombri previsti per la porta si basano
sulle dimensioni con porta e maniglia in
acciaio inossidabile.
DIMENSIONI GENERALI
Modelli frigorifero sopra / freezer sotto
Modello ICBBI-30U
LAP
762 mm 2.134 mm 610 mm
Modello ICBBI-30UG
con porta in vetro
LAP
762 mm 2.134 mm 610 mm
Modello ICBBI-36U
LAP
914 mm
2.134 mm 610 mm
Model ICBBI-36UG
con porta in vetro
LAP
914 mm 2.134 mm 610 mm
Le dimensioni delle unità potrebbero
variare di ± 3 mm.
606 mm
DIETRO IL
TELAIO
LARGHEZZA
DELL’UNITÀ
A
Modello ICBBI-30U
Modello ICBBI-36U
762 mm
2.134
mm
762 mm
2.134
mm
610 mm
914 mm
2.134
mm
914 mm
2.134
mm
610 mm
Modello ICBBI-30UG
Modello ICBBI-36UG
Design in acciaio inossidabile.
SPECIFICHE PER L’INSTAL-
LAZIONE
Modelli frigo sopra / freezer sotto—
a sovrapposizione (non con inserto a filo)
e in acciaio inossidabile
A
Modello ICBBI-30U 749 mm
Modello ICBBI-30UG 749 mm
Modello ICBBI-36U 902 mm
Modello ICBBI-36UG 902 mm
Le dimensioni sono relative al vano incasso
finito.
SPECIFICHE PER L’INSTAL-
LAZIONE
Modelli frigorifero sopra / freezer sotto—
applicazione con inserto a filo
AB
Modello ICBBI-30U 749 mm 813 mm
Modello ICBBI-30UG 749 mm 813 mm
Modello ICBBI-36U 902 mm 965 mm
Modello ICBBI-36UG 902 mm 965 mm
Le dimensioni sono relative al vano incasso
finito.
1.918 mm
178
mm
152
mm
E
POSIZIONARE L’IMPIANTO
ELETTRICO NELL’AREA
OMBREGGIATA
457 mm
W
POSIZIONARE LA LINEA
DI MANDATA IDRICA
NELL’AREA OMBREGGIATA
152
mm
VISTA ANTERIOREVISTA LATERALE
ALTEZZA
APERTURA
2.127 mm
A
LARGHEZZA APERTURA
76 mm
PROFONDITÀ
INCASSO
610 mm
13 mm
457 mm
*
152
mm
PROFONDITÀ
INCASSO
610 mm
VALVOLA DI
ARRESTO
PROFILO DEL
MODELLO
A SOVRAPPOSIZIONE
O IN ACCIAIO
INOSSIDABILE
VISTA
SUPERIORE
*LA STAFFA ANTIRIBALTAMENTO
NON DEVE INTERFERIRE CON LA
CONDUTTURA IDRICA. PER INFORMA-
ZIONI DETTAGLIATE FARE RIFERIMENTO
ALLE ISTRUZIONI DI INSTALLAZIONE.
FAR SPORGERE LA CONDUTTURA
IDRICA DI CIRCA 914 MM DALLA
PARETE POSTERIORE.
CONDUTTURA
IDRICA
1.918 mm
178
mm
152
mm
E
POSIZIONARE
L’IMPIANTO
ELETTRICO
NELL’AREA
OMBREGGIATA
13 mm
457 mm
*
152
mm
PROFONDITÀ
INCASSO
610 mm
PROFONDITÀ
INSERTO A FILO
665 mm
VALVOLA DI
ARRESTO
PROFILO DELL’AP-
PLICAZIONE CON
INSERTO A FILO CON
PANNELLO DA 19 mm
457 mm
W
POSIZIONARE LA LINEA DI
MANDATA IDRICA
NELL’AREA OMBREGGIATA
152
mm
VISTA ANTERIOREVISTA LATERALE
VISTA
SUPERIORE
ALTEZZA
APERTURA
2.127 mm
ALTEZZA
INSERTO
A FILO
2.134
mm
6 mm
56 mm**
76 mm
A
LARGHEZZA APERTURA
B
PROFONDITÀ INSERTO A FILO
32
mm
32
mm
56
mm**
PROFONDITÀ
INCASSO
610 mm
PROFONDITÀ
INSERTO A FILO
665 mm
*LA STAFFA ANTIRIBALTAMENTO
NON DEVE INTERFERIRE CON LA
CONDUTTURA IDRICA. PER INFORMA-
ZIONI DETTAGLIATE FARE RIFERIMENTO
ALLE ISTRUZIONI DI INSTALLAZIONE.
**PRESUPPONE UN PANNELLO
SPESSO 19 MM.
FAR SPORGERE LA CONDUTTURA
IDRICA DI CIRCA 914 MM DALLA
PARETE POSTERIORE.
CONDUTTURA
IDRICA
6
mm
32
mm
DETTAGLIO
INSERTO A FILO
56
mm
PROFONDITÀ
INCASSO
610 mm

Other manuals for Sub-Zero ICBBI-48S

Related product manuals