EasyManua.ls Logo

Sub-Zero Wolf ICB700 Series - Page 90

Sub-Zero Wolf ICB700 Series
94 pages
Print Icon
To Next Page IconTo Next Page
To Next Page IconTo Next Page
To Previous Page IconTo Previous Page
To Previous Page IconTo Previous Page
Loading...
Page 90
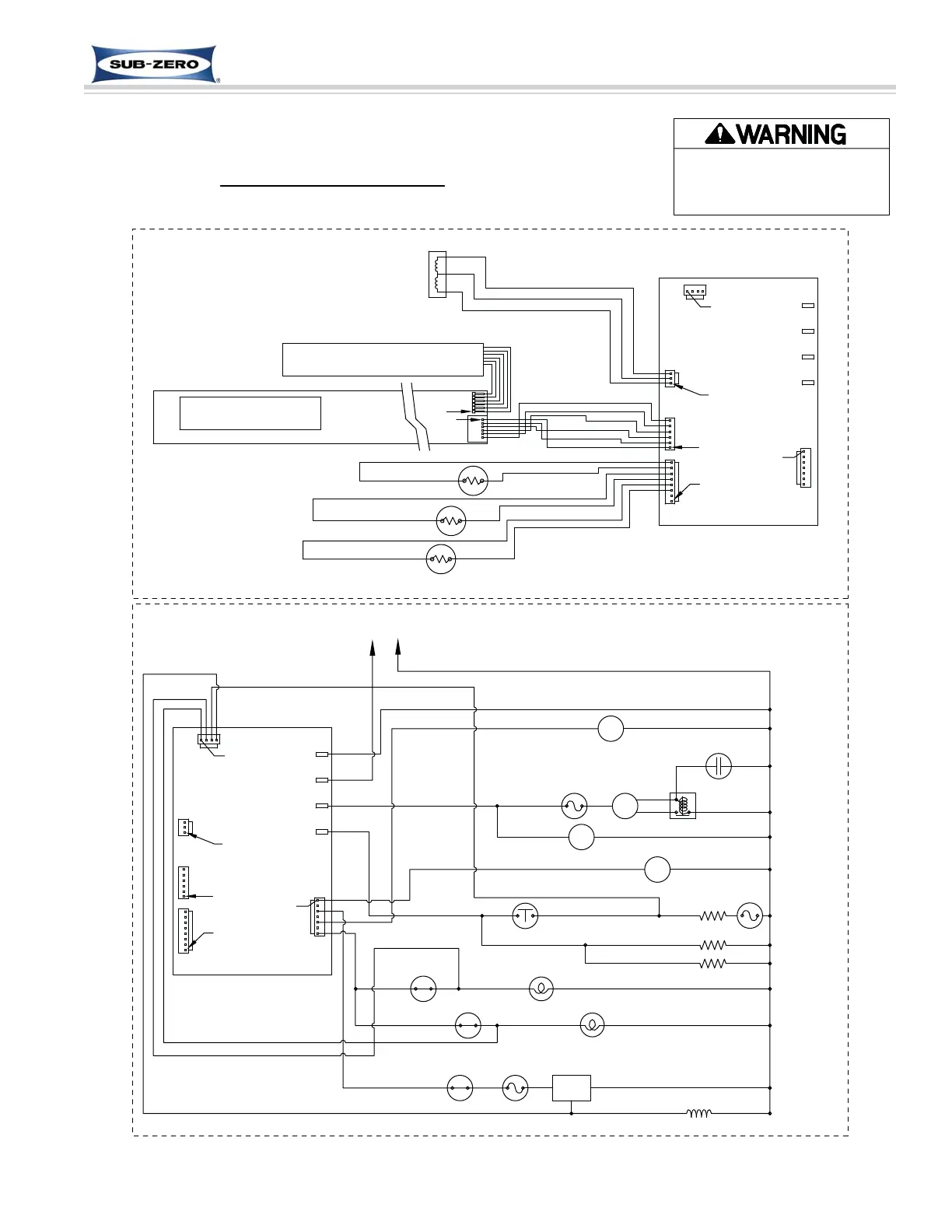
10-3
Wire Diagrams & Schematics
7011902 - Revision A - October, 2009
International Integrated
International Integrated
(ICB700 Base)
(ICB700 Base)
Series
Series
MAIN BOARD
J3
J5
P4
P3
P1
P2
J6
J4
J2
PIN 1
PIN 1
PIN 1
PIN 1
PIN 1
PIN 1
PIN 1
J3
J2
REF AIR DUCT BAFFLE
DISPLAY BOARD
DISPLAY
MEMBRANE KEYPAD
YELLOW W/RED STRIPE
YELLOW W/WHITE STRIPE
YELLOW W/BLACK STRIPE
THERMISTOR EVAP
BLUE W/YELLOW STRIPE
BLUE W/BLACK STRIPE
BLUE W/BLACK STRIPE
BLUE W/YELLOW STRIPE
BLUE W/RED STRIPE
ORANGE W/RED STRIPE
BLUE
ORANGE
WHITE
BLACK
YELLOW
RED
THERMISTOR LOWER
DRAWER / FRZ
THERMISTOR UPPER
DRAWER / REF.
RUNNING
CAPACITOR
REF FAN MOTOR
OVERLOAD
PROTECTOR
L1
NEUTRAL
J5
MAIN BOARD
PIN 1
J3
PIN 1
J4
J6
PIN 1
PIN 1
P2
PIN 1
J2
P1
P3
P4
BLACK
GRAY
WHITE
WHITE
WHITE
WHITE
GRAY W/WHITE STRIPE
TAN
ORANGE
COMPRESSOR
STARTING
RELAY
M
M
M
M
THERMAL
CUT-OUT
DEFROST TERMINATOR
FILL TUBE HEATER
FRZ FAN MOTOR
CONDENSER FAN
DEFROST HEATER
DRAIN HEATER
COMPRESSOR
REF (TOP)
DRAWER LIGHT
REF LIGHT
SWITCH
FRZ LIGHT SWITCH
FRZ (BOTTOM)
DRAWER LIGHT
ICEMAKER
THERMAL
FUSE
ICEMAKER
SWITCH
ICEMAKER VALVE
YELLOW
ORANGE W/BLACK STRIPE
PINK
ORANGE
BLUE
RED
PURPLE
TAN
GRAY W/WHITE STRIPE
BLUE
TAN
ORANGE W/BLACK STRIPE
ORANGE
GRAY W/WHITE STRIPE
220-240 VOLTS
50/60 CYCLES
HIGH VOLTAGE SCHEMATIC
LOW VOLTAGE SCHEMATIC
WIRING SCHEMATIC
MODEL ICB700BCI
Schematic Part Number 7004907 Rev A
WHITE
WHITE
WHITE
WHITE
WHITE
WHITE
WHITE
WHITE
WHITE
WHITE
PURPLE
-This wiring information is provided for use by qualified
service personnel only.
-Disconnect appliance from electrical supply before
beginning service.
-Be sure all grounding devices are connected when
service is complete.
-Failure to observe the above warnings may result in
severe electrical shock.

Related product manuals