EasyManua.ls Logo

Sub-Zero Wolf ICB700 Series - Page 91

Sub-Zero Wolf ICB700 Series
94 pages
Print Icon
To Next Page IconTo Next Page
To Next Page IconTo Next Page
To Previous Page IconTo Previous Page
To Previous Page IconTo Previous Page
Loading...
Page 91
COMPT
EVAP
EVAP
DISPLAY
DISPLAY
DISPLAY
DISPLAY
DISPLAY
DISPLAY
UPR
LWR
LIGHTS
FAN 1
COMPRESSOR
CIRCUIT
LOW VOLTAGE THERMISTOR CIRCUITS
HIGH VOLTAGE CIRCUITS
J5-3,4
J3-3
TERMINAL
P3
P4
P2
P1
J3-1
J3-2
J3-6
J3-5
J3-4
J2-1
J3-7
J5-1,2
J2-4
J2-3
J2-2
J4-5
J5-5,6
J5-7
J6-2
J6-1
J5-8
J4-2
J4-1
J6-3
J4-4
J4-3
J4-6
GROUND FOR DISPLAY BOARD POWER SUPPLY
12VDC POWER SUPPLY FOR DISPLAY BOARD
GROUND FOR DISPLAY BOARD POWER SUPPLY
SERIAL DATE TRANSMIT
SERIAL DATA RECEIVE
12VDC POWER SUPPLY FOR DISPLAY BOARD
SENSES EVAPORATOR TEMPERATURE
SENSES IF LOWER DRAWER OPEN
POWERS COMPRESSOR AND CONDENSER FAN
SENSES EVAPORATOR TEMPERATURE
SENSES IF UPPER DRAWER OPEN
POWERS EVAPORATOR FAN
POWER INTO BOARD
NEUTRAL INTO BOARD
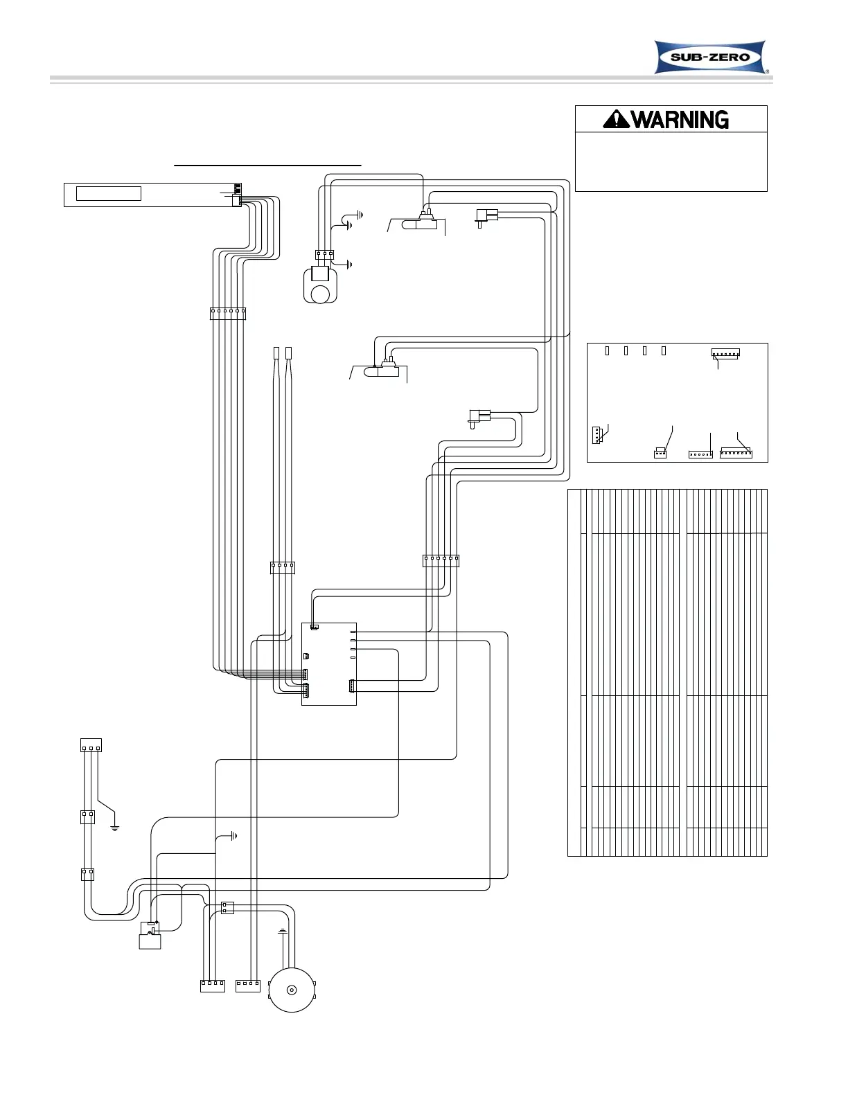
MAIN CONTROL BOARD SUMMARY
SENSES REFRIGERATOR CABINET TEMPERATURE
REFRIGERATOR COMPARTMENT
NOT USED
LOWER LIGHT SENSE
UPPER LIGHT SENSE
NOT USED
NOT USED
NEUTRAL
NOT USED
EVAPORATOR FAN
NOT USED
DESCRIPTION
COMPRESSOR
POWER INL1
L2
LIGHTS
NOT USED
NOT USED
NOT USED
NOT USED
FUNCTION
POWERS LIGHTS
NOT USED
DISPLAY WIRING
EVAPORATOR
DISPLAY WIRING
DISPLAY WIRING
DISPLAY WIRING
DISPLAY WIRING
EVAPORATOR
NOT USED
NOT USED
NOT USED
DISPLAY WIRING
WHITE
PURPLE
COLOR
BLACK
RED
YELLOW
ORANGE/BLACK
ORANGE
ORANGE
ORANGE/YELLOW
BLACK
WHITE
YELLOW
BLUE/BLACK
BLUE/YELLOW
RED
BLUE
PIN 1
PIN 1
J3
J2
DISPLAY BOARD
POWER SUPPLY CORD
UPPER
SWITCH LIGHT
UPPER DRAWER
LIGHT
REF FAN MOTOR
POWER INLET
321
LOWER
SWITCH LIGHT
LOWER
DRAWER LIGHT
SENSOR (EVAP)
SENSOR
(REF CAB)
MAIN
BOARD
1
1
1
1
1
J4
J5
J6
J2
P1
J3
P2
P4
P3
COMPRESSOR
MFG TEST
TERMINALS
1 PURPLE
2 WHITE
3 GRN/YELLOW
4 ORANGE/YELLOW
3 BLUE/YELLOW
1 BLACK
2 WHITE
WHITE
WHITE
2
1
PURPLE
WHITE
GREEN
BLACK
BLACK
BLACK
WHITE
BLACK
PURPLE
YELLOW
RED
BLACK
WHITE
BLACK
WHITE
YELLOW
ORANGE
BLUE
RED
ORANGE
BLUE
YELLOW
WHITE
BLACK
5
6
RED
4
3
2
1
GREEN/YELLOW
WHITE
ORANGE
ORANGE/BLACK
RED
WHITE
2
1
YELLOW
3
GREEN/YELLOW
WHITE
ORANGE/BLACK
BLUE/BLACK
BLUE/BLACK
3
2
1
YELLOW
ORNG/BLK
YELLOW
YELLOW
ORANGE
RED
GREEN/YELLOW
RED
WHITE
GREEN/YELLOW
WHITE
YELLOW
ORANGE
ORANGE
RED
BLUE/YELLOW
ORANGE/YELLOW
4
2
1
3
GREEN/YELLOW
GREEN/YELLOW
6
5
ORANGE
ORANGE/BLACK
4
PURPLE
12
WHITE
BLACK
BLACK
WHITE
GREEN/YELLOW
CONDENSER FAN MOTOR
MAIN CONTROL BOARD DETAIL
J5
J4
J6
J3
P2
P1
J2
P4
P3
PIN 1
PIN 1
PIN 1
PIN 1
PIN 1
WIRING DIAGRAM
MODEL ICB700BR
Part Number 7004920 Rev A
-This wiring information is provided for use by qualified
service personnel only.
-Disconnect appliance from electrical supply before
beginning service.
-Be sure all grounding devices are connected when
service is complete.
-Failure to observe the above warnings may result in
severe electrical shock.
10-4
Wire Diagrams & Schematics
7011902 - Revision A - October, 2009
International Integrated
International Integrated
(ICB700 Base)
(ICB700 Base)
Series
Series

Related product manuals