EasyManua.ls Logo

Sub-Zero Wolf ICB700 Series - Page 93

Sub-Zero Wolf ICB700 Series
94 pages
Print Icon
To Next Page IconTo Next Page
To Next Page IconTo Next Page
To Previous Page IconTo Previous Page
To Previous Page IconTo Previous Page
Loading...
Page 93
ORANGE
BLACK
BLUE/RED
BLUE/BLACK
YELLOW/BLACK
YELLOW/WHITE
PINK
POWER IN
HIGH VOLTAGE CIRCUITS
COMPRESSOR
DESCRIPTION
NOT USED
DEFROST HEATER
EVAPORATOR FAN
NOT USED
NOT USED
FRZ DRAWER LIGHT SENSE
REF DRAWER LIGHT SENSE
DEFROST SENSOR
NOT USED
EVAPORATOR
LOW VOLTAGE THERMISTOR CIRCUITS
ICE MAKER
ICE MAKER VALVE SENSOR
NEUTRAL
CIRCUIT
J2-2
J2-3
J2-4
J3-6
J3-7
J2-1
J3-4
J3-2
J3-3
J3-5
ICE
COMPRESSOR
L1
DEFROST
LN
FAN 1
P4
P1
P3
P2
J3-1
J5-8
J6-1
J6-2
J6-3
J5-1,2
J5-3,4
J5-5,6
J5-7
COLORFUNCTION
MAIN CONTROL BOARD SUMMARY
NEUTRAL INTO BOARD
POWER INTO BOARD
POWERS EVAPORATOR FAN
SENSES IF FREEZER DRAWER OPEN
SENSES EVAPORATOR TEMPERATURE
POWERS DEFROST CIRCUIT AND FILL TUBE HEATER
SENSES WHEN DEF HEATER SHUTS OFF
SENSES WATER VALVE ACTIVATION
POWERS ICE MAKER
POWERS LIGHTS
PURPLE
WHITE
ORANGE/BLACK
GRAY
TERMINAL
J4-5
J4-3
J4-2
J4-1
J4-4
DISPLAY WIRING
J4-6
ORANGE
BLUE
YELLOW
RED
WHITE
BLACK
YELLOW/RED
ORANGE/RED
LIGHTS
LWR
UPR
DEF
ICE
FREEZER COMPARMENT
DISPLAY WIRING
DISPLAY WIRING
DISPLAY WIRING
DISPLAY WIRING
DISPLAY WIRINGDISPLAY
DISPLAY
DISPLAY
DISPLAY
DISPLAY
DISPLAY
EVAP
EVAP
LOWER
POWERS COMPRESSOR AND CONDENSER FAN
SENSES IF REFRIGERATOR DRAWER OPEN
SENSES FREEZER CABINET TEMPERATURE
SENSES EVAPORATOR TEMPERATURE
12VDC POWER SUPPLY FOR DISPLAY BOARD
SERIAL DATA RECEIVE
SERIAL DATE TRANSMIT
GROUND FOR DISPLAY BOARD POWER SUPPLY
12VDC POWER SUPPLY FOR DISPLAY BOARD
GROUND FOR DISPLAY BOARD POWER SUPPLY
BLUE
RED
YELLOW
GRAY/WHITE
TAN
BLUE/YELLOW
LIGHTS
EVAPORATOR
TAN
2
1
PIN 1
PIN 1
J3
J2
DISPLAY BOARD
J5
J4
J6
J3
J2
P1
P2
P3
P4
1
1
1
1
1
MAIN
BOARD
POWER
SUPPLY CORD
POWER INLET
SENSOR (EVAP)
UPPER LIGHT
SWITCH
UPPER
DRAWER LIGHT
SENSOR (FRE CAB)
LOWER
DRAWER LIGHT
ICEMAKER SWITCH
LOWER LIGHT SWITCH
THERMAL FUSE
ICEMAKER
FILL TUBE HEATER
4
FRZ FAN MOTOR
DEFROST
TERMINATOR
DEFROST HEATER
1
2
BLUE
GRAY
ICEMAKER SOLENOID
1
2
DRAIN HEATER
BLACK
WHITE
PURPLE
3
2
3
1
6
2
3
4
5
GRN/YLW
TAN
PINK
WHITE
1
BLACK
BLACK
2
1
GRAY/WHITE STRIPE
WHITE
GRAY/WHITE STRIPE
BLUE
BLUE/RED STRIPE
ORNG/RED STRIPE
BLUE/RED STRIPE
ORANGE/RED STRIPE
1 BLUE/RED STRIPE
2 ORANGE/RED STRIPE
GREEN
WHITE
BLACK
BLACK
PURPLE
BLACK
3 GRN/YL STP
2 WHITE
1 PURPLE
TAN
WHITE
WHITE
WHITE
2 WHITE
1 BLACK
WHITE
BLUE
WHITE
BLUE
1
2
GREEN/YELLOW STRIPE
TAN
WHITE
BLACK
WHITE
YELLOW
RED
BLUE
ORANGE
BLUE
ORANGE
YELLOW
RED
WHITE
BLACK
RED
WHITE
10
18
17
16
9
8
7
11
3
2
1
ORANGE
WHITE
ORANGE/BLACK
WHITE
PINK
PINK
PURLPE
1
5
YELLOW
3
4
2
WHITE
6
BLUE
WHITE
BLUE
2
WHITE
1
RED
WHITE
RED
ORANGE
YELLOW
ORNG/BLK
YELLOW
ORG/BLK
ORANGE
4
3
5
TAN
WHITE
PINK
GRAY
14
5
BLUE/YELLOW STRIPE
15
6
BLUE/YELLOW STRIPE
ORANGE
TAN
TAN
PURPLE
BLACK
WHITE
WHITE
2
YELLOW
YELLOW
1
2
3
1
BLUE
GRAY/WHITE STRIPE
TAN
ORANGE/BLACK STRIPE
ORANGE
WHITE
BLUE
GRAY/WHITE STRIPE
BLUE
PURPLE
BLACK
WHITE
RED
YELLOW
PINK
GREEN/YELLOW STRIPE
GREEN W/YELLOW STRIPE
GREEN
GREEN W/YELLOW STRIPE
GREEN W/YELLOW STRIPE
BLUE/YELLOW STRIPE
BLUE/YELLOW STRIPE
ORANGE
BLACK
1 ORNG/RED STRIPE
2 BLUE/RED STRIPE
BLUE
GRAY
12
WHITE
BLACK
BLACK
WHITE
GREEN/YELLOW
321
CONDENSER FAN MOTOR
COMPRESSOR
COMPRESSOR
STARTING
RELAY
MFG TEST
TERMINALS
RUNNING
CAPACITOR
J2
J6
J4
J5
P3
P2
P1
J3
P4
PIN 1
PIN 1
PIN 1
PIN 1
PIN 1
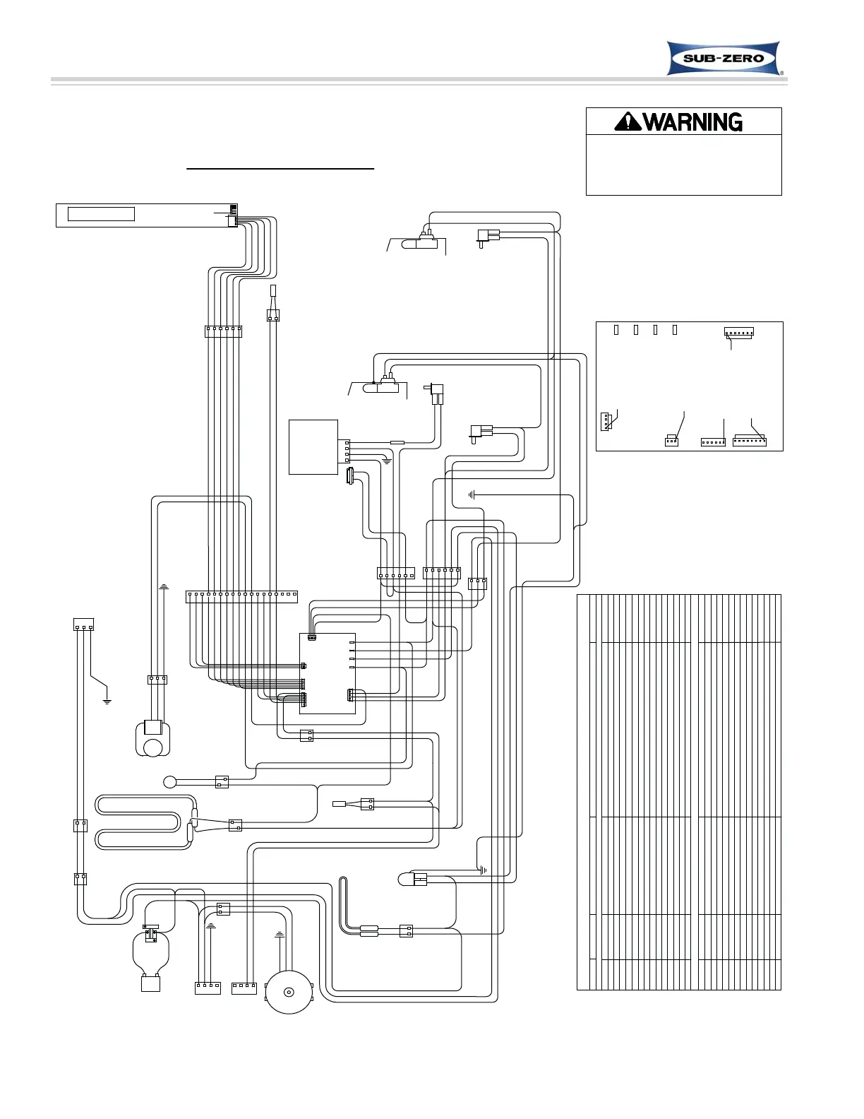
MAIN CONTROL BOARD DETAIL
WIRING DIAGRAM
MODEL ICB700BFI
Part Number 7004933 Rev A
-This wiring information is provided for use by qualified
service personnel only.
-Disconnect appliance from electrical supply before
beginning service.
-Be sure all grounding devices are connected when
service is complete.
-Failure to observe the above warnings may result in
severe electrical shock.
10-6
Wire Diagrams & Schematics
7011902 - Revision A - October, 2009
International Integrated
International Integrated
(ICB700 Base)
(ICB700 Base)
Series
Series

Related product manuals