EasyManua.ls Logo

Subzero 424 - Models 427 and 427 R Installation; Opening Dimensions and Clearance

Subzero 424
52 pages
Print Icon
To Next Page IconTo Next Page
To Next Page IconTo Next Page
To Previous Page IconTo Previous Page
To Previous Page IconTo Previous Page
Loading...
Models 427 and 427R Installation 14
27"
(686)
ROUGH OPENING WIDTH
25"
(635)
ROUGH
OPENING
D
EPTH
23
7
/8"
(606)
90˚
105˚
MAXIMUM
DOOR SWING
35" (889)
DOOR CLEARANCE
28" (711)
DOOR CLEARANCE
25
1
/2"
(648)
25
1
/2"
(648)
15
1
/2"
(394)
LOCATE ELECTRICAL
WITHIN SHADED AREA
E
4
1
/2"
(
114
)
2
1
/2"
(64)
ANTI-TIP BRACKET
FRONT VIEW
TOP VIEW
80" (
2032)
R
OUGH OPENING
HEIGHT
T
O FINISHED
FLOORING
79
1
/2" (2019)
MIN HEIGHT
R
EQUIRED
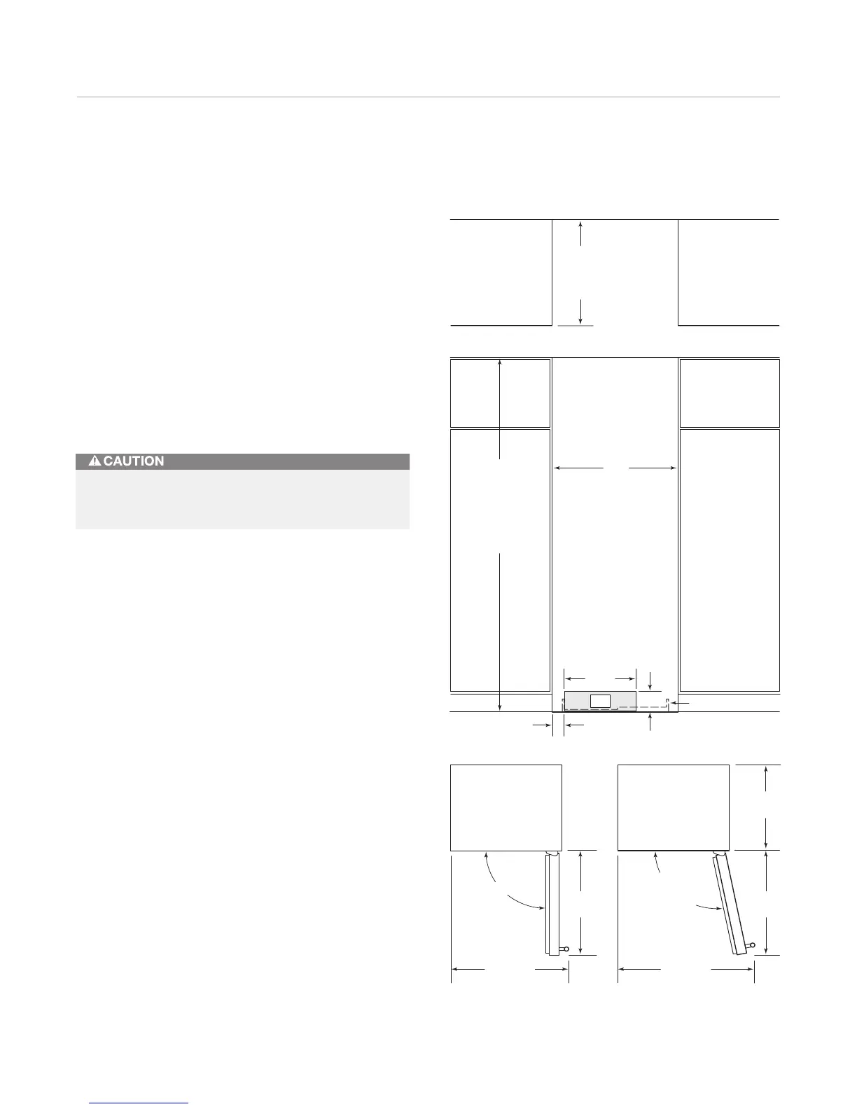
Models 427 and 427R Installation
M
ake sure that the finished rough opening where the wine
storage unit is to be installed is properly prepared. Refer
to the installation specifications illustration for rough
opening dimensions, door swing clearance and electrical
placement for models 427 and 427R.
IMPORTANT NOTE: To operate properly, the door must
open a minimum of 90°. Use a minimum 2" (51) filler in
corner installations to assure a 90° door opening. Allow
enough clearance in front of the unit for full door swing.
IMPORTANT NOTE: Make sure the floor under the unit is
level with the surrounding finished floor.
Do not load wine into the wine storage unit until the
installation is complete.
Door swing clearances are based on stainless steel door and
handle dimensions.

Related product manuals