EasyManua.ls Logo

Sunfire TGR-401-230 - Page 36

Sunfire TGR-401-230
69 pages
Print Icon
To Next Page IconTo Next Page
To Next Page IconTo Next Page
To Previous Page IconTo Previous Page
To Previous Page IconTo Previous Page
Loading...
User's Manual
36
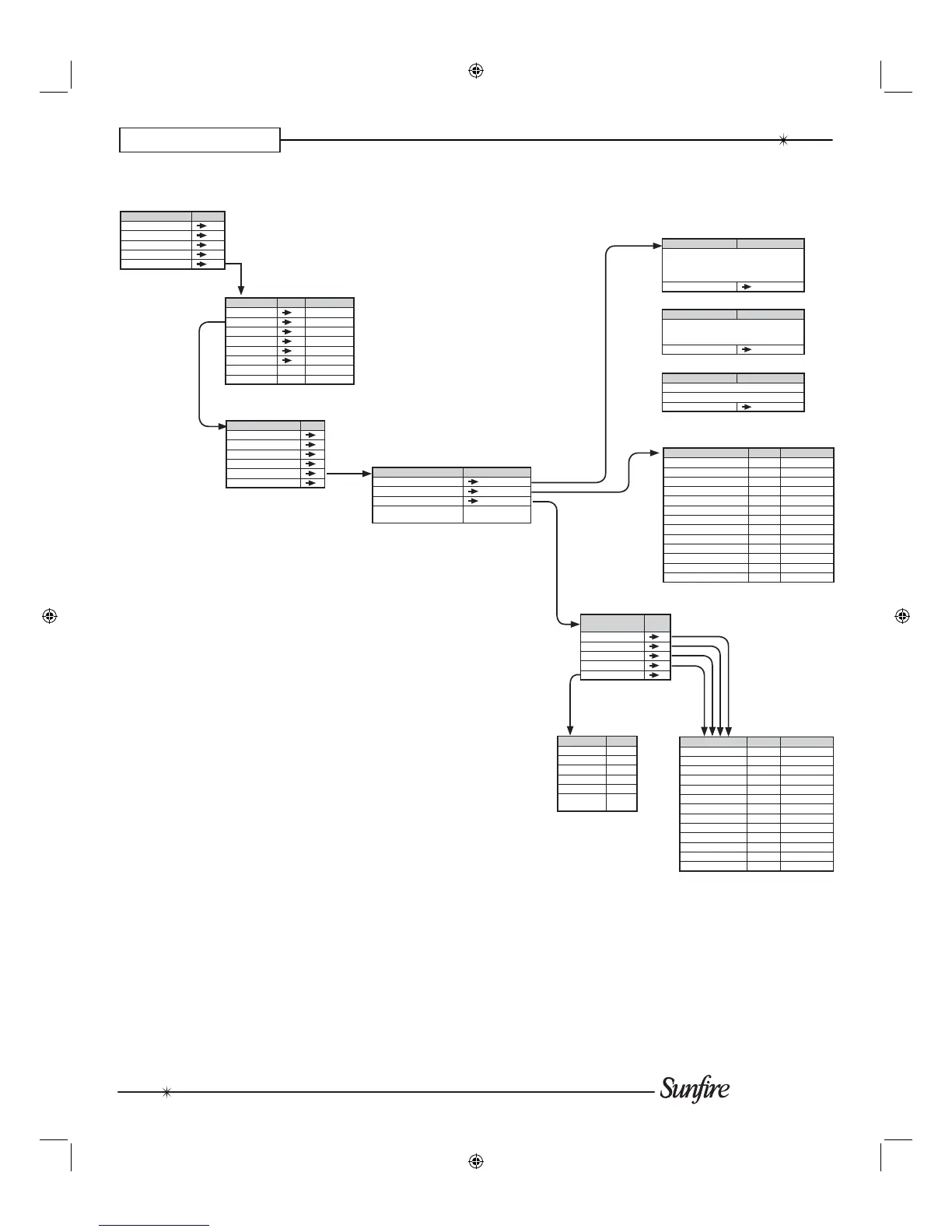
CHAPTER 4
MANUAL EQ
FREQ-HZ LEVEL
20 -00
31 -00
63 -00
125 -00
RESET TO
FLAT
OSD Menus: Setup/Speakers/EQ
MANUAL EQ
PAIRS
FRONT
CENTER
SURROUND
BACK SURR
SUB
MANUAL EQ CHOICES
FREQ-HZ LEVEL -14 TO +14 DB
20 -00
31 -00
63 -00
125 -00
250 -00
500 -00
1000 -00
2000 -00
4000 -00
8000 -00
16000 -00
RESET TO FLAT
AUTO EQ
PLUG MIC INTO FRONT PANEL JACK AND
SELECT “START”
***WARNING***
TEST TONE IS LOUD
START
AUTO EQ 2
TESTING:
EQ
TEST TAKES 4 MIN
CANCEL
AUTO EQ 3
TEST RESULTS
COMPLETE
CONTINUE
MANUAL EQ GLOBAL CHOICES
FREQ-HZ LEVEL -14 TO +14 DB
20 -00
31 -00
63 -00
125 -00
250 -00
500 -00
1000 -00
2000 -00
4000 -00
8000 -00
16000 -00
RESET TO FLAT
MAIN MENU
TRIMS
TONE CONTROLS
MODES
PRESETS
SETUP
SETUP CHOICES
INPUTS
SPEAKERS
VIDEO
MAIN ZONE
ZONE 2
CONTROL
DIGITAL OUT THRU DNMX/THRU
DIMMER MED LOW/MED/HI
SPEAKERS
AUTO SETUP
SPEAKER SIZE
DISTANCE
LEVEL CALIBRATION
EQ
BINDING POSTS
EQ
AUTO EQ
MANUAL GLOBAL
MANUAL PAIRS
EQ MODE NONE, GLOBAL,
PAIRS, AUTO