EasyManua.ls Logo

SunPower Maxeon - Page 109

SunPower Maxeon
113 pages
Print Icon
To Next Page IconTo Next Page
To Next Page IconTo Next Page
To Previous Page IconTo Previous Page
To Previous Page IconTo Previous Page
Loading...
MAXEON SOLAR TECHNOLOGIES, LTD.
537620 wer.I
©2024 Maxeon Solar Technologies, Ltd. Wszelkie prawa zastrzeżone. Specyfikacje zawarte w niniejszym dokumencie mogą ulec zmianie bez powiadomienia. 12
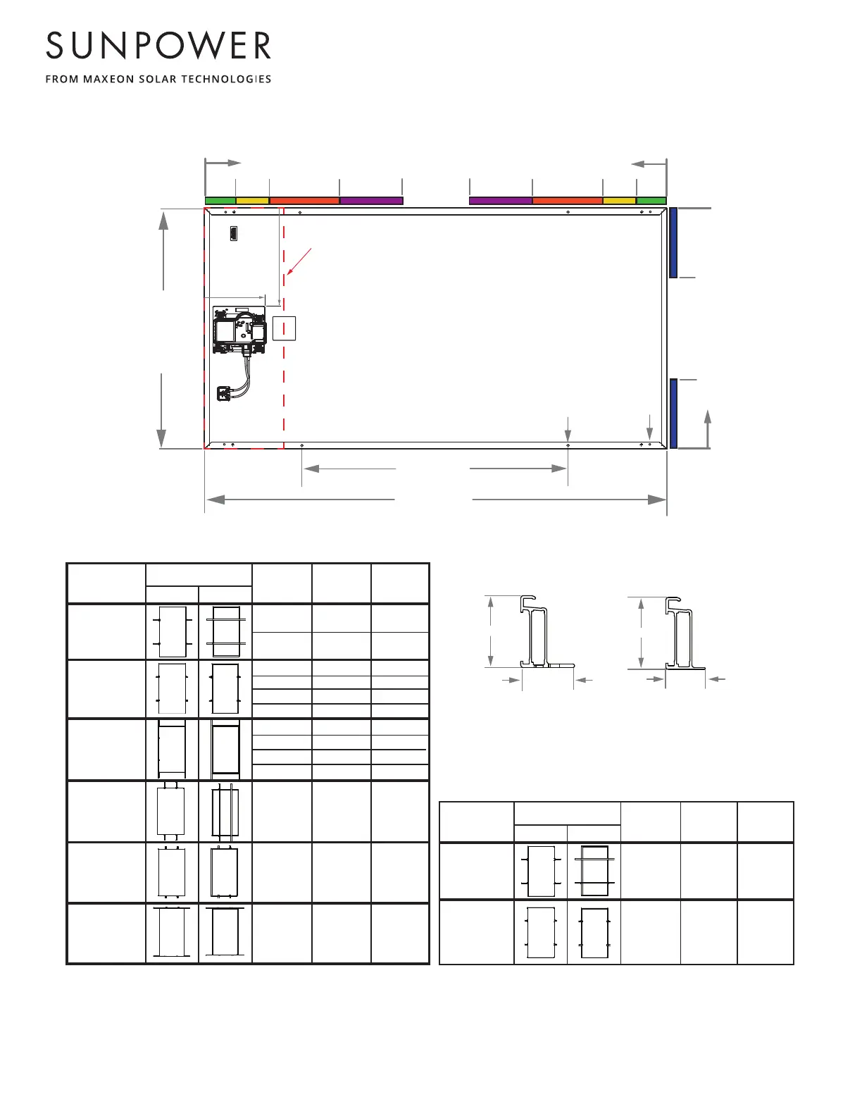
KLAMRY GÓRNE
GEN 5,2 PROFIL RAMY
Panel słoneczny SunPower Maxeon 6 AC do zastosowań domowych
(SPR-MAX6-XXX-BLK-E3-AC, SPR-MAX6-XXX-E3-AC, SPR-MAX6-XXX-BLK-E4-AC, SPR-MAX6-XXX-E4-AC)
BOCZNY PROFIL RAMY
ŚRUBY
1100mm Holes
+9000/-6000
+6000/-4000
1100mm Holes
Montaż na dłuższym
boku, wsparcie
punktowe
+5400/-5400
+3600/-3600
32 mm
KOŃCOWY PROFIL RAMY
24 mm
40 mm
Opis konfiguracji
montażu
Schemat konfiguracji montażu
Widok z przodu
Widok z tyłu
Lokalizacje stref
montażowych
Montaż na dłuższym
boku, szyny
prostopadłe do
ramy montażowej
Obciążenie
testowe
w dół/ w górę
(Pa)
Obciążenie
obliczeniowe
1032 mm
1872 mm
0
0
1100 mm
Tolerancje pomiarowe wynoszą +/-3 mm dla długości i szerokości modułu.
A
B
0
271
525
153
729
0
271
525
153
729
356
356
3 Szyny nie mogą znajdować się pod Microinverterem.
5 Montaż z dolnym kołnierzem.
6 Obszar ten wskazuje położenie zacisku, a nie prowadnic.
271 - 525
525 - 729
0 - 153
153 - 271
271 - 525
525- 729
0 - 153
153 - 271
271 - 525
525- 729
0 - 356
0 - 356
0 - 356
+3600/-2400
+2400/-2400
+2400/-2400
+1600/-1600
+1600/-1600
+2400/-1600
+2400/-2400
+5400/-3600
+2400/-2400
+2400/-2400
+2400/-2400
+5400/-3600
+2400/-2400
+2400/-2400
+2400/-2550
+5400/-4050
+1600/-1600
+3600/-2400
+1600/-1600
+1600/-1600
+1600/-1600
+3600/-2400
+1600/-1600
+1600/-1600
+1600/-1700
+3600/-2700
373 mm
249 mm
(Odległość od
narożnika (mm)
A - Otwory uziemienia (4X Ø 4,2mm)
B - Otwory montażowe (4X Ø 6,8mm )
 Obciążenie obliczeniowe uwzględnia 1,5 współczynnika bezpieczeństwa, obciążenie testowe = obciążenie
obliczeniowe x 1,5. Gwarancja na produkt pokrywa wyłącznie wartości obciążeń obliczeniowych. Obciążenia
obliczeniowe podane w tej tabeli mają pierwszeństwo przed wszystkimi innymi obciążeniami podanymi przez
innych dostawców, chyba że zostały oficjalnie zatwierdzone przez firmę Maxeon.
2 Obciążenia testowe służą jedynie celom informacyjnym, obciążenia obliczeniowe powinny być uwzględnione w
projekcie.
4 W przypadkach, gdy konieczny jest montaż mieszany (połączenie montażu na długim i krótkim boku), za
dopuszczalne obciążenie obliczeniowe należy przyjąć najniższe wartości obciążenia obliczeniowego.
40 mm
w dół/ w górę
(Pa)
Opis konfiguracji
montażu
Schemat konfiguracji montażu
Widok z przodu
Widok z tyłu
Montaż na dłuższym
boku, szyny
prostopadłe do
ramy montażowej
Montaż na dłuższym
boku, wsparcie
punktowe
Montaż na dłuższym
boku, szyny
równoległe do
ramy montażowej
Montaż na krótszym
boku, szyny
prostopadłe do ramy
montażowej (Montaż
na krawędziach
końcowych)
Montaż na krótszym
boku, wsparcie
punktowe
Montaż na krótszym
boku, szyny
równoległe do ramy
montażowej
Strefa wykluczenia
mikroinwertera
Lokalizacje stref
montażowych
(Odległość od
narożnika (mm)
Obciążenie
testowe
w dół/ w górę
(Pa)
Obciążenie
obliczeniowe
w dół/ w górę
(Pa)

Related product manuals