EasyManua.ls Logo

SunPower PERFORMANCE P6-COM-S-BF - Page 14

SunPower PERFORMANCE P6-COM-S-BF
104 pages
Print Icon
To Next Page IconTo Next Page
To Next Page IconTo Next Page
To Previous Page IconTo Previous Page
To Previous Page IconTo Previous Page
Loading...
MAXEONSOLARTECHNOLOGIES,LTD.
SafetyandInstallationInstructions‐Document00115497Rev.W
©December2021MaxeonSolarTechnologies,Ltd.Allrightsreserved.Specificationsincludedinthismanualaresubjecttochangewithoutnotice.
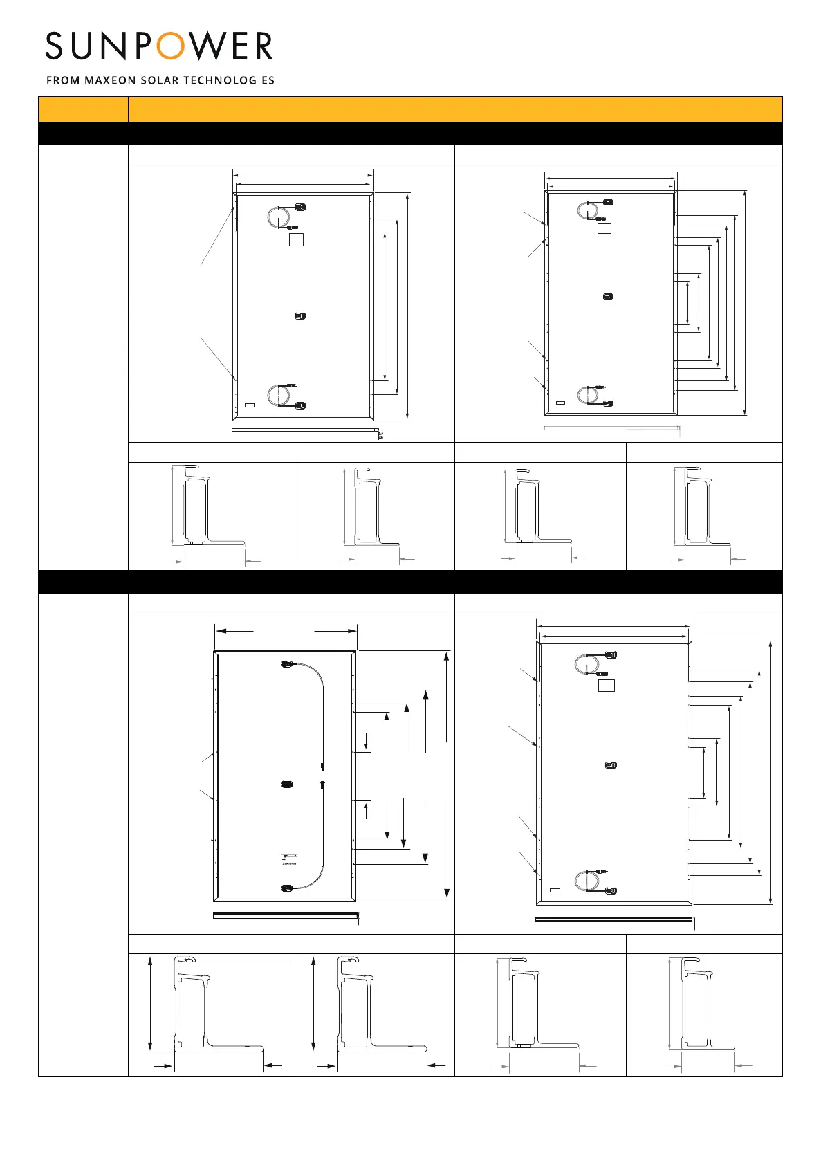
Platform Modulemountingandgroundholedetail
FORP3MODULES
Residential/
Commercial
Modules
P3BLK(GEN4.3) P3COM(GEN4.2)
SIDEFRAMEPROFILE ENDFRAMEPROFILE SIDEFRAMEPROFILE ENDFRAMEPROFILE
FORP3GEN4.3FRAMEMODULES
Commercial
Modules
P3UPP P3COM
SIDEFRAMEPROFILE ENDFRAMEPROFILE SIDEFRAMEPROFILE ENDFRAMEPROFILE

998 mm
954 mm
1690 mm
1300 mm
1100 mm
4X Ø4.2mm
Ground Holes
Mounting Holes
8X Ø6.8mm
400 mm
539 mm
1058 mm
1423 mm
954 mm
2066 mm
998 mm
40
4X Ø4.2mm
Ground Holes
Mounting Holes
12X Ø6.7mm
Mounting Holes
4X Ø6.8mm
4X 5.0mm (W)
x 15.0mm (L)
SLOT
1200 mm
1606 mm
32mm
35 mm
24 mm
35 mm
32mm
40 mm
24 mm
40 mm
1160 mm
2066 mm
MODEL: SPR-P19-410-COM
Rated Power (Pmax)
1
(+5/
0
%) 410
W
Voltage (Vmp) 43.9
V
Current (Imp) 9.35
A
Open-Circuit Voltage (Voc) 53.1
V
Short-Circuit Current (Isc) 9.94
A
Maximum SeriesFuse 15
A
1
Standard Test Conditions: 1000 W/m
2
, AM 1.5, 25° C
Suitable for ungrounded, positi ve, or negative grounded DC systems
Field Wiring: Cu wiring only, min. 12 AWG/4 mm
2
, insulated for 90° C min.
WARNING
SEVERE ELECTRICAL HAZARD
• Solar module has full voltage even in very low light.
• Installation should only be done by a qualified technician.
527040
www.sunpower.com
Patented as shown at www.sunpower.com/patents
Safety Class II
Fire Rating: Class C
Max. System Voltage:1500 V DC
400 mm
700 mm
1058 mm
1300 mm
4X Ø4.2 mm
Ground
Holes
8X 10mm(L) x 7mm(W)
R3.5mm
Mounting Holes
8X 14mm(L) x 9mm(W)
R4.5mm
SLOTS
35mm
400 mm
539 mm
1058 mm
1423 mm
954 mm
2066 mm
998 mm
35
4X Ø4.2 mm
Ground
Holes
Mounting Holes
4X Ø6.7 mm
Mounting Holes
12X Ø6.8 mm
4X 5.0 mm (W)
x 15.0 mm (L)
SLOTS
1200 mm
1606 mm
35 mm
35 mm
35 mm
35 mm
32mm
35 mm
24 mm
35 mm
MeasurementTolerancesare+/3mmfortheLengthandWidthoftheModule.

Related product manuals