EasyManua.ls Logo

SunPower SPR-E20-327-COM - Page 7

SunPower SPR-E20-327-COM
9 pages
Print Icon
To Next Page IconTo Next Page
To Next Page IconTo Next Page
To Previous Page IconTo Previous Page
To Previous Page IconTo Previous Page
Loading...
SUNPOWER CORPORATION
Safety and Installation Instructions - Document 001-14158 Rev AG
© 2020 SunPower Corporation. All rights reserved. Specifications included in this manual are subject to change without notice. Page | 7
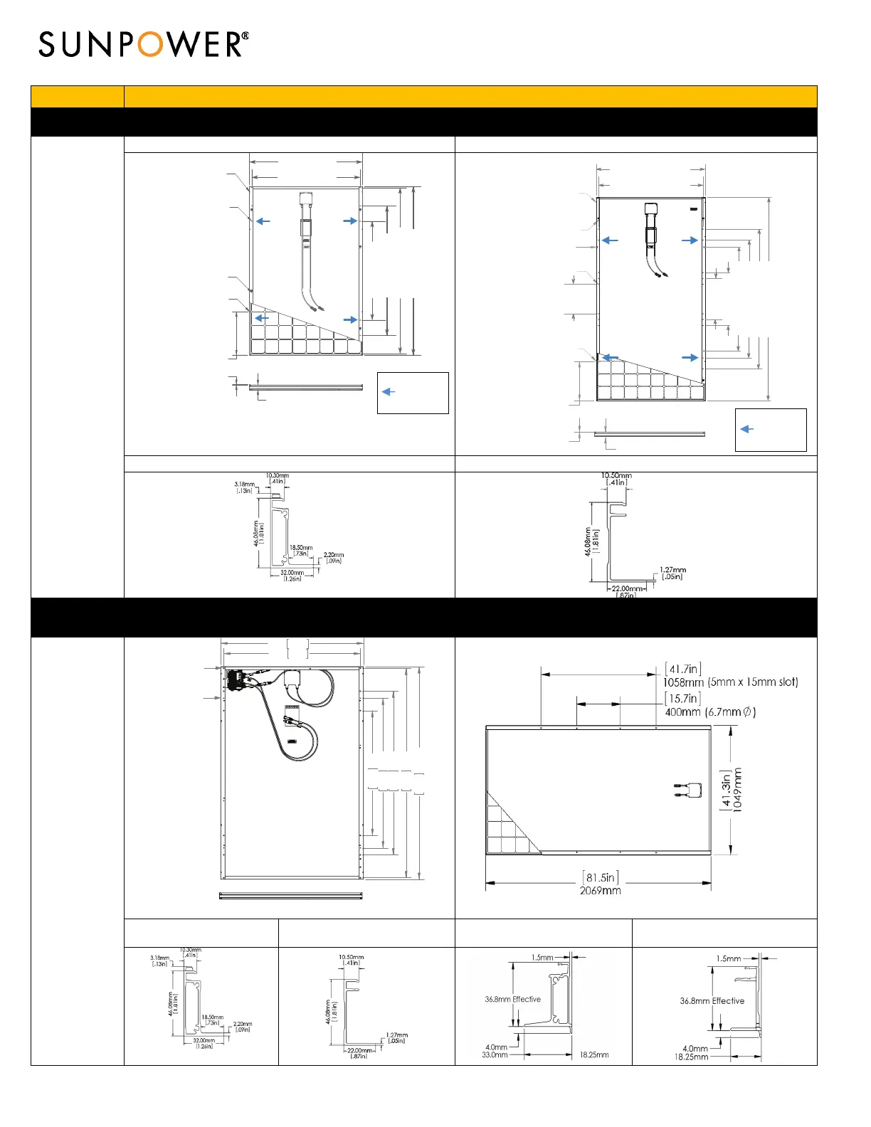
Stacking Pins
4X Ø6.10 mm [.24in]
300 mm
[11.8in]
20X Ø6.8 mm
Mounting Holes
4X Ø4.2 mm [.17in]
Ground Holes
4X Ø4.8 mm [.19in]
Drain Holes
398 mm
[15.7in]
3.2 mm [.13in]
46 mm [1.8in]
(Front View)
(Back View)
1046 mm [41.2in]
1002 mm [39.4in]
2067 mm [81.4in]
1200 mm [47.2in]
1423 mm [60.4in]
539 mm [21.2in]
400 mm
[15.7in]
1058 mm [41.7in]
SLOT 5.0(W) X 15.0 (L)
Platform
Module mounting and ground hole detail
FOR COMMERCIAL (SILVER FRAME) MODULES ONLY, INCLUDES STACKING PINS
Commercial
Modules
96-CELL COMMERCIAL MODULE 128-CELL COMMERCIAL MODULE
1559 mm [61.4in]
1535 mm [60.4in]
1200 mm [47.2in]
1046 mm [41.2in]
1002 mm [39.4in]
(Back View)
(Front View)
915 mm [36.0in]
46 mm [1.8in]
3.2 mm
[0.13in]
398 mm
[15.7in]
4X Ø6.10 mm [0.24in]
Stacking Pins
6X Ø4.2 mm [0.17in]
Ground Holes
12X Ø6.6 mm [0.26in]
Mounting Holes
4X Ø4.8 mm [0.19in]
Drain Holes
SIDE FRAME PROFILE END FRAME PROFILE
With Stackings Pins
FOR COMMERCIAL (SILVER FRAME) MODULES
ONLY, INCLUDES STACKING PINS
FOR GEN 6 FRAME MODULE ONLY
1098 43.2
1002 39.4
1535 60.4
1200 47.2
915 36.0
12x Ø 6.80
(MOUNTING)
1559 61.4
1046
41.2
4x Ø 4.2 [.17]
(GROUND)
SIDE FRAME PROFILE END FRAME PROFILE SIDE FRAME PROFILE END FRAME PROFILE
With Stackings Pins
Method 1:
Frame Hole
Locations
Method 1:
Frame Hole
Locations

Related product manuals