EasyManua.ls Logo

SunPower SPR-E20-327-COM - Page 8

SunPower SPR-E20-327-COM
9 pages
Print Icon
To Next Page IconTo Next Page
To Next Page IconTo Next Page
To Previous Page IconTo Previous Page
To Previous Page IconTo Previous Page
Loading...
SUNPOWER CORPORATION
Safety and Installation Instructions - Document 001-14158 Rev AG
© 2020 SunPower Corporation. All rights reserved. Specifications included in this manual are subject to change without notice. Page | 8
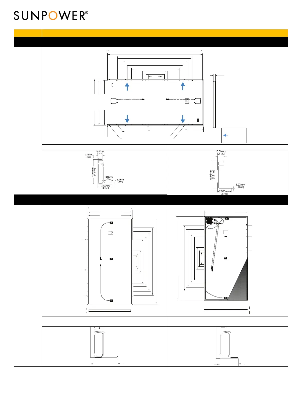
Platform
Module mounting and ground hole detail
FOR P-SERIES COMMERCIAL GEN 4.0 FRAME MODULE
Commercial
Modules
4X
398 mm
998 mm
2067 mm
46 mm
300 mm
400 mm
539 mm
1058 mm
1200 mm
2043 mm
1423 mm
1606 mm
4X Ø
6.6mm
Mounti
ng Clip Holes
4X Ø 4.8mm
Drain Holes
4X Ø
4.2mm
Ground Holes
4X 5.0mm (W) X 15.0mm (L)
SLO
T
20X Ø 6.8mm
Mounti
n
g Holes
4X Ø 7.0mm
Stacking Pins
954 mm
961 mm
SIDE FRAME PROFILE END FRAME PROFILE
With Stackings Pins
FOR P-SERIES GEN 4.1 FRAME MODULE
Commercial
Modules
998 mm [39.3]
46 mm
[1.8in]
MODEL: SPR-P19-410-COM
Rated Power (Pmax)
1
(+5/
0
%)
410
W
Voltage (Vmp) 43.9
V
Current (Imp) 9.35
A
Open-Circuit Voltage (Voc)
53.1
V
Short-Circuit Current (Isc) 9.94
A
Maximum Series
Fuse 15
A
1
Standard Test Conditions: 1000 W/m
2
, AM 1.5, 25° C
Suitable for ungrounded, positive, or negative grounded DC systems
Field Wiring: Cu wiring only, min. 12 AWG/4 mm
2
, insulated for 90° C min.
WARNING
SEVERE ELECTRICAL HAZARD
• Solar module has full voltage even in very low light.
• Installation should only be done by a qualified technician.
527040
www.sunpower.com
Patented as shown at www.sunpower.com/patents
Safety Class II
Fire Rating: Class C
Max. System Voltage:1500 V DC
954 mm [37.6]
961 mm [37.8]
2067 mm [81.4 in]
300 mm
400 mm [
15.7 in]
539 mm [21.2 in]
1058 mm [41.7 in]
1200 mm [47.2 in]
1423 mm [56 in]
1606 mm [63.2 in]
4X Ø 4.2mm [0.26in]
Ground Holes
20X Ø 6.8mm[0.27in]
Mounting Holes
4X 5.0mm (W) x 15.0mm (L)
SLOT
[
11.8in]
[21.2 in]
998 mm
[39.3 in]
2067 mm [81.4in]
46 mm
[1.8 in]
300 mm
400 mm [
15.7 in]
539 mm [21.2 in]
1058 mm [41.7 in]
1200 mm [47.2 in]
1423 mm [56 in]
1606 mm [63.2 in]
[
11.8in]
998 mm
4X Ø 4.2mm[0.26in]
Ground
4X 5.0mm (W) x 15.0mm (L)
SLOT
20X Ø 6.8mm[0.27in]
Mounting Holes
SIDE FRAME PROFILE END FRAME PROFILE
46mm
32mm
46mm
24 mm
Method 1:
Frame Hole
Locations

Related product manuals