EasyManua.ls Logo

Swegon CASA - Important information; Personnel Qualification; Installation Precautions; Commissioning Guidelines

Swegon CASA
8 pages
Print Icon
To Next Page IconTo Next Page
To Next Page IconTo Next Page
To Previous Page IconTo Previous Page
To Previous Page IconTo Previous Page
Loading...
2
SDHWM.230817
Swegon reserves the right to make changes.www.swegonhomesolutions.com
Important information
Only qualified personnel
Only qualified personnel should carry out
installation, configuration and commissioning.
Observe the following during
installation
The air heater/cooler is installed in the
outdoor air duct before the ventilation unit.
The air heater/cooler must be mounted so
that the air heater/cooler is horizontal in
relation to the airflow.
The air heater/cooler must not be installed in
the immediate vicinity of the ventilation unit
or duct bends, as this will prevent an even
airflow across the air heater/cooler resulting
in impaired output.
Commissioning
The air heater/cooler’s duct sleeves must
be covered during transport, storage and
installation.
Make sure that the air heater/cooler and the
ducts are clean and that there are no loose
objects in them before you commission the
ventilation system.
Ensure that the heating medium pipe system
is mounted and insulated and that the
venting sleeves are mounted.
Do not commission the air heater/cooler
until all work that produces large quantities
of sanding dust or other impurities has been
completed.
Sizing the heating medium circuit
Consideration must be taken during planning
to the effect of the air heater/cooler.
Ensure that the ground source heating
well cannot freeze on account of the
heater/cooler being added to the system.
Supplement with the necessary protection.
NOTE! The manual’s original language is Finnish.
!
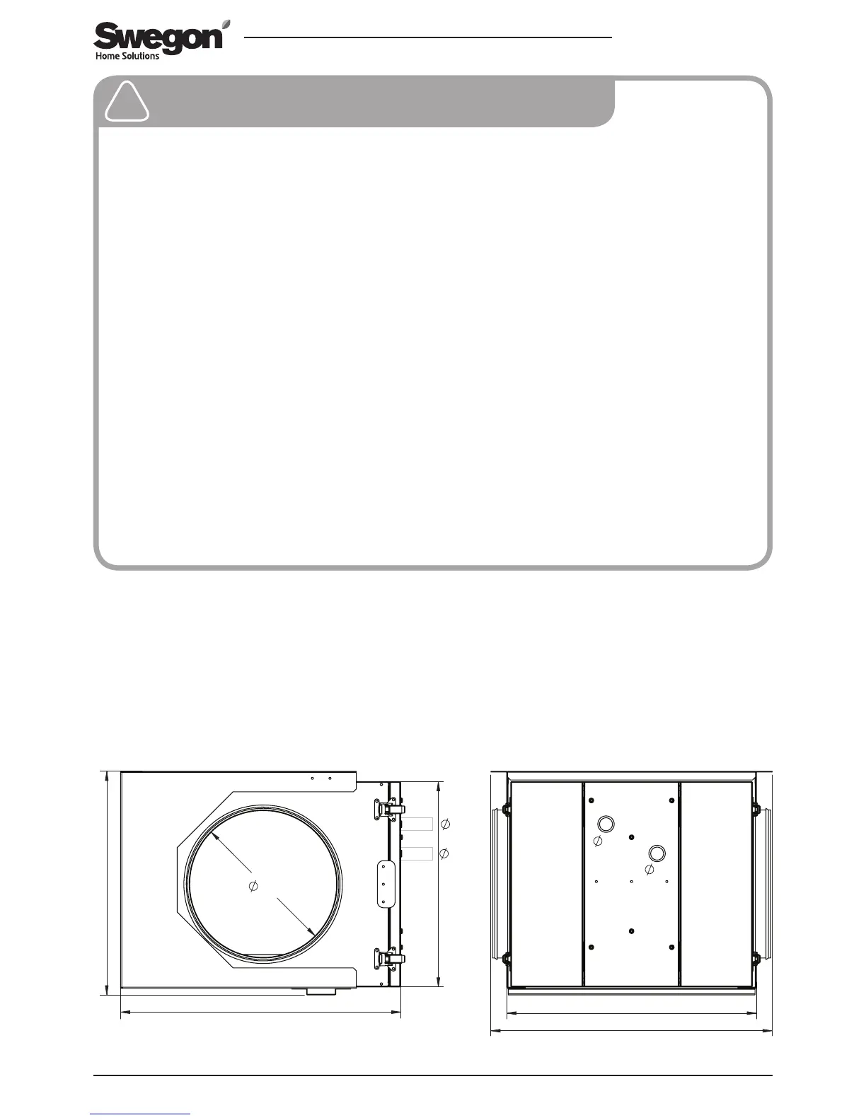
479
425
381
350
250
477
22
22
22
22
Included in the delivery:
CASA W250F air heater/cooler, fully insulated
T
emperature sensor (T8) cable length 3 m
SET connection unit
RJ45 cable, 3 m, 2 pcs.
Wall mounting bracket/ceiling mounting frame
Wide-mesh filter
Instructions
Accessories:
Condensate hose W2504F for the air heater/cooler:
502130

Other manuals for Swegon CASA

Related product manuals