EasyManua.ls Logo

SYNC 1.0 - Page 33

Default Icon
68 pages
Print Icon
To Next Page IconTo Next Page
To Next Page IconTo Next Page
To Previous Page IconTo Previous Page
To Previous Page IconTo Previous Page
Loading...
33
Installation & Operation Manual
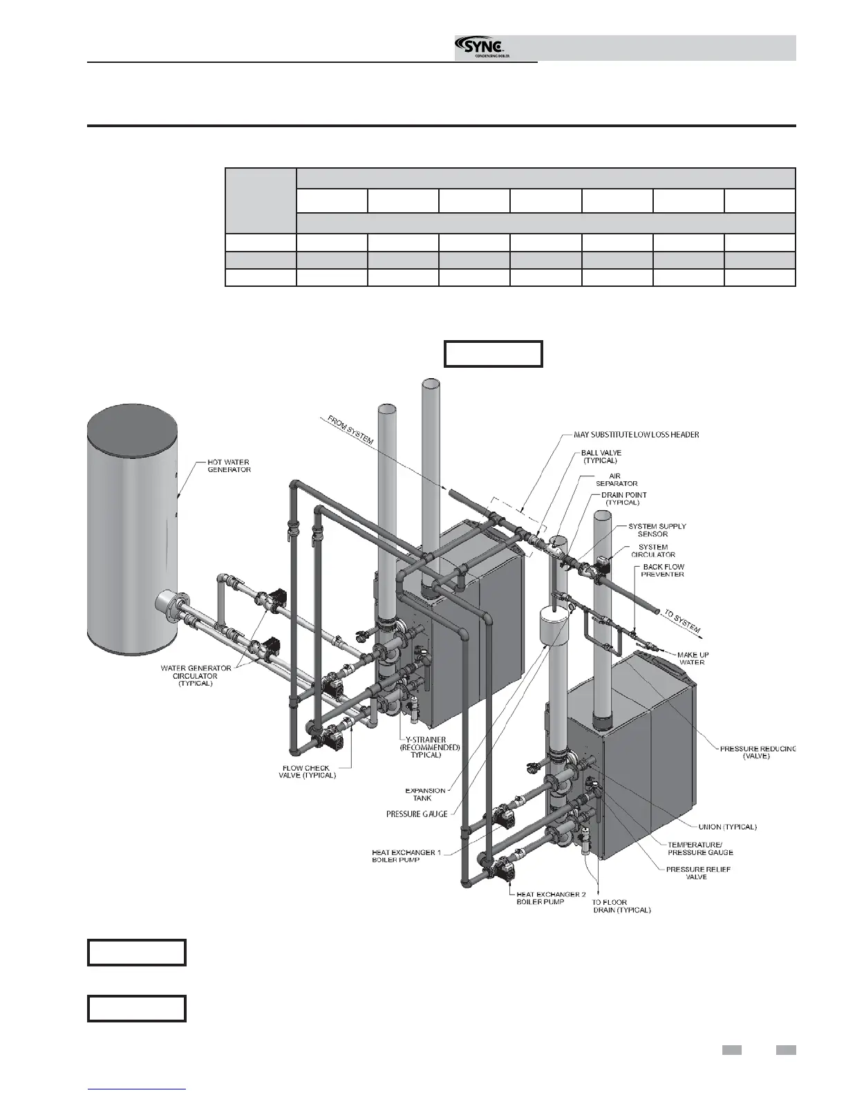
Figure 5-6 Multiple Boilers - Primary/Secondary Piping
Model
Number of Units
2345678
Manifold Pipe Sizes in Inches (mm)
1000
4 (102) 5 (127) 6 (152) 6 (152) 8 (203) 8 (203) 8 (203)
1300
5 (127) 5 (127) 6 (152) 8 (203) 8 (203) 8 (203) 8 (203)
1500
5 (127) 6 (152) 6 (152) 8 (203) 8 (203) 8 (203) 10 (254)
5 Hydronic piping (continued)
NOTICE
System flow should always remain higher than the required flow for the boiler(s) when the boiler(s) is in
operation to prevent short cycling and high limit issues.
NOTICE
A system supply sensor (factory
supplied) MUST BE installed for proper
boiler operation.
Please note that these illustrations are meant to show system piping concept only, the installer is responsible
for all equipment. The installer must follow all manufacturer’s instructions for each system component. The
installer is responsible for compliance with local codes.
NOTICE

Table of Contents