EasyManua.ls Logo

SYNC 1.0 - Wiring Diagram

Default Icon
68 pages
Print Icon
To Next Page IconTo Next Page
To Next Page IconTo Next Page
To Previous Page IconTo Previous Page
To Previous Page IconTo Previous Page
Loading...
Installation & Operation Manual
12 Diagrams (continued)
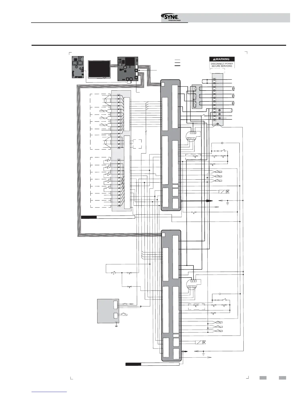
Figure 12-3 Wiring Diagram
BOX DEPICTS
OPTIONAL ITEMS
OUTLET
SENSOR
Notes:
1. All wiring must be installed in accordance with: local, state, provincial and national code requirements per either N.E.C. in USA or C.S.A. in Canada.
2. If any original equipment wire as supplied with the appliance must be replaced, it must be replaced with wire having same wire gauge (AWG) and rated for a
minimum of 105°C. Exceptions: Replacement high vo ltage spark lead and ribbon cables must be purchased from the factory. Use of a non-approved spark lead
or ribbon cables can lead to operational problems which could result in non-repairable damage to the integrated controller or other components.
3. Actual connector block locations may vary from those shown on diagrams. Refer to actual components for proper connector block locations when using
diagrams to troubleshoot unit.
CN3
CN2
RS485
SHIELD
SHIELD
CASCADE
TANK
SENSOR
OUTDOOR
SENSOR
SYSTEM
SENSOR
EXTERNAL
CONTROL
RS485
SHIELD
SHIELD
MOD BUS
CN3-16
CN3-15
CN3-14
CN3-13
CN3-12
CN3-11
CN3-10
CN3-9
CN3-8
CN3-7
CN3-6
CN3-5
CN3-4
CN3-3
CN3-2
CN3-1
ENABLE
TANK
THERMOSTAT
TANK
THERMOSTAT
HEX 1
FLOW
SWITCH
HEX 2
FLOW
SWITCH
LOUVER
PROVING
RUNTIME
CONTACTS
ALARM
CONTACTS
CN2-1
CN2-2
CN2-3
CN2-4
CN2-5
CN2-6
CN2-7
CN2-8
CN2-9
CN2-10
CN2-11
CN2-12
CN2-13
CN2-14
CN4
CN1
CN1-10
CN1-2
CN1-9
CN1-11
CN1-3
CN1-4
CN1-5
CN1-6
CN1-13
CN1-14
CN1-12
CN1-15
CN1-16
CN1-8
CN1-7
CONNECTION BOARD
JUNCTION
BOX
RELAY
BOARD
K1
K2
K3
X8
MOD BUS
KIT
X4
X6-6
X6-1
LOW
WATER
CUTOFF
BOARD
J3-1
J3-2
J3-3
J3-4
J3-5
J3-6
J2-1
J2-2
J2-3
X6-2
X6-9
X6-10
BLOWER
G
R
231
W
12 4 5
3
X3-2
X3-2
X3-4
X3-1
X3-3
X3-4
X3-1
X3-3
X6-9
X6-10
J3-1
TEST
SWITCH
PROBE
X2-2
X2-1
X1-7
X2-2
X2-1
X1-7
X1-4
X1-2
X1-3
X1-6
X1-5
X1-8
X1-1
X5-5
X5-13
X5-6
X5-12
X5-7
X5-14
X5-3
X5-8
X5-1
X5-2
X5-9
X1-4
X1-3
X1-6
X5-7
X5-14
X5-3
X5-8
X5-1
X5-2
X5-9
X4
X8
ON/OFF SWITCH
GND
GND
GND
GND
SYSTEM
PUMP
BOILER 1
BOILER 2
L
N
120V SUPPLY
HW PUMP
RELAY
INLET
SENSOR
FLUE
SENSOR
INLET
SENSOR
OUTLET
SENSOR
FLUE
SENSOR
BLOCKED
DRAIN
HI-LIMIT
GAS
VALVE
GAS
VALVE
SPARK
ROD
G
CAUTION
HIGH VOLTAGE SPARK LEAD
BLOWER
231
1
2
45
3
X5-5
X5-13
X5-6
X5-12
X1-8
X1-1
X1-5
G
RW
SPARK
ROD
G
CAUTION
HIGH VOLTAGE SPARK LEAD
120 VAC
LOW VOLTAGE
HIGH VOLTAGE
CONTROL
MODULE 1
CONTROL
MODULE 2
CM 1 PC INTERFACE
PC INTERFACE
X3
X5
RESET
X5-4
X5-10
X5-4
X5-10
APS
FLAP VALVE
FLAME ROD
FLAME ROD
4 CONDUCTORS
GY
W
T
BR
OR
PK
RD
RD
PR
PK
GY
W
T
OR/BK
RD
PR
RD
PR
PR
OR/BK
BK
OR
OR/BK
BR
PR
RD
PR
RD
RD/W
Y
BK
Y/BK
W/BK
RD/BK
BK/RD
PK
PR/BK
BL/BK
GR/BK
OR/BK
BK
W
T/BK
RD
RD
GR
BK
W
GY
BR/W
W/RD
Y
BK
Y
W
RD
BK
PR
BL
GY
OR
BK
W
T
R
GR
W
BK
GY
PR
BR
OR
OR
BR
BR
PR
PR
+
-
10VDC
CM 2 PC
INTERFACE
CN1-1
PK
AUTO RESET LIMIT
HI-LIMIT
APS
FLAP
VALVE
AUTO RESET LIMIT
X6-8
X6-8
X6-7
LOUVER
CONTACTS
R1
R2
LOUVER
X6-5
X6-5
ALARM
CONTACTS
LOW GAS
PRESSURE SWITCH
HIGH GAS
PRESSURE 1
HIGH GAS
PRESSURE 2
LOUVER
RELAY 2
LOUVER
RELAY 1
LOUVER
RELAY 1
BL
BL
O-TEMP
HEX SW
O-TEMP
HEX SW
WIRING DIAGRAM
LBL20410 REV A
DOOR TEMP
SW
DOOR TEMP
SW
65

Table of Contents