EasyManua.ls Logo

SystemAir MAXI 1100 - Page 2

SystemAir MAXI 1100
24 pages
Print Icon
To Next Page IconTo Next Page
To Next Page IconTo Next Page
To Previous Page IconTo Previous Page
To Previous Page IconTo Previous Page
Loading...
_____________________________________________________________________________________________________
Maxi 1100-2000 Operation- and maintenance instructions
204414 Systemair AB
2
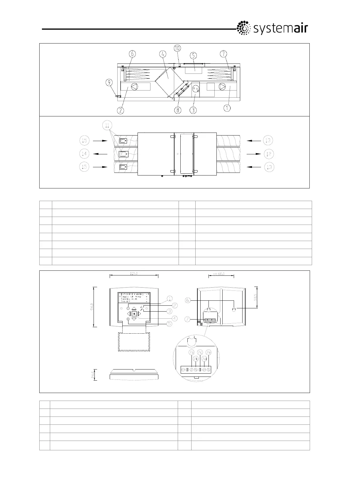
Fig. 1
Fig. 2
Description
1.
Alarm button
7.
Connection block
2.
Alarm LED
7a.
Yellow cable
3.
Write enable LED
7b.
Orange cable
4.
OK button
7c.
Red cable
5.
Clearing button
7d.
Brown cable
6.
Mounting holes
7e.
Black cable
Description
1.
Fan, supply air
8.
Damper Heat exchanger
2.
Fan, extract air
9.
Water condensate drain
3.
Heater Electrical or Hot water
10.
Water condensate drain, Only EL units
4.
Heat exchanger
11.
Damper Outdoor/Exhaust air (accessories)
5.
Connection box
12.
Supply air
6.
Filter Supply air
13.
Extract air
7.
Filter, Extract air
14.
Exhaust air
15.
Outdoor air

Related product manuals