EasyManua.ls Logo

SystemAir TA 1100 EL - Mounting the Unit

SystemAir TA 1100 EL
30 pages
Print Icon
To Next Page IconTo Next Page
To Next Page IconTo Next Page
To Previous Page IconTo Previous Page
To Previous Page IconTo Previous Page
Loading...
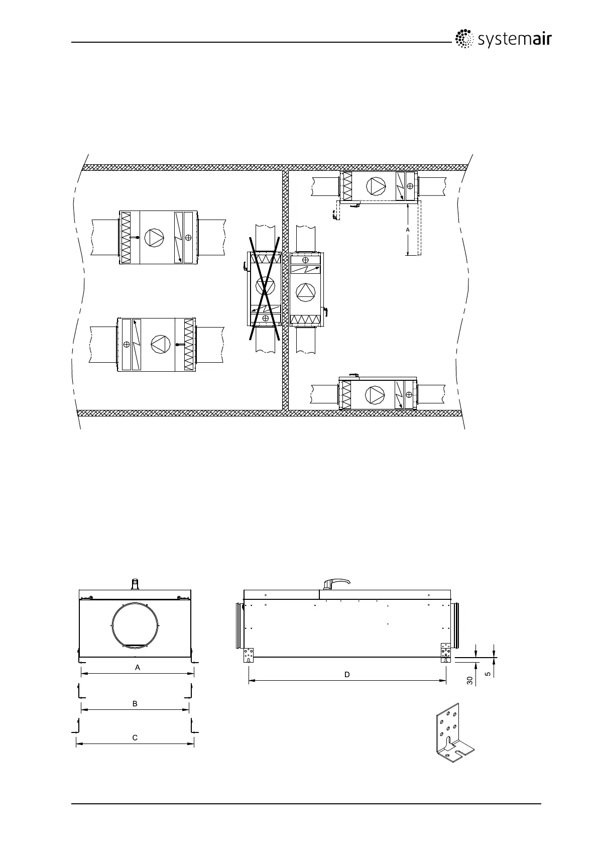
5.3Installingtheunit
Handleandhingesareremovable.
Inspectiondoorscanbeopenedwithoutahandle.Usea16mmcapkey.
Theunitcanbeinstalledinthefollowingpositions.
Fig.7Possibleinstallationpositions
WhentheHWunitsaremountedhorizontallyonawall,leftingure7,alwaysmakesurethatthewater
pipeconnectionsareabovethebattery,sotheHWbatterycanbeeproperlyde-aired.Byunscrewing
threescrewstheHWbatterycaneasilyberotated.
5.3.1Mountingbrackets
TogetherwiththeTAunitfollows4mountingbracketsthatallowstheunittobemountedinaccordance
withgure7andgure8.
Fig.8Mountingbrackets
TA450-4500Installationinstructions
132615
12
SystemairSverigeAB

Related product manuals