EasyManua.ls Logo

SystemAir Topvex TR09 - Page 3

SystemAir Topvex TR09
28 pages
Print Icon
To Next Page IconTo Next Page
To Next Page IconTo Next Page
To Previous Page IconTo Previous Page
To Previous Page IconTo Previous Page
Loading...
_________________________________________________________________________________________________________________
Topvex TR 09, TR12 & TR15 Operation- and maintenance instructions
205000 Systemair AB
3
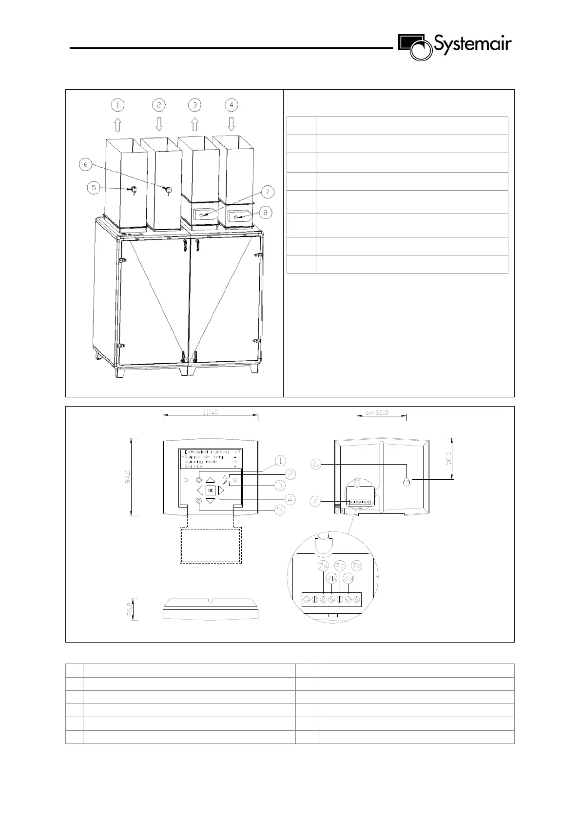
Fig. 4
Description
1.
Alarm button
7.
Connection block
2.
Alarm LED
7a.
Yellow cable
3.
Write enable LED
7b.
Orange cable
4.
OK button
7c.
Red cable
5.
Clearing button
7d.
Brown cable
6.
Mounting holes
7e.
Black cable
Fig. 3
Description
1.
Supply air
2.
Extract air
3.
Exhaust air
4.
Outside air
5.
VAV pressure transmitter supply air
(accessories)
6.
VAV pressure transmitter extract air
(accessories)
7.
Damper and motor exhaust air (accessories)
8.
Damper and motor outside air (accessories)

Related product manuals