EasyManua.ls Logo

SystemAir Villavent VR-400 E

SystemAir Villavent VR-400 E
20 pages
To Next Page IconTo Next Page
To Next Page IconTo Next Page
To Previous Page IconTo Previous Page
To Previous Page IconTo Previous Page
Loading...
14
Fig. 10
Fig. 10A
1. VR-400/700 E
2. Evt. ukeur
3. Betjeningspanel
1. VR-400/700 E
2. Ev. Veckour
3. Kontrollpanel
1. VR-400/700 E
2. Zeitschaltuhr, falls vorh.
3. Fernsteuerung
1. VR-400/700 E
2. Timer if fitted
3. Control panel
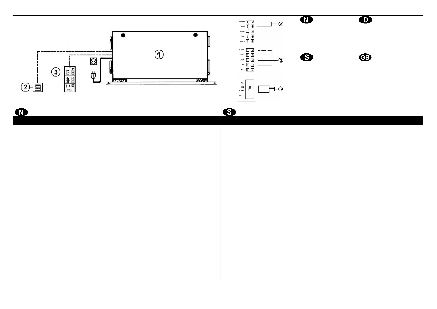
ELEKTRISKE ARBEIDER (Fig. 10 og 10A)
Aggregat (1)
VR-400/700 E leveres med ca. 1m ledning og støpsel for 230V, 1-fase jordet
stikkontakt. 10A for VR-400/500 E og 16A for VR-700 E.
Betjeningspanel (3)
Villavent VR-400/700 E kan reguleres fra ett eller flere separate betjeningspanel
type CE. For nødvendig signal mellom betjeningspanel og aggregat kan
monteres uskjermet 4-leder signalkabel (12V). (Skjermet kabel må benyttes i
områder med fare for EMC-støy). Ledning fra separat betjeningspanel kobles til
utvendig apparatkontakt eller til rekkeklemme i koblingsboks innvendig i
aggregatet (Fig. 10A). Bruk 4x0,22 eller 0,5 mm
2
når rekkeklemme benyttes,
4x0,14 mm
2
dersom teleplugg benyttes.
Betjeningspanelet er tilpasset ELKO montasjesystem, og kan monteres både
innfelt i dobbel veggboks, og utenpåliggende ved hjelp av 18mm dobbel
"påveggskappe".
Ved regulering fra flere betjeningspanel, benyttes fortrinnsvis forgreningskontakt
som monteres i kontakt på aggregatet.
ELEKTRISKA ARBETEN (Fig. 10 och 10A)
Aggregat (1)
VR-400/700 E levereras med ca. 1m. kabel och stickkontakt för 230V, 1-fas
jordat uttag.10A för VR-400/500 E och 16A för VR-700 E.
Kontrollpanel (3)
Villavent VR-400/700 E kan förses med en eller flera externa kontrollpaneler,
typ CE. För nödvändiga signaler mellan panel och aggregat ska det monteras
en 4-ledar signalkabel (12V). (En avskärmad signal kabel bör monteras vid
fara för EMC störningar). Kabel från separat kontrollpanel kopplas till ISDN
kontakt i närhet av nätkabelgenomföring eller till kopplingsplinten i aggregatets
kopplingsbox. (fig 10A). Använd 4X0,22 eller 0,5 mm
2
ledning när plinten
används eller 4x0,14 mm
2
när ISDN anslutningen används.
Kontrollpanelen levereras antingen för infällt montage eller med montageram
för utanpåliggande montage. (18 mm)
Vid användning av flera kontrollpaneler används en grenkontakt som sedan
ansluts till aggregatets fasta uttag.

Related product manuals