EasyManua.ls Logo

Tarter RC104BL - Modifying PTO; Sizing the PTO Shaft; Check Driveline Maximum Length

Default Icon
40 pages
Print Icon
To Next Page IconTo Next Page
To Next Page IconTo Next Page
To Previous Page IconTo Previous Page
To Previous Page IconTo Previous Page
Loading...
19
INNER SHAFT
INNER DRIVELINE
OUTER DRIVELINE
INNER SHIELD
OUTER SHAFT
OUTER SHIELD
UNIVERSAL
JOINT SHIELD
TRACTOR END
IMPLEMENT END
Figure 1 - Driveline Shortening
A
B
B
X
Y
X1
Y1
FREE LENGTH IMPLEMENT END
INNER PROFILEOUTER PROFILE
1/3 1/3 1/3 1/3 1/3
OVERLAP
MAXIMUM ALLOWABLE LENGTH
Outer Shielding has been removed for clarity.
FREE LENGTHTRACTOR END
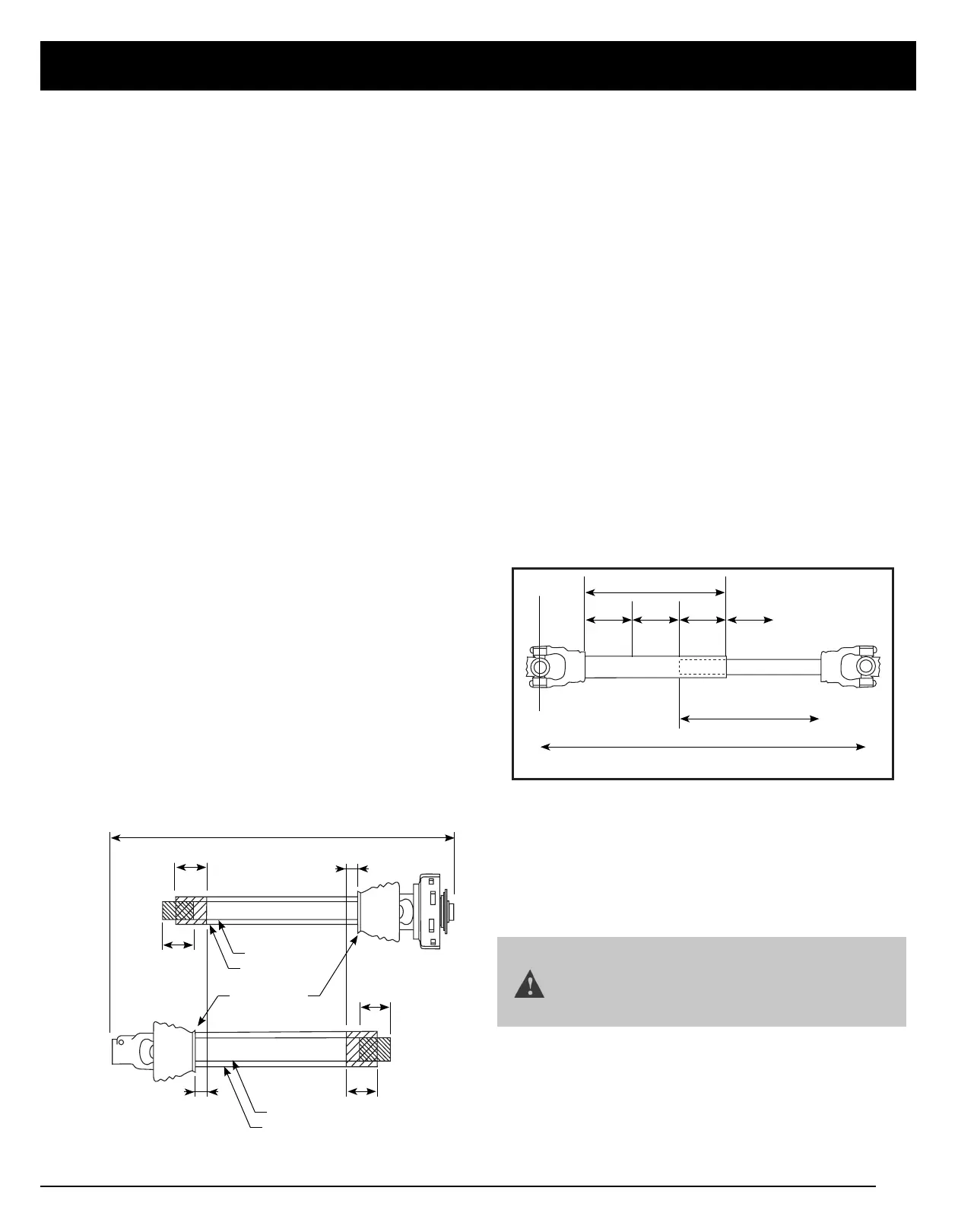
Figure 2 - Driveline Maximum Extended Length
MODIFYING PTO
SIZING THE PTO SHAFT
Refer to Figure 1
1. Detach the driveline from tractor PTO shaft and pull
outer and inner drivelines apart.
2. Reattach outer driveline to tractor PTO shaft. Pull on
inner and outer drivelines to ensure universal joints
are properly secured.
3. Hold inner and outer drivelines parallel to each other:
a. Measure 1” (“B” dimension) back from
outer driveline universal joint shield and
make a mark at this location on the inner
driveline shield.
b. Measure 1” (“B” dimension) back from
inner driveline universal joint shield and
make a mark at this location on the outer
driveline shield.
4. Remove driveline from tractor and gearbox shafts.
5. Measure from end of inner shield to scribed mark (“X”
dimension). Cut off inner shield at the mark. Cut same
amount off the inner shaft (“X1” dimension).
6. Measure from end of outer shield to scribed mark (“Y
dimension). Cut off outer shield at the mark. Cut same
amount off the outer shaft (“Y1” dimension).
7. Remove all burrs.
8. Continue with “Check Driveline Maximum Length.
CHECK DRIVELINE MAXIMUM
LENGTH
Refer to Figure 2
Make sure drivelines collapsible length is acceptable.
The driveline maximum allowable length must, when fully
extended, have a minimum overlap of the profile tubes by
not less than 1/3 the free length with both inner and outer
profile tubes being of equal length.
1. Apply multi-purpose grease to the inside of the outer
shaft and reassemble the driveline.
2. Assemble the two driveline profiles together with
1/3 of the profile tubes overlapping as shown below.
Once assembled, measure and record the maximum
allowable length for future reference.
3. Attach inner driveline yoke to the cutter’s gearbox
shaft. Attach outer driveline yoke to the tractor’s PTO
shaft.
4. Move yoke ends of driveline back and forth to insure
they are secured to the tractor and cutter shafts.
Reattach any end that is loose.
5. Hook driveline safety chain on the tractor end of
driveline to cutter frame. Re-latch safety chain to the
driveline shield.
6. Hook driveline safety chain on the rotary cutter end
of driveline to the tiller frame. Re-latch safety chain to
driveline shield.
IMPORTANT: Small chains are supplied with
the driveline. They must be attached to the
inner and outer driveline shields and to the
tiller and tractor to restrict shield rotation.