EasyManua.ls Logo

Taski ergodisc 238 - Page 36

Taski ergodisc 238
36 pages
To Previous Page IconTo Previous Page
To Previous Page IconTo Previous Page
Loading...
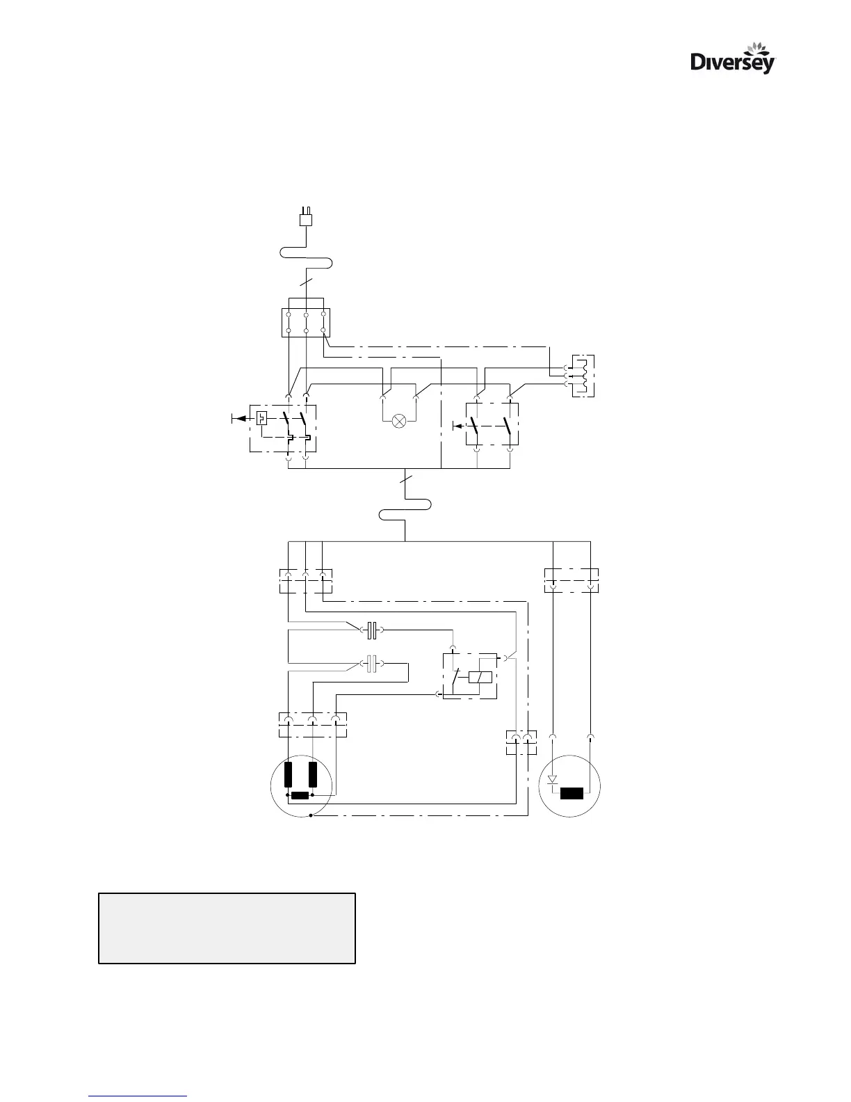
S00001624 TASKI ergodisc 165-438 & duo
08
ergodisc /2.1
RT
3
STHSM
5
AK
BK
Motor
TDU
BN
BU
B
P
J
VT
BN
BN
RT
SZ
BU
120V/60Hz
TASKI ergodisc
BN BRAUN BRUN BROWN
BU BLAU BLEU BLUE
RT ROT ROUGE RED
SZ SCHWARZ NOIR BLACK
VT VIOLETT VIOLET VIOLET

Other manuals for Taski ergodisc 238

Related product manuals