EasyManua.ls Logo

Taski ergodisc400 - Page 36

Taski ergodisc400
36 pages
Print Icon
To Previous Page IconTo Previous Page
To Previous Page IconTo Previous Page
Loading...
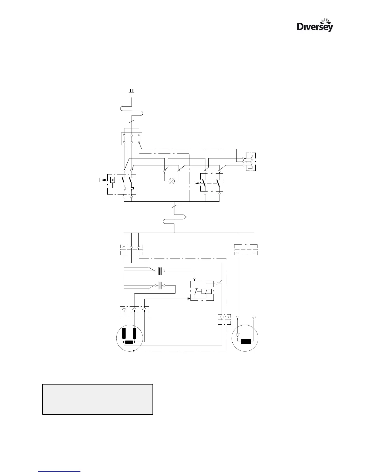
S00001624 TASKI ergodisc 165-438 & duo
08
ergodisc /2.1
RT
3
STHSM
5
AK
BK
Motor
TDU
BN
BU
B
P
J
VT
BN
BN
RT
SZ
BU
120V/60Hz
TASKI ergodisc
BN BRAUN BRUN BROWN
BU BLAU BLEU BLUE
RT ROT ROUGE RED
SZ SCHWARZ NOIR BLACK
VT VIOLETT VIOLET VIOLET

Related product manuals