EasyManua.ls Logo

tau K128MA - Page 5

tau K128MA
19 pages
Print Icon
To Next Page IconTo Next Page
To Next Page IconTo Next Page
To Previous Page IconTo Previous Page
To Previous Page IconTo Previous Page
Loading...
4
LED
ROSSO VERDE
+
-
-
BATTERY
CHARGER
KB4
BATTERY
12 V 7,2 Ah
+ +
-
FR
V-RAL
TCA
CH2
PROG
CH1
F2
16A
F1
3.15A
DL6
DL5
DL4
DL3
DL2
DL1
DL8
DL7
1 2 3 4 5 6 7 8 9 10 11 12
K128MA
TRASF
1
2
3
4
5
6
7
8
9
10
11
12
13
14
15
16
17
18
19
20
21
22
2324
J6
ENC
J5
J4
J3
E1
LED
ENCODER
LFCA LFCC
J2
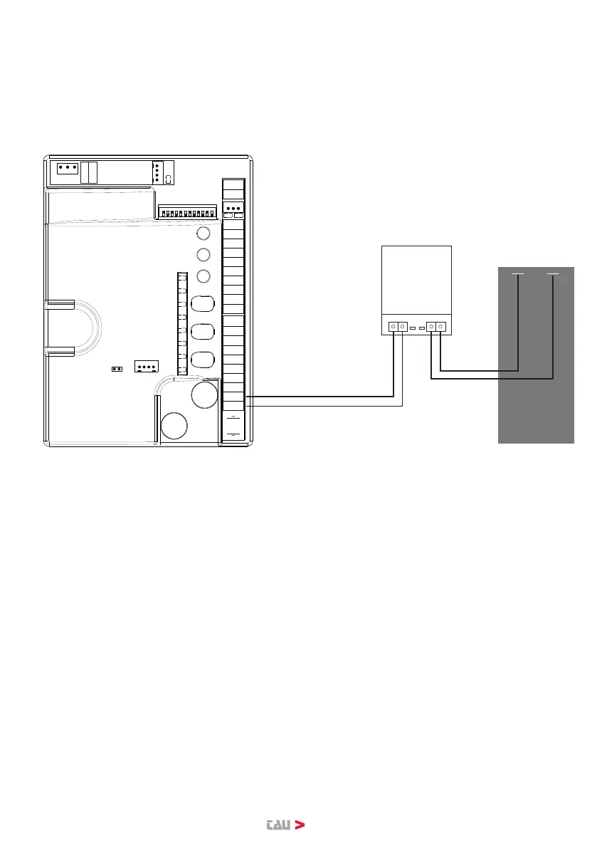
CONNECTION OF
BATTERY CHARGER +
BATTERY (OPTIONAL)
To ensure the gate operation during a power failure, the KB4 kit (battery charger + battery 12V 7.2Ah)
can be used to connect to the control unit as shown in the diagram above.
NOTICE: the battery cannot be connected directly to terminals 1-2 of the control unit.

Related product manuals