EasyManua.ls Logo

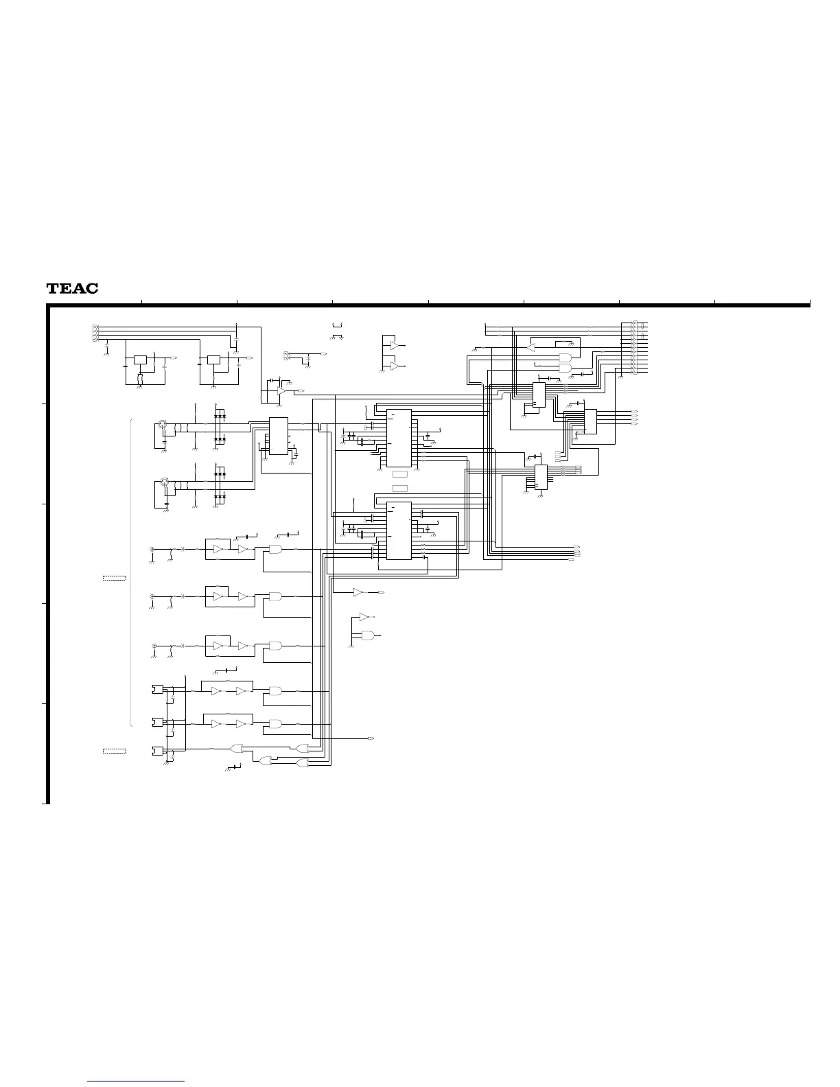
Teac D-70 - Digital PCB Schematic Diagram (Part 1); Digital PCB Overview (1;2)

Teac D-70
23 pages
Print Icon
To Next Page IconTo Next Page
To Next Page IconTo Next Page
To Previous Page IconTo Previous Page
To Previous Page IconTo Previous Page
Loading...
86 74 52 31
E
D
C
B
A
SCHEMATIC DIAGRAM
D-70
DIGITAL PCB (1/2)
MULTI D/A CONVERTER
DD--7700
1 st Issue; May 2002
AES3
2->1
CONVERT
PCB,DIGITAL (1/2)
XLR 2(R)
RCA 1
RCA 2
RCA 3
TOS 1
TOS 2
XLR 1(L)
to PMD200(3.3V)
from PCB,PWR DIGI
to PLL PLD,FIR
to PMD200
DIGITAL OUT
to PCB,RESERVE
MASTER
SLAVE
E901335-00C
SO1
SI1
RSVBCK
SI1
CS0_EXT
RSVLRCK
SI1
SCK1
SCK_EXT
RSVDATA
INT_DIR[1..2]
INT_DIR1
SO_EXT
INT_DIR2
DIN_EN[1..7]
DIN_EN1
DIN_EN3
DIN_EN4
DIN_EN2
SI1_EXT
SCK1
CS_DIR[1..4]
DIN_EN7
SCK1
SO1
RSV_EXT
DIN_EN7
CS1_EXT
CS_DIR2
CS_DIR4
CS_DIR3
CS_DIR4
CS_DIR1
CS_DIR3
DIN_EN[1..7]
DIN_EN6
DIN_EN5
RESET
RESET
+5VD
+5VD
GND
+5VD
+5VD
+5VD
+5VD
+5VD
+5VD
+5VD
+5VD
+5VD
+5VD
+3.3V
+5VD
+5VD
+5VD
+3.3V
+5VD
+5VD
+5VD
+3.3V +2.5V
+5VD
+5VD
+5VD
+5VD VCC
+5VD
+5VD
R160
22
1 2
C109 0.1
12
C113
1/50V(3phi)
12
R134
120
1 2
R166 22
1 2
R157 47K
12
C104
0.1
12
C102
0.1
12
C140
0.1
1 2
C107
1/50V(3phi)
12
U116B
74VHC125
5 6
4
TP141
1
GND
Vcc
Vin
U119
GP1FA551TZ
1
2
3
U104
CS8415A-CZ
1
2
3
4
28
8
7
6
5
21
22
23
24
25
26
27
9 20
10 19
11
12
13
14
18
17
16
15
SDA/CDOUT
AD0/CS
EMPH
RXP0
SCL/CCLK
FILT
AGND
VA+
RXN0
OMCK
DGND
VD+
H/S
RXP5
RXP6
AD1/CDIN
RST
U
RMCK INT
RERR
RXP1
RXP2
RXP3
SDOUT
OLRCK
OSCLK
RXP4
R145 3.9K
1 2
C240
100U/16V
U108C
74VHCU04F
5 6
R127
22
1 2
U107B
74VHCU04F
3 4
R133 N.C.
1 2
U108F
74VHCU04F
13 12
U120D
74VHC32
12
13
11
R114
0
1 2
R132
100
1 2
U116D
74VHC125
1211
13
C105
0.1
12
R128
120
1 2
C111 0.1
12
C136
0.15(DIP)
1 2
C143 0.01u
1 2
U111
NJM317
1
23
ADJ
OUTIN
U107A
74VHCU04F
1 2
D103
IMN10
1
2
34
5
6
R119 N.C.
1 2
U120A
74VHC32
1
2
3
U110A
74VHCT08
1
2
3
C163
1000U/16V
12
R195 47
1 2
C142 0.01u
1 2
R165 22
1 2
R182 10K
1 2
U115C
74VHCT08
9
10
8
R107
0
1 2
C115
0.1
12
R123
75
1 2
J101
XLRF
1 2
3
4
C149 0.01u
1 2
R111
100K
1 2
TP143
1
R162
100
1 2
C282
1000p
12
C138
0.1
12
R154
220
1 2
J104
RCA
1
2
U116A
74VHC125
2 3
1
C145
0.1
12
R156 47K
12
R122 1K
1 2
R129
120
1 2
U107E
74VHCU04F
11 10
R104
100K
1 2
J103
RCA
1
2
C127
47U/10V
12
R140
2.2K
1 2
C108
0.1
12
R113
0
1 2
C150 0.01u
1 2
C131
47U/16V
C119
1/50V(3phi)
12
D102
IMN10
1
2
34
5
6
R332 47
1 2
U112
NJM317
1
23
ADJ
OUTIN
C159
0.1
1 2
C161
47U/10V
12
R143
22
1 2
R196 47
1 2
R144
47K
1 2
U103
HD26C32A
2
1
14
15
6
7
10
9
8
11
5
13
3
164
12
INA+
INA-
INB+
INB-
INC+
INC-
IND+
IND-
GND
OUTD
OUTC
OUTB
OUTA
VCCEN
EN
U116C
74VHC125
9 8
10
U136
74LCX541
2
3
4
5
6
7
8
9
1
19
18
17
16
15
14
13
12
11
2010
A1
A2
A3
A4
A5
A6
A7
A8
G1
G2
Y1
Y2
Y3
Y4
Y5
Y6
Y7
Y8
VCCGND
C164 0.1
12
R333
47K
1 2
U110B
74VHCT08
4
5
6
C155 0.1
12
C125
47U/10V
12
C133 0.01u
1 2
D101
IMN10
1
2
34
5
6
U110D
74VHCT08
12
13
11
R172
47K
1 2
U105
CS8415A-CZ
1
2
3
4
28
8
7
6
5
21
22
23
24
25
26
27
9 20
10 19
11
12
13
14
18
17
16
15
SDA/CDOUT
AD0/CS
EMPH
RXP0
SCL/CCLK
FILT
AGND
VA+
RXN0
OMCK
DGND
VD+
H/S
RXP5
RXP6
AD1/CDIN
RST
U
RMCK INT
RERR
RXP1
RXP2
RXP3
SDOUT
OLRCK
OSCLK
RXP4
R254
3.3K
1 2
P108
EH-2
1
2
R183 10K
1 2
R151 22
1 2
R242 22
1 2
R117
75
1 2
R116
75
1 2
U108D
74VHCU04F
9 8
U108A
74VHCU04F
1 2
R163
22
1 2
R112
100K
1 2
U115A
74VHCT08
1
2
3
R159
22
1 2
U114
74VHC541
2
3
4
5
6
7
8
9
1
19
18
17
16
15
14
13
12
11
2010
A1
A2
A3
A4
A5
A6
A7
A8
G1
G2
Y1
Y2
Y3
Y4
Y5
Y6
Y7
Y8
VCCGND
R173
47K
1 2
U107F
74VHCU04F
13 12
U110C
74VHCT08
9
10
8
U115B
74VHCT08
4
5
6
R131
75
1 2
C141
0.01u
1 2
R174
47K
1 2
R197 47
1 2
R167 22
1 2
U108E
74VHCU04F
11 10
R198 22
1 2
R240 47
1 2
J102
XLRF
1 2
3
4
Vout
GND
Vcc
U102
GP1FA551RZ
1
2
3
R146 22
1 2
C114
0.1
1 2
R126 N.C.
1 2
U115D
74VHCT08
12
13
11
R124
75
1 2
R102
330
1 2
R241 47
1 2
U108B
74VHCU04F
3 4
P106
PH13P
1
2
3
4
5
6
7
8
9
10
11
12
13
C132 0.01u
1 2
R158
22
1 2
C153
0.1
12
R253
3.3K
1 2
C151 0.01u
1 2
U107C
74VHCU04F
5 6
D104
IMN10
1
2
34
5
6
U107D
74VHCU04F
9 8
U120C
74VHC32
9
10
8
C137 3900p(DIP)
1 2
R142
22
1 2
R155 47K
12
TP139
1
TP142
1
C101
0.1
1 2
R148 22
1 2
C283
1000p
12
R103
330
1 2
R125
100
1 2
R150 3.9K
1 2
R194 47
1 2
R130
75
1 2
R108
330
1 2
P101
EH-4
1
2
3
4
C147 3900p(DIP)
1 2
C243
47U/16V
R149
47K
1 2
R152 22
1 2
R105
100K
1 2
C146
0.15(DIP)
1 2
R109
330
1 2
R101
330
1 2
R331 47
1 2
Vout
GND
Vcc
U101
GP1FA551RZ
1
2
3
C160 0.1
12
R153 22
1 2
C152 0.01u
1 2
U106
74VHC157
2 4
3
5 7
6
11 9
10
14 12
13
1
15
168
1A 1Y
1B
2A 2Y
2B
3A 3Y
3B
4A 4Y
4B
A/B
G
VCCGND
J105
RCA
1
2
R110
330
1 2
U120B
74VHC32
4
5
6
C148 0.01u
1 2
C162
1000U/16V
12
R184 10K
1 2
R118 1K
1 2
R239 47
1 2
R106
0
1 2
C144
47U/10V
12
TP140
1
C135
0.1
12
R147 22
1 2
R168 22
1 2
R169 22
1 2
C134
47U/10V
12
CNVDATA
SCK1
SI1
RLRCK
RBCK
CS_DIR[1..4]
SO1
RDATA
CNVLRCK
INT_DIR[1..2]
EMPH
CNVBCK
DIN_EN[1..7]
DIRADATA
DIRALRCK
DIRABCK
DIRBDATA
+7VPLL
+2.5V+3.3V
RESET
RMCK
TOS
DIGITAL IN
注意
1.抵抗の単位はΩ(k=kΩ,M=MΩ)です。
2.コンデンサの単位はμF(p=pF)です。
3.£マークのある部品は安全規格重要部品です。
交換するときは必ずティアック指定の部品を使用してください。

Related product manuals