EasyManua.ls Logo

TECNOEKA KF 412 - Wiring Layout

TECNOEKA KF 412
21 pages
Print Icon
To Next Page IconTo Next Page
To Next Page IconTo Next Page
To Previous Page IconTo Previous Page
To Previous Page IconTo Previous Page
Loading...
_ Electric Ovens _ rev. 1 _____________________________________________________ KF 412- KF 723-
KF 723M _
________________________________________________________________________________________
_ page 17 _
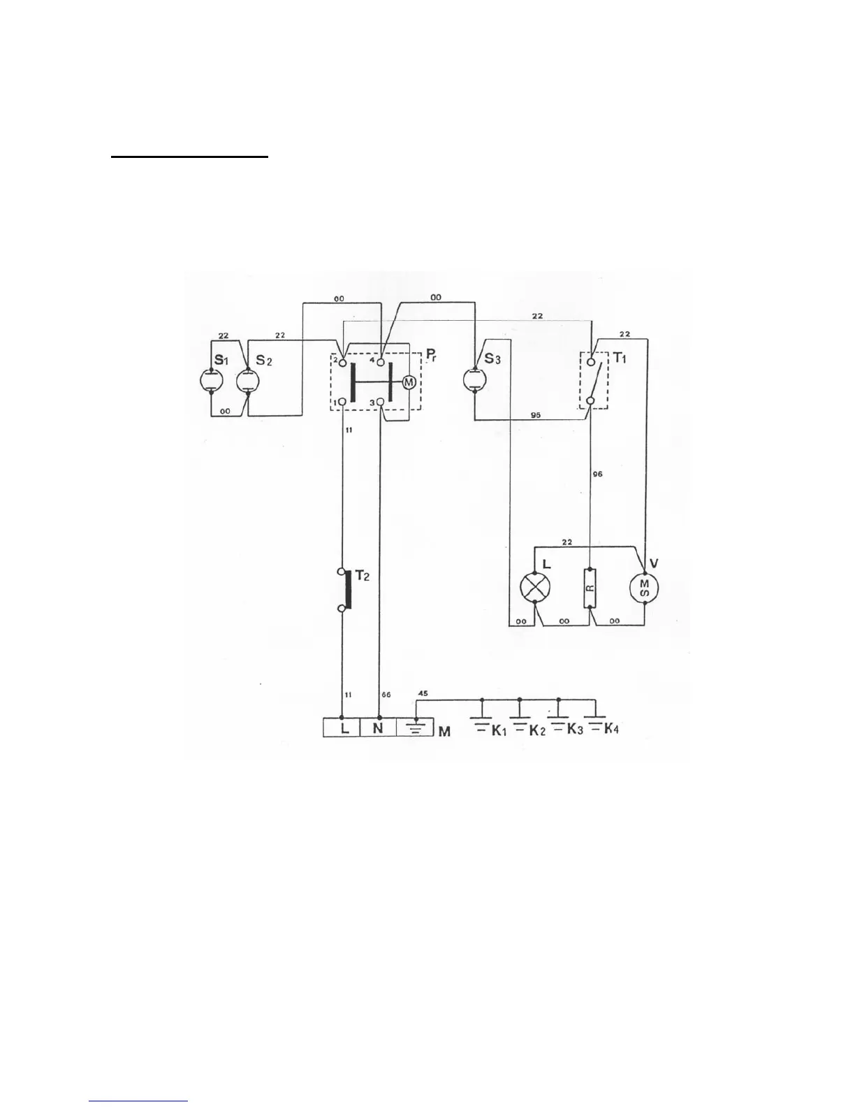
11. Wiring layouts
WIRING LAYOUT MOD. KF 412 - KF 723
Key
M Power terminal board
P "End of cooking" programmer
T1 Oven thermostat
T2 Safety thermo-switch
L Oven lighting lamp
R Circular heating-element
V Oven motorised ventilator
S1 Power line indicator light
S2 Programmer indicator light
K2 Motorised ventilator earth
K3 Oven lighting lamp earth
K4 Thermostat earth
00 Black wire
11 Brown wire
22 Red wire
66 Blue wire
99 White wire
96 Blue/white wire

Related product manuals