EasyManua.ls Logo

TekTone NC415AV - Page 50

Default Icon
54 pages
Print Icon
To Next Page IconTo Next Page
To Next Page IconTo Next Page
To Previous Page IconTo Previous Page
To Previous Page IconTo Previous Page
Loading...
System Troubleshooting Guide
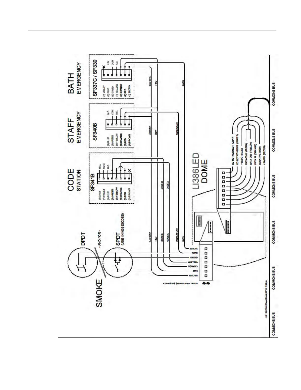
Figure 35 - LI386LED Wiring Diagram
50|IL1057 Tek-CARE300III Installation Manual
Copyright
©
TekTone Sound and Signal Mfg., Inc. All Rights Reserved

Related product manuals