EasyManua.ls Logo

Teledyne EHE - SECTION 6. Replacement Parts; 6 A. Parts List

Teledyne EHE
34 pages
Print Icon
To Next Page IconTo Next Page
To Next Page IconTo Next Page
To Previous Page IconTo Previous Page
To Previous Page IconTo Previous Page
Loading...
Hi-E2
Page 29
If condensate is not draining from the system,
check for improper routing of the drainage tubes or
blockage in the drainage system. Tubing must be
installed with a continuous fall in the direction of
condensate flow. Sags may trap water, defeating the
intended operation. Check for blockage by
disconnecting drainage tubes at the collector and the
vent diffuser. Probe these openings with a tool or wire
hook to dislodge any debris.
Limestone gravel neutralizer is required in the
condensate tray to prevent corrosion. This material
should be replaced once a year to assure its continuous
benefit. Replacement packages are available from
Teledyne Laars or its representatives.
It is normal that a blue/green deposit forms in the
neutralizer. This is caused by very small
concentrations of copper ions present in the
condensate. By increasing the pH of the condensate,
the limestone causes this material to precipitate and be
retained in the gravel.
4H. Major Component Service
The venturi assembly, the burner assembly and
the heat exchanger tube assembly can be replaced if
necessary, but correct procedures and use of only
factory-provided parts are essential to assure
satisfactory service and safe operation. Sealing the
system with the specified sealers and gaskets is
especially important. Contact the Teledyne Laars
Service Department for information.
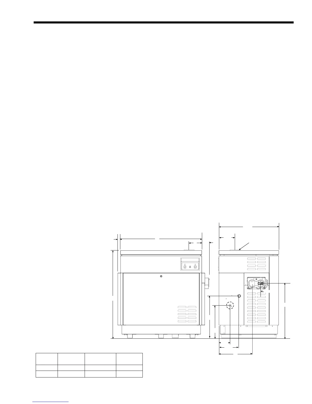
Model Width Input Shipping
No. W Weight
220 22
5
/
8
220,000 206 lbs.
350 31
7
/
8
350,000 252 lbs.
W
34
1
/
5"
6
3
/8""
4
1
/16""
Vent Collar
13"
3
5
/8"
3
5
/8"
2
1
/8"
16
5
/
1
1
/16""
23
1
/2""
10"
21
5
/
SECTION 5
Capacities and Dimensions
5A. General Information
NOTES:
1. The Hi-E2 is design certified by International
Approval Services as a swimming pool heater
under ANSI Standard Z21.56 for use in the
United States and Standard CAN1-4.7-M85
for use in Canada.
2. The Hi-E2 pool heater is certified for use
indoors or outdoors in the United States.
3. The Hi-E2 pool heater is for use with natural
or liquefied petroleum gas. Ratings apply to
either fuel.
4. De-rating for elevation is not necessary
because of the Hi-E2 heater's special
combustion system. Reduced barometric
pressure at high elevations naturally
decreases input and output by approximately
three percent per 1000 feet above sea level.
5. Heaters require 115V, 60Hz electrical power.
6. Working pressure 75 psig.

Table of Contents

Related product manuals