EasyManua.ls Logo

Teletek electronics ECLIPSE 99 - Eclipse 32

Teletek electronics ECLIPSE 99
40 pages
Print Icon
To Next Page IconTo Next Page
To Next Page IconTo Next Page
To Previous Page IconTo Previous Page
To Previous Page IconTo Previous Page
Loading...
Eclipse 8/16/32/99 Series - Installation Manual
11
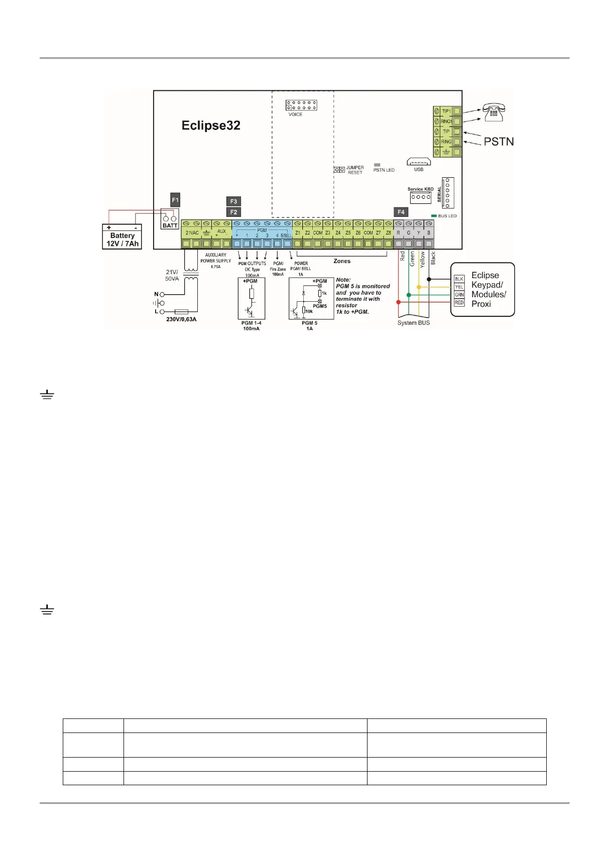
2.2.3 ECLIPSE 32
Figure 7. ECLIPSE 32 control panel
ECLIPSE 32 - Terminals and components:
21VAC Power supply from a mains transformer 21V/50VA, fuse 0.63А
Grounding
+/- AUX Power supply for detectors with consumption up to 0.75А
+PGM Power supply of auxiliary devices with consumption up to 0.75А
PGM 1-3 Programmable outputs, 100mA, ОС type (open collector)
PGM 4 Programmable output/Fire zone (programmed at Menu 3. Programmable outputs), 100mA, ОС type (open collector)
PGM 5/BELL Monitored programmable output, high power up to 1А, ОС type (open collector), for connecting siren
Z1-Z8 Zone inputs
COM Common ground for the zones
R(red), G(green), Y(yellow), B(black) - System bus interface for connection of keyboards, proximity card readers, expanders,
etc.
Jumper RESET Jumper for total hardware reset of the control panel
Serial Interface for PC connection
Service KBD Connecting a service keyboard see also item 6 (available for HW 1.8 and higher)
VOICE - Interface connector for mounting of Voice module ECLIPSE VD
BATT Terminals for connecting the back-up battery
USB Micro USB port for programming with ProsTE software (available for HW 2.3 and higher)
PSTN terminals:
TIP1, RING1 Connect the telephone device
TIP, RING Connect the PSTN line
Grounding
Fuses, PTC type:
F1 Fuse for the back-up battery: 2.5A
F2 Fuse for PGM outputs: 0.75A
F3 Fuse for AUX outputs: 0.75A
F4 Fuse for the system bus: 0.5А
LED indication:
PSTN LED LED for the status of the built-in digital communicator.
BUS LED LED for the status of the system bus:
BUS LED
Lights on permanently
Blinks in pulses
Red
RESET Jumper is set; Problem with the system bus;
no communication
Low power supply
Orange
Short circuit of the system bus
Wrong connection of the system bus
Green
Selected device of the system bus
Normal operation mode

Other manuals for Teletek electronics ECLIPSE 99

Related product manuals